Stay Family Park

Eladó panellakás
Ajka, 1. emelet

+ 13 kép 1/16
42 500 000 Ft42.5 M Ft 772 727 Ft/m2
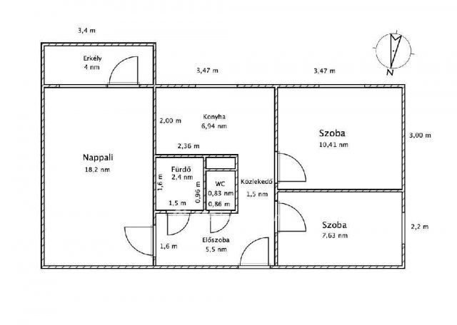
1 + 2 szoba
55 m2
1. emelet
építés éve:1985

Részletes adatok

Fűtés: Távfűtés
Energetikai besorolás: Nem adta meg a hirdető

Az OTP Bank lakáshitel ajánlataFizetett hirdetés

+36 30 345
Maczucza Márton
OTP Ingatlanpont Veszprém

Érdekel az OTP Bank kedvezményes lakáshitel ajánlata? *

* A kérdésre „Igen” válasz bejelölése esetén, az „Üzenet küldése” gombra kattintva kijelentem, hogy az OTP Bank Nyrt. Adatkezelési tájékoztatójának tartalmát megismertem és tudomásul vettem.

Eladó panellakás leírása

*** ERKÉLYES LAKÁS AJKA BELVÁROSÁBAN! ***

Eladó 55 m2-es, első emeleti, 1+2 szobás, erkélyes lakás Ajka belvárosában, Veszprém vármegyében!

Jó állapotú, igényesen berendezett, kedvező elrendezéssel rendelkezik. Az ingatlan tágas, világos tereket kínál, ízléses burkolatokkal, és egy hangulatos erkély is tartozik hozzá. A belváros szívében helyezkedik el, így minden fontos szolgáltatás és közlekedési lehetőség néhány perc alatt elérhető.

Azonnal költözhető, ideális otthon lehet párok vagy kis családok számára!

Amennyiben hirdetésem felkeltette az érdeklődését, keressen bizalommal, az ingatlan időpont-egyeztetést követően rugalmasan megtekinthető! Nálunk minden megtekintés DÍJMENTES!

Az OTP Ingatlanpont teljes körű ügyintézéssel áll az eladók és a vevők rendelkezésére. A kínálatunkból választott ingatlan finanszírozásához kedvezményes hitelkonstrukciót kínálunk. Az adásvételi szerződés megkötéséhez igény szerint megbízható ügyvédi közreműködést biztosítunk, és segítséget nyújtunk az adásvételhez kapcsolódó ügyek intézéséhez is!

Hirdetés feltöltve: 2025. 12. 17. Utoljára módosítva: 2025. 12. 17.

Az ingatlan elhelyezkedése

Cím: Ajka, 1. emelet

Eladó ingatlanok a környékről

Eladó panellakás
Eladó panellakás

Ajka

29.9 M Ft
2 szoba
48 m2
Eladó panellakás
Eladó panellakás

Balatonfüred

138.211 M Ft
3 szoba
68 m2
Eladó panellakás
Eladó panellakás

Ajka

57.6 M Ft
3 + 1 szoba
87 m2
Eladó ipari ingatlan
Eladó ipari ingatlan

Veszprém

513 M Ft
27804 m²
4570 m2
Eladó panellakás
Eladó panellakás

Ajka

40.55 M Ft
2 szoba
54 m2
Eladó panellakás
Eladó panellakás

Veszprém

175 M Ft
14 szoba
346 m2
Eladó családi ház
Eladó családi ház

Paloznak

198 M Ft
5 szoba
140 m2
Eladó panellakás
Eladó panellakás

Balatonalmádi

75 M Ft
4 szoba
69 m2
Eladó sorház
Eladó sorház

Veszprém

149 M Ft
7 + 1 szoba
250 m2
Eladó panellakás
Eladó panellakás

Ajka

40.55 M Ft
2 szoba
54 m2
Eladó családi ház
Eladó családi ház

Szentgál

240 M Ft
7 szoba
307 m2
Eladó nyaraló
Eladó nyaraló

Pécsely

29 M Ft
3 szoba
48 m2
Eladó nyaraló
Eladó nyaraló

Pécsely

60 M Ft
6 szoba
102 m2
Eladó panellakás
Eladó panellakás

Balatonfüred

115.394 M Ft
2 szoba
52 m2
Eladó családi ház
Eladó családi ház

Csopak

119.9 M Ft
2 szoba
110 m2
Eladó telek
Eladó telek

Alsóörs

129 M Ft
1425 m²
Eladó panellakás
Eladó panellakás

Ajka

42.5 M Ft
1 + 2 szoba
55 m2
Eladó panellakás
Eladó panellakás

Ajka

30.9 M Ft
2 szoba
53 m2
Eladó családi ház
Eladó családi ház

Veszprém

420 M Ft
742 m²
578 m2
Eladó panellakás
Eladó panellakás

Ajka

40.55 M Ft
2 szoba
54 m2
Eladó panellakás
Eladó panellakás

Ajka

57.6 M Ft
3 + 1 szoba
87 m2
Eladó ipari ingatlan
Eladó ipari ingatlan

Veszprém

480 M Ft
4000 m²
1000 m2
Eladó téglalakás
Eladó téglalakás

Balatonfüred

42.9 M Ft
2 szoba
40 m2
Eladó panellakás
Eladó panellakás

Ajka

42.5 M Ft
1 + 2 szoba
55 m2

Falusi CSOK ingatlanok

Eladó családi ház
Eladó családi ház

Vásárosdombó

14.99 M Ft
2 szoba
69 m2
Eladó családi ház
Eladó családi ház

Somogygeszti

10.9 M Ft
2 szoba
115 m2
Eladó családi ház
Eladó családi ház

Jászalsószentgyörgy

39.9 M Ft
2 szoba
74 m2
Eladó családi ház
Eladó családi ház

Kenyeri

21.8 M Ft
2 szoba
75 m2
Eladó családi ház
Eladó családi ház

Balatonfőkajár

36 M Ft
2 szoba
95 m2
Eladó családi ház
Eladó családi ház

Balatonfenyves

430 M Ft
4 szoba
274 m2
Eladó családi ház
Eladó családi ház

Mikebuda

68.5 M Ft
2 szoba
90 m2
Eladó családi ház
Eladó családi ház

Balatonszárszó

56.5 M Ft
3 szoba
60 m2