Astora Olive Club House

Eladó panellakás
Ajka, 1. emelet

+ 13 kép 1/16
42 500 000 Ft42.5 M Ft 772 727 Ft/m2
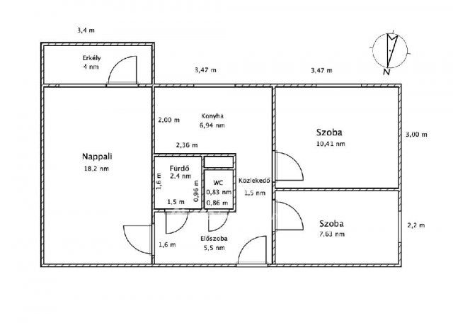
1 + 2 szoba
55 m2
1. emelet
építés éve:1985

Részletes adatok

Állapot: Átlagos
Fűtés: Távfűtés
Energetikai besorolás: Nem adta meg a hirdető
Zenga Premier

Friss hirdetések, amiket nem találsz meg más ingatlankereső portálon.

Fedezd fel elsőként a Zenga Premier címkés eladó ingatlanokat!

További részletek a zenga.hu-n

Az OTP Bank lakáshitel ajánlataFizetett hirdetés

+36 30 100
Kéri Miklós
referens

Érdekel az OTP Bank kedvezményes lakáshitel ajánlata? *

* A kérdésre „Igen” válasz bejelölése esetén, az „Üzenet küldése” gombra kattintva kijelentem, hogy az OTP Bank Nyrt. Adatkezelési tájékoztatójának tartalmát megismertem és tudomásul vettem.

Eladó panellakás leírása

Eladó 55 nm-es első emeleti erkélyes lakás Ajka belváros.
Nagyon szép állapotú, földszinti lakás eladó, amely igényesen berendezett és kedvező elrendezéssel rendelkezik. Az ingatlan tágas, világos tereket kínál, ízléses burkolatokkal, és egy hangulatos erkély is hozzátartozik. A belváros szívében helyezkedik el, így minden fontos szolgáltatás és közlekedési lehetőség néhány perc alatt elérhető. Azonnal költözhető, ideális otthon lehet párok vagy kis családok számára. Ne hagyja ki ezt a kiváló lehetőséget!
Az OTP Ingatlanpont teljes körű ügyintézéssel áll az eladók és a vevők rendelkezésére. Az adásvételi szerződés megkötéséhez igény szerint megbízható ügyvédi közreműködést biztosítunk, és segítséget nyújtunk az adásvételhez kapcsolódó ügyek intézéséhez is. Az ingatlanról készült alaprajz, illetve fényképfelvételek az Otp ingatlanpont szellemi tulajdonát képezik. Amennyiben felkeltette érdeklődését az általam kínált ingatlan, keressen bizalommal! Ne habozzon tovább, hiszen ez a ház valóban páratlan lehetőséget kínál! SZEREZZE MEG EZT SZÉP OTTHONT, HÍVJA MOST A MEGADOTT TELEFONSZÁMOT!

Hirdetés feltöltve: 2025. 11. 25. Utoljára módosítva: 2025. 11. 25.

Az ingatlan elhelyezkedése

Cím: Ajka, 1. emelet

Eladó ingatlanok a környékről

Eladó garázs
Eladó garázs

Balatonfűzfő

7.5 M Ft
14 m2
Eladó panellakás
Eladó panellakás

Balatonalmádi

75 M Ft
4 szoba
69 m2
Eladó családi ház
Eladó családi ház

Nyárád

38.9 M Ft
4 szoba
130 m2
Eladó telek
Eladó telek

Ősi, Iskola utca

6.9 M Ft
1248 m²
1248 m2
Eladó nyaraló
Eladó nyaraló

Balatonkenese, Külterület

19.9 M Ft
2 + 2 szoba
50 m2
Eladó téglalakás
Eladó téglalakás

Ajka

7.5 M Ft
1 szoba
44 m2
Eladó családi ház
Eladó családi ház

Balatonfüred

115 M Ft
2 + 1 szoba
100 m2
Eladó családi ház
Eladó családi ház

Alsóörs

139.7 M Ft
5 szoba
186 m2
Eladó családi ház
Eladó családi ház

Ősi

55 M Ft
3 szoba
74 m2
Eladó panellakás
Eladó panellakás

Ajka

40.55 M Ft
2 szoba
54 m2
Eladó panellakás
Eladó panellakás

Balatonfüred

49.9 M Ft
2 szoba
42 m2
Eladó telek
Eladó telek

Pápa

2.5 M Ft
765 m²
765 m2
Eladó panellakás
Eladó panellakás

Veszprém

54.9 M Ft
1 + 2 szoba
55 m2
Eladó panellakás
Eladó panellakás

Balatonfüred

115.394 M Ft
2 szoba
52 m2
Eladó panellakás
Eladó panellakás

Ajka

29.9 M Ft
2 szoba
48 m2
Eladó családi ház
Eladó családi ház

Balatonfüred

239.9 M Ft
6 szoba
156 m2
Eladó panellakás
Eladó panellakás

Várpalota

34.9 M Ft
1 + 1 szoba
42 m2
Eladó panellakás
Eladó panellakás

Veszprém

44.2 M Ft
2 szoba
42 m2
Eladó téglalakás
Eladó téglalakás

Zirc

71.4 M Ft
1 + 2 szoba
68 m2
Eladó panellakás
Eladó panellakás

Balatonfüred

49.9 M Ft
2 szoba
42 m2
Eladó panellakás
Eladó panellakás

Balatonfüred

49.9 M Ft
2 szoba
42 m2
Eladó panellakás
Eladó panellakás

Veszprém

175 M Ft
14 szoba
346 m2
Eladó panellakás
Eladó panellakás

Balatonfüred

119.872 M Ft
2 szoba
52 m2
Eladó panellakás
Eladó panellakás

Pétfürdő, Berhidai út

28.3 M Ft
2 szoba
53 m2

Falusi CSOK ingatlanok

Eladó családi ház
Eladó családi ház

Újszilvás

20.9 M Ft
3 szoba
66 m2
Eladó családi ház
Eladó családi ház

Dunaszekcső

27.5 M Ft
3 szoba
128 m2
Eladó családi ház
Eladó családi ház

Ceglédbercel

49.9 M Ft
4 szoba
120 m2
Eladó ikerház
Eladó ikerház

Táborfalva

49.9 M Ft
4 szoba
54 m2
Eladó családi ház
Eladó családi ház

Márianosztra

85 M Ft
6 szoba
198 m2
Eladó családi ház
Eladó családi ház

Ceglédbercel, Iskola utca

89.99 M Ft
5 szoba
110 m2
Eladó családi ház
Eladó családi ház

Nagybörzsöny

36 M Ft
2 + 1 szoba
74 m2
Eladó családi ház
Eladó családi ház

Gégény, Kossuth

15 M Ft
4 szoba
135 m2