Astora Olive Club House

Eladó nyaraló
Ballószög, földszint

+ 8 kép 1/11
99 990 000 Ft99.99 M Ft 1 315 658 Ft/m2
2 szoba
76 m2
földszint
építés éve:2022

Részletes adatok

Fűtés: Házközponti
Extrák: Lift
Energetikai besorolás: Nem adta meg a hirdető

Az OTP Bank lakáshitel ajánlataFizetett hirdetés

+36 30 400
Papp-Horváth Katalin
Otp Ingatlanpont Falk Miksa

Érdekel az OTP Bank kedvezményes lakáshitel ajánlata? *

* A kérdésre „Igen” válasz bejelölése esetén, az „Üzenet küldése” gombra kattintva kijelentem, hogy az OTP Bank Nyrt. Adatkezelési tájékoztatójának tartalmát megismertem és tudomásul vettem.

Eladó nyaraló leírása

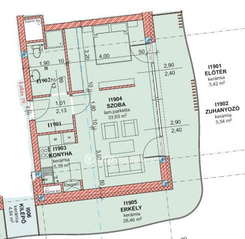
Bács-Kiskun vármegye, Kecskemét mellett eladó lakások egy Idősek Otthona Lakóparkban! 1. emeleti lakás, alapterülete 76,4 m2, melyből 28,4 m2 erkély. Nappali, hálófülke, konyha, előszoba és fürdőszoba WC-vel található benne és nagy terasz tartozik hozzá. A most épülő lakások már csak 40 %-a érhető el, így érdemes minél előbb választani! Befektetők részére is ajánljuk, hiszen bérbe adható és örökölhető a saját tulajdonú ingatlan, ahol szinte teljeskörű ellátás kérhető egy Wellness és Termálfürdő szomszédságában. Magyarországon egyedülállóan magas színvonalat és kényelmet biztosít lakói számára egészségügyi ellátásban és különböző szolgáltatásokban igény szerint. Lakóit 35 hektáros területen gyönyörű környezet, kisebb tavak, csónakázó tó, vízesés, biztonság és nyugalom veszi körül, ahol magas életszínvonalon élhetnek. A tulajdonos magánkórház megépítését is tervezi, aki már több, mint 20 éves szakmai tapasztalattal működteti a jelenlegi idősek otthona intézményt is. Lehetőség lesz teniszpálya, étterem, pizzéria, cukrászda használatára egy hatalmas terasszal és szépségápolási szolgáltatásokra is pl.: fodrászat, pedikűr, manikűr stb. Mindez egy helyen egy csodálatos komplexumban , melyet személyesen is megtekinthet. Befektetőktől az elkészült lakásokat a tulajdonos 3 éves időtartamra visszabérli és minden ezzel járó kötelezettséget átvállal. NE MARADJON LE RÓLA! Megtekintésért kérem hívjon bizalommal!

Referencia szám: M252342

Hirdetés feltöltve: 2025. 10. 03. Utoljára módosítva: 2025. 11. 25.

Nyaralók ára Ballószögön

Ebből az összehasonlításból megtudhatod, hogyan viszonyul a lakás ára a környékbeli nyaralók átlagos árához. Ez nem azt jelenti, hogy ennyivel olcsóbb vagy drágább, mint amennyit a lakás ér, hanem hogy ennyivel tér el a környékbeli átlagtól.

Ennek a m² ára
Ballószög m² ár
1316 e Ft
1217 e Ft -8%
Ennek az ára
Ballószög átlagár
99.99 M Ft m Ft
81 m Ft -23%

Az ingatlan elhelyezkedése

Cím: Ballószög, földszint

Eladó ingatlanok a környékről

Eladó családi ház
Eladó családi ház

Kecskemét

149.9 M Ft
6 szoba
148 m2
Eladó családi ház
Eladó családi ház

Dávod

4 M Ft
2 + 1 szoba
85 m2
Eladó nyaraló
Eladó nyaraló

Baja

34.9 M Ft
2 szoba
49 m2
Eladó családi ház
Eladó családi ház

Bácsalmás, Rákóczi Ferenc utca

39 M Ft
3 szoba
478 m2
Eladó panellakás
Eladó panellakás

Kecskemét

31.9 M Ft
1 szoba
35 m2
Eladó nyaraló
Eladó nyaraló

Hercegszántó

32 M Ft
2 szoba
60 m2
Eladó nyaraló
Eladó nyaraló

Tass

31.9 M Ft
1 szoba
45 m2
Eladó nyaraló
Eladó nyaraló

Baja

19.99 M Ft
4 + 1 szoba
113 m2
Eladó téglalakás
Eladó téglalakás

Kecskemét

104.9 M Ft
4 szoba
86 m2
Eladó nyaraló
Eladó nyaraló

Baja, Monostori út

18 M Ft
2 szoba
41 m2
Eladó családi ház
Eladó családi ház

Kecskemét

55 M Ft
3 szoba
98 m2
Eladó családi ház
Eladó családi ház

Kecskemét

165 M Ft
5 szoba
207 m2
Eladó családi ház
Eladó családi ház

Kecskemét

229 M Ft
8 szoba
370 m2
Eladó téglalakás
Eladó téglalakás

Kecskemét

83.9 M Ft
4 szoba
97 m2
Eladó nyaraló
Eladó nyaraló

Ballószög

109.99 M Ft
1 szoba
63 m2
Eladó telek
Eladó telek

Dunavecse

13.5 M Ft
854 m²
Eladó nyaraló
Eladó nyaraló

Nagybaracska, Füzessziget

99.9 M Ft
6 szoba
213 m2
Eladó családi ház
Eladó családi ház

Kecskemét

139.99 M Ft
5 szoba
200 m2
Eladó családi ház
Eladó családi ház

Kecskemét

139.9 M Ft
7 szoba
215 m2
Eladó családi ház
Eladó családi ház

Kecskemét

224.9 M Ft
5 szoba
330 m2
Eladó nyaraló
Eladó nyaraló

Érsekcsanád

27.5 M Ft
4 szoba
72 m2
Eladó nyaraló
Eladó nyaraló

Érsekcsanád

65 M Ft
3 szoba
92 m2
Eladó családi ház
Eladó családi ház

Tass

220 M Ft
6 szoba
375 m2
Eladó családi ház
Eladó családi ház

Kecskemét

139.99 M Ft
5 szoba
200 m2

Falusi CSOK ingatlanok

Eladó családi ház
Eladó családi ház

Sárisáp, Orgona utca

60 M Ft
4 szoba
145 m2
Eladó családi ház
Eladó családi ház

Hercegszántó

7 M Ft
3 szoba
120 m2
Eladó családi ház
Eladó családi ház

Gyepükaján

12.9 M Ft
2 szoba
70 m2
Eladó családi ház
Eladó családi ház

Kaposgyarmat

695 M Ft
6 szoba
610 m2
Eladó családi ház
Eladó családi ház

Törtel

25.9 M Ft
5 szoba
95 m2
Eladó családi ház
Eladó családi ház

Mencshely

99 M Ft
3 szoba
126 m2
Eladó családi ház
Eladó családi ház

Hegyfalu

14.9 M Ft
2 szoba
70 m2
Eladó ikerház
Eladó ikerház

Besnyő

79.6 M Ft
5 szoba
117 m2