NapForrás 20 - Buda

Eladó iroda
Budapest, XVI. kerület, 1. emelet

+ 13 kép 1/16
174 900 000 Ft174.9 M Ft 840 865 Ft/m2
3 szoba
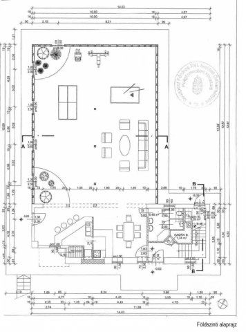
208 m²
1. emelet
építés éve:2008

Részletes adatok

Fűtés: Gázkazán
Emelet: 1. emelet
Parkolás: Kocsibeálló
Energetikai besorolás: Nem adta meg a hirdető

Az OTP Bank lakáshitel ajánlataFizetett hirdetés

+36 30 442
Egri Attila
referens

Érdekel az OTP Bank kedvezményes lakáshitel ajánlata? *

* A kérdésre „Igen” válasz bejelölése esetén, az „Üzenet küldése” gombra kattintva kijelentem, hogy az OTP Bank Nyrt. Adatkezelési tájékoztatójának tartalmát megismertem és tudomásul vettem.

Eladó iroda leírása

XVI. kerületben, karnyújtásnyira Zuglótól és az Örs vezér terétől, kiváló közlekedés és ellátottság mellett, Rákosszentmihály központi részén, könnyedén akár tehergépkocsival is megközelíthető, kiváló adottságokkal bíró, 802 m2-es saroktelken, 2008-ban, tégla és könnyűszerkezetes falazattal épült, szigetelt, 208 nm-es, 2 szintes, az alsó szinten 5 méteres belmagasságú hatalmas utcafrontra néző ablakokkal rendelkező tágas üzlettér, bemutatóterem és mellékhelyiségek, az emeleti szinten tárgyaló/ iroda, valamint öltöző és vizes blokkal ellátott, napos világos fekvésű, kombinált gázcirkó fűtésű, jó állapotú, számtalan üzleti tevékenységre szabható, klimatizált üzlethelyiség, 8-10 gépkocsi számára alkalmas felszíni beállóval, 5 m2-es pincével, kulturált környezetben eladó.

Az ingatlanban prémium minőségű Hörmann elektromos kapu, bejárati és beltéri ajtók, valamint Kömmerling műanyag/alumínium nyílászárók kerültek beépítésre. A biztonságról távfelügyeletre bekötött kamerarendszer gondoskodik.

A környék ellátottsága és közlekedése egyaránt kiváló.
Az Örs Vezér tér autóval 5 perc, tömegközlekedéssel 10 perc alatt elérhető!
Az M0-ás körgyűrű 10 percre!

Az ingatlan kiemelten jó elhelyezkedése és kialakítása miatt számtalan üzleti tevékenységre alkalmas lehet, mint pl:
Szolgáltató és kereskedelmi egységek, cég központ, raktározás, magán oktatási intézmény, bemutató központ, kisebb magánegészségügyi központ, élelmiszer bolt, műhely….stb
Igény esetén lakóingatlanná minősíthető!

Ezt az ingatlant látni kell!!
További részletes tájékoztatásért és a megtekintéssel kapcsolatban várom megtisztelő hívását.
(hétvégén is)
EA ...TOVÁBBI, TÖBBEZRES INGATLAN KÍNÁLAT: www.gdn-ingatlan.hu - GDN azonosító: 385701

Hirdetés feltöltve: 2025. 08. 01. Utoljára módosítva: 2026. 04. 01.

Irodák ára Budapesten

Ebből az összehasonlításból megtudhatod, hogyan viszonyul a lakás ára a környékbeli irodák átlagos árához. Ez nem azt jelenti, hogy ennyivel olcsóbb vagy drágább, mint amennyit a lakás ér, hanem hogy ennyivel tér el a környékbeli átlagtól.

Ennek a m² ára
Budapest m² ár
841 e Ft
1051 e Ft 20%
Ennek az ára
Budapest átlagár
174.9 M Ft m Ft
236.5 m Ft 26%

Az ingatlan elhelyezkedése

Cím: Budapest, XVI. kerület, 1. emelet

Eladó ingatlanok a környékről

III. kerület, Békásmegyer, Pablo Neruda
Eladó panellakás

Budapest, III. kerület

57 M Ft
1 szoba
37 m²
VIII. kerület, Vajdahunyad utca
Eladó téglalakás

Budapest, VIII. kerület

89.9 M Ft
2 szoba
65 m²
VIII. kerület
Eladó üzlethelyiség

Budapest, VIII. kerület

565.215 M Ft
654 m²
654 m²
XXI. kerület
Eladó családi ház

Budapest, XXI. kerület

139.9 M Ft
5 + 1 szoba
163 m²
XVI. kerület
Eladó iroda

Budapest, XVI. kerület

65 M Ft
2 szoba
70 m²
XVI. kerület
Eladó iroda

Budapest, XVI. kerület

49.5 M Ft
3 + 1 szoba
62 m²
XVI. kerület
Eladó iroda

Budapest, XVI. kerület

55 M Ft
33 m²
III. kerület, Békásmegyer, Rókahegyi út
Eladó családi ház

Budapest, III. kerület

550 M Ft
6 szoba
400 m²
VI. kerület, Külső Terézváros, Székely Bertalan utca
Eladó téglalakás

Budapest, VI. kerület

99.9 M Ft
2 + 1 szoba
61 m²
XVI. kerület
Eladó iroda

Budapest, XVI. kerület

65 M Ft
2 szoba
70 m²
V. kerület, Lipótváros, Ferenciek tere
Eladó téglalakás

Budapest, V. kerület

59.9 M Ft
1 szoba
28 m²
VIII. kerület, Práter utca
Eladó téglalakás

Budapest, VIII. kerület

67.9 M Ft
4 szoba
78 m²
XVIII. kerület, Szent Imre kertváros, Egressy Gábor utca
Eladó téglalakás

Budapest, XVIII. kerület

67.9 M Ft
1 + 1 szoba
58 m²
XVI. kerület
Eladó iroda

Budapest, XVI. kerület

449 M Ft
650 m²
VII. kerület, Belső Erzsébetváros, Wesselényi utca
Eladó téglalakás

Budapest, VII. kerület

109.9 M Ft
2 szoba
92 m²
VIII. kerület, Kálvária tér
Eladó téglalakás

Budapest, VIII. kerület

79.9 M Ft
2 szoba
63 m²
VII. kerület, Belső Erzsébetváros, Kazinczy utca
Eladó téglalakás

Budapest, VII. kerület

89 M Ft
2 szoba
48 m²
VII. kerület, Belső Erzsébetváros, Dohány utca
Eladó téglalakás

Budapest, VII. kerület

102.9 M Ft
3 szoba
89 m²
VII. kerület, Belső Erzsébetváros, Erzsébet körút
Eladó téglalakás

Budapest, VII. kerület

97.9 M Ft
2 szoba
74 m²
VIII. kerület, Corvin köz
Eladó téglalakás

Budapest, VIII. kerület

84.9 M Ft
2 + 1 szoba
52 m²
VII. kerület, Külső Erzsébetváros, István utca
Eladó téglalakás

Budapest, VII. kerület

49.9 M Ft
1 szoba
27 m²
XVIII. kerület
Eladó ikerház

Budapest, XVIII. kerület

79.9 M Ft
3 + 2 szoba
75 m²
XVI. kerület
Eladó iroda

Budapest, XVI. kerület

49.5 M Ft
3 + 1 szoba
62 m²
VI. kerület, Külső Terézváros, Székely Bertalan utca
Eladó téglalakás

Budapest, VI. kerület

48.9 M Ft
1 szoba
29 m²

Falusi CSOK ingatlanok

Balatonakali
Eladó ikerház

Balatonakali

560 M Ft
4 szoba
140 m²
Zalavár
Eladó családi ház

Zalavár

65 M Ft
2 + 1 szoba
100 m²
Alsórajk
Eladó családi ház

Alsórajk

22 M Ft
2 szoba
0 m²
Tóalmás
Eladó családi ház

Tóalmás

109 M Ft
4 szoba
241 m²
Eplény
Eladó családi ház

Eplény

99.99 M Ft
4 + 2 szoba
160 m²
Mártély
Eladó családi ház

Mártély

75 M Ft
1107 m²
0 m²
Kálmáncsa
Eladó családi ház

Kálmáncsa

5.5 M Ft
2 szoba
93 m²
Zsámbok
Eladó családi ház

Zsámbok

30 M Ft
2 szoba
80 m²