Astora Márvány8

Eladó ipari ingatlan
Szentes

+ 15 kép 1/18
137 000 000 Ft137 M Ft 183 400 Ft/m2
747 m2
építés éve:1920

Részletes adatok

Állapot: Átlagos
Telekméret: 1200 m2
Fűtés: Gázkazán
Parkolás: Garázs
Energetikai besorolás: Nem adta meg a hirdető

Az OTP Bank lakáshitel ajánlataFizetett hirdetés

+36 70 429
Majzik Alexandra
referens

Érdekel az OTP Bank kedvezményes lakáshitel ajánlata? *

* A kérdésre „Igen” válasz bejelölése esetén, az „Üzenet küldése” gombra kattintva kijelentem, hogy az OTP Bank Nyrt. Adatkezelési tájékoztatójának tartalmát megismertem és tudomásul vettem.

Eladó ipari ingatlan leírása

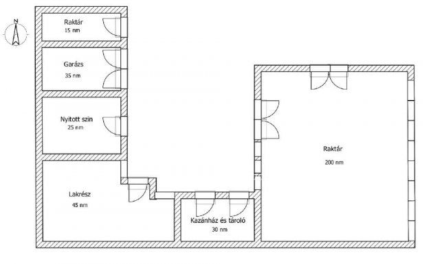
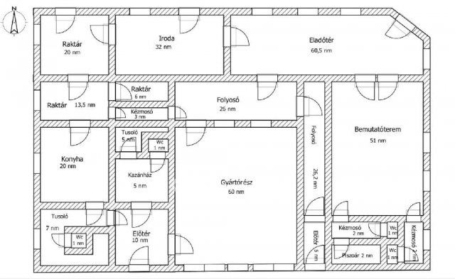
Kizárólag az OTP Ingatlanpont kínálatában! Szentes, Felsőpárton, sokoldalú ingatlan komplexum eladó! Eladásra kínálunk Szentesen, a Felsőpárton egy 747 nm-es, többfunkciós épületkomplexumot, amely számos vállalkozási és hasznosítási lehetőséget rejt magában. A főépület 357 nm, korábban vendéglátóegységként működött, de kialakítása miatt irodai, kereskedelmi vagy gyártási célokra is ideális. Az épületben található utcafrontra nyíló iroda, bemutatóterem és raktárhelyiség, több mosdó, tusoló, konyha valamint gyártó- és kiszolgálóhelyiségek. Minden részegységhez külön vizesblokk tartozik. Az 1200 nm-es telken egy 200 nm-es üzemcsarnok is található, ipari árammal (3×32A, bővíthető 3×65A) felújított világítással. Az udvaron melléképületek, garázs, nyitott szín, valamint egy lakórész is helyet kapott. Ez az ingatlan számtalan lehetőséget kínál, legyen szó vállalkozás indításáról, bővítéséről vagy befektetésről. Ne hagyja ki ezt a kivételes lehetőséget! Kizárólag az OTP Ingatlanpontnál elérhető! Amennyiben az ingatlan felkeltette érdeklődését, hívjon bizalommal és tekintsük meg együtt. Irodánk teljes OTP banki hátterével áll rendelkezésére, egyedi ajánlatokkal, sorban állás nélküli díjmentes ügyintézéssel.

Hirdetés feltöltve: 2025. 10. 27. Utoljára módosítva: 2025. 12. 28.

Ipari ingatlanok ára Szentesen

Ebből az összehasonlításból megtudhatod, hogyan viszonyul a lakás ára a környékbeli ipari ingatlanok átlagos árához. Ez nem azt jelenti, hogy ennyivel olcsóbb vagy drágább, mint amennyit a lakás ér, hanem hogy ennyivel tér el a környékbeli átlagtól.

Ennek a m² ára
Szentes m² ár
183 e Ft
269 e Ft 32%
Ennek az ára
Szentes átlagár
137 M Ft m Ft
157.5 m Ft 13%

Az ingatlan elhelyezkedése

Cím: Szentes

Eladó ingatlanok a környékről

Eladó ipari ingatlan
Eladó ipari ingatlan

Makó

1100 M Ft
6600 m²
2200 m2
Eladó ipari ingatlan
Eladó ipari ingatlan

Csongrád

188 M Ft
700 m2
Eladó ipari ingatlan
Eladó ipari ingatlan

Hódmezővásárhely

108 M Ft
3 szoba
400 m2
Eladó téglalakás
Eladó téglalakás

Szeged

39.643 M Ft
1 szoba
28 m2
Eladó ipari ingatlan
Eladó ipari ingatlan

Szentes

150 M Ft
1220 m2
Eladó téglalakás
Eladó téglalakás

Szeged, Belváros, Bercsényi utca

34.9 M Ft
1 szoba
24 m2
Eladó ipari ingatlan
Eladó ipari ingatlan

Hódmezővásárhely

10 M Ft
380 m2
Eladó családi ház
Eladó családi ház

Sándorfalva

15 M Ft
2 + 1 szoba
60 m2
Eladó ipari ingatlan
Eladó ipari ingatlan

Szentes

147.3 M Ft
7856 m2
Eladó téglalakás
Eladó téglalakás

Szeged

74.9 M Ft
3 szoba
76 m2
Eladó ipari ingatlan
Eladó ipari ingatlan

Hódmezővásárhely

159 M Ft
5060 m²
1567 m2
Eladó ipari ingatlan
Eladó ipari ingatlan

Makó

410 M Ft
5000 m²
1300 m2
Eladó ipari ingatlan
Eladó ipari ingatlan

Makó

42 M Ft
2351 m²
Eladó ipari ingatlan
Eladó ipari ingatlan

Hódmezővásárhely

130 M Ft
4150 m²
1800 m2
Eladó panellakás
Eladó panellakás

Szeged

45.5 M Ft
1 + 1 szoba
47 m2
Eladó ipari ingatlan
Eladó ipari ingatlan

Algyő

148 M Ft
1 szoba
Eladó ipari ingatlan
Eladó ipari ingatlan

Szeged

183.956 M Ft
40879 m²
250 m2
Eladó panellakás
Eladó panellakás

Szeged

64.9 M Ft
3 szoba
69 m2
Eladó családi ház
Eladó családi ház

Röszke

88.99 M Ft
4 szoba
159 m2
Eladó téglalakás
Eladó téglalakás

Szeged

57.78 M Ft
3 szoba
49 m2
Eladó téglalakás
Eladó téglalakás

Szeged

74.9 M Ft
3 szoba
76 m2
Eladó ipari ingatlan
Eladó ipari ingatlan

Hódmezővásárhely

115 M Ft
4 + 6 szoba
630 m2
Eladó ipari ingatlan
Eladó ipari ingatlan

Hódmezővásárhely

150 M Ft
1 szoba
1100 m2
Eladó ipari ingatlan
Eladó ipari ingatlan

Szentes

95 M Ft
820 m²
267 m2

Falusi CSOK ingatlanok

Eladó családi ház
Eladó családi ház

Dág, Petőfi Sándor utca

36.9 M Ft
4 szoba
105 m2
Eladó családi ház
Eladó családi ház

Zengővárkony

30.999 M Ft
3 szoba
87 m2
Eladó családi ház
Eladó családi ház

Sellye

21.6 M Ft
2 szoba
72 m2
Eladó családi ház
Eladó családi ház

Herend

119.6 M Ft
5 szoba
108 m2
Eladó családi ház
Eladó családi ház

Elek

20.9 M Ft
4 szoba
126 m2
Eladó családi ház
Eladó családi ház

Szabadbattyán

163.99 M Ft
5 szoba
255 m2
Eladó családi ház
Eladó családi ház

Bag

16.9 M Ft
6 szoba
160 m2
Eladó családi ház
Eladó családi ház

Újszilvás

23 M Ft
3 + 1 szoba
100 m2