Astora Olive Club House

Eladó ipari ingatlan
Szeged

+ 17 kép 1/20
750 000 000 Ft750 M Ft 702 905 Ft/m2
1067 m2

Részletes adatok

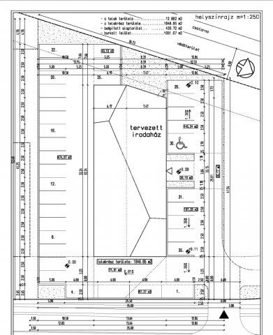
Telekméret: 3195 m2
Fűtés: Egyéb
Energetikai besorolás: Nem adta meg a hirdető

Az OTP Bank lakáshitel ajánlataFizetett hirdetés

+36 70 602
Szűcs Zoltán
referens

Érdekel az OTP Bank kedvezményes lakáshitel ajánlata? *

* A kérdésre „Igen” válasz bejelölése esetén, az „Üzenet küldése” gombra kattintva kijelentem, hogy az OTP Bank Nyrt. Adatkezelési tájékoztatójának tartalmát megismertem és tudomásul vettem.

Eladó ipari ingatlan leírása

Eladó „A” kategóriás irodaház Szeged iparterületén – közvetlenül a BYD gyár szomszédságában!

Szeged egyik leggyorsabban fejlődő ipari környezetében, mindössze ~200 méterre a kínai BYD közelgő elektromosautó-gyárától, megvásárolható ez a 2013-ban épült, prémium minőségű, teljesen felszerelt, 3 szintes irodaház.

A BYD európai gyártóbázisának közelsége kiugró értéknövekedési potenciált teremt: az ellátólánc szereplői, beszállítók, logisztikai és szolgáltatócégek számára a környék már most kiemelt keresleti ponttá vált. Ipari területen ekkora méretű, modern, azonnal használható kulcsrakész irodaház ritkaságnak számít – nem csak vállalati központnak, de hosszú távú befektetésként is ideális.

Főbb jellemzők:

- 1067 m² hasznos alapterület

- 3 szint, modern kialakítással

- 17 különálló irodahelyiség

- Lift

Szintenként:

- férfi, női és akadálymentesített mellékhelyiség

- teakonyha

Energiahatékony, modern gépészet

- Napelemrendszer

- Hőszivattyús megoldás, fan-coil hűtés/fűtés

- Alacsony üzemeltetési költség

- Kiváló energetikai besorolás

Felszereltség

- Bútorozott irodák – azonnal használható

- Kamerarendszer

- Beléptetőrendszer

- Elektromos kapu

- Modern informatikai és biztonsági infrastruktúra

Telek és parkolás

- 3195 m² telek

- Nagyrészt térkövezett udvar

- 30 saját parkoló, udvaron belül

Lokáció – Back Bernát utca, Szeged ipari övezete

- BYD gyártól kb. 200 méterre

- Közvetlenül az ipari szolgáltatói övezetben

- Kiváló megközelíthetőség, gyors összeköttetés főbb utakhoz és logisztikai útvonalakhoz

A BYD gyár indulásával a környéken drasztikusan megnő az irodai, szolgáltatói és logisztikai célú ingatlanok iránti kereslet, így ez az irodaház nem csupán egy ingatlan – hanem egy időben megragadott befektetési lehetőség, kiemelkedő megtérülési potenciállal, hosszú távú bérbeadási biztonsággal.

Ár: 750 000 000 Ft (fordított áfa)

Befektetőknek, vállalati központnak, szolgáltatócégeknek és beszállítóknak kitűnő választás.

Drónfelvételen megtekinthető az ingatlan:

Telefonos egyeztetést követően rendelkezésre állnak további tervrajzok és műszaki tartalom. ...TOVÁBBI, TÖBBEZRES INGATLAN KÍNÁLAT: www.gdn-ingatlan.hu - GDN azonosító: 390358

Hirdetés feltöltve: 2025. 12. 03. Utoljára módosítva: 2026. 01. 13.

Ipari ingatlanok ára Szegeden

Ebből az összehasonlításból megtudhatod, hogyan viszonyul a lakás ára a környékbeli ipari ingatlanok átlagos árához. Ez nem azt jelenti, hogy ennyivel olcsóbb vagy drágább, mint amennyit a lakás ér, hanem hogy ennyivel tér el a környékbeli átlagtól.

Ennek a m² ára
Szeged m² ár
703 e Ft
1507 e Ft 53%
Ennek az ára
Szeged átlagár
750 M Ft m Ft
217.1 m Ft -245%

Az ingatlan elhelyezkedése

Cím: Szeged

Eladó ipari ingatlanok a környékről

Eladó ipari ingatlan
Eladó ipari ingatlan

Szeged

550 M Ft
26807 m2
Eladó ipari ingatlan
Eladó ipari ingatlan

Szeged

380 M Ft
1107 m²
1200 m2
Eladó ipari ingatlan
Eladó ipari ingatlan

Szeged

183.956 M Ft
40879 m²
250 m2
Eladó ipari ingatlan
Eladó ipari ingatlan

Szeged

188.999 M Ft
7000 m²
Eladó ipari ingatlan
Eladó ipari ingatlan

Pusztamérges

69 M Ft
400 m2
Eladó ipari ingatlan
Eladó ipari ingatlan

Szeged

15 M Ft
75 m2
Eladó ipari ingatlan
Eladó ipari ingatlan

Hódmezővásárhely

115 M Ft
4 + 6 szoba
630 m2
Eladó ipari ingatlan
Eladó ipari ingatlan

Szeged

258.459 M Ft
201606 m²
250 m2
Eladó ipari ingatlan
Eladó ipari ingatlan

Csongrád

499 M Ft
2000 m2
Eladó ipari ingatlan
Eladó ipari ingatlan

Szeged, Baktói kiskertek, 1. utca

550 M Ft
26807 m2
Eladó ipari ingatlan
Eladó ipari ingatlan

Makó

410 M Ft
5000 m²
1300 m2
Eladó ipari ingatlan
Eladó ipari ingatlan

Szeged

115 M Ft
31840 m²
Eladó ipari ingatlan
Eladó ipari ingatlan

Makó

3440 M Ft
29561 m²
7600 m2
Eladó ipari ingatlan
Eladó ipari ingatlan

Szeged

115 M Ft
29410 m²
Eladó ipari ingatlan
Eladó ipari ingatlan

Makó

1100 M Ft
6600 m²
2200 m2
Eladó ipari ingatlan
Eladó ipari ingatlan

Hódmezővásárhely

118 M Ft
1388 m²
600 m2
Eladó ipari ingatlan
Eladó ipari ingatlan

Szeged

220 M Ft
5662 m²
15 m2
Eladó ipari ingatlan
Eladó ipari ingatlan

Hódmezővásárhely

108 M Ft
3 szoba
400 m2
Eladó ipari ingatlan
Eladó ipari ingatlan

Makó

42 M Ft
2351 m²
Eladó ipari ingatlan
Eladó ipari ingatlan

Makó

600 M Ft
7400 m²
1270 m2
Eladó ipari ingatlan
Eladó ipari ingatlan

Szeged

199 M Ft
12171 m²
12171 m2
Eladó ipari ingatlan
Eladó ipari ingatlan

Szentes

150 M Ft
1220 m2
Eladó ipari ingatlan
Eladó ipari ingatlan

Szeged

119 M Ft
5988 m²
2 m2
Eladó ipari ingatlan
Eladó ipari ingatlan

Makó

1250 M Ft
5200 m²
2670 m2

Falusi CSOK ingatlanok

Eladó családi ház
Eladó családi ház

Úri

260 M Ft
7 szoba
300 m2
Eladó családi ház
Eladó családi ház

Pannonhalma

83.9 M Ft
4 szoba
97 m2
Eladó családi ház
Eladó családi ház

Szederkény

107.9 M Ft
6 szoba
224 m2
Eladó családi ház
Eladó családi ház

Seregélyes

75 M Ft
6 szoba
160 m2
Eladó családi ház
Eladó családi ház

Kenyeri

21.8 M Ft
2 szoba
75 m2
Eladó családi ház
Eladó családi ház

Tapsony

23.8 M Ft
3 szoba
130 m2
Eladó családi ház
Eladó családi ház

Háromfa, Kossuth

22.4 M Ft
139 m2
Eladó családi ház
Eladó családi ház

Verseg

54 M Ft
2 szoba
92 m2