Oasis Residence

Eladó ipari ingatlan
Gerjen

Figyelem!

Ez az ingatlan a 2019.07.01-től induló falusi CSOK által támogatott településen található

+ 5 kép 1/8
75 000 000 Ft75 M Ft 216 138 Ft/m2
347 m2

Részletes adatok

Fűtés: Gázkazán
Energetikai besorolás: Nem adta meg a hirdető

Az OTP Bank lakáshitel ajánlataFizetett hirdetés

+36 70 199
Bézsenyi Tamás
HOUSE36 Ingatlanbázis Kft.

Érdekel az OTP Bank kedvezményes lakáshitel ajánlata? *

* A kérdésre „Igen” válasz bejelölése esetén, az „Üzenet küldése” gombra kattintva kijelentem, hogy az OTP Bank Nyrt. Adatkezelési tájékoztatójának tartalmát megismertem és tudomásul vettem.

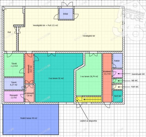
Eladó ipari ingatlan leírása

Tökéletes befektetés azok számára, akik a fejlődő Gerjenben szeretnének üzletet nyitni! Ez a 347 m2-es 2 szintes ( földszint, alagsor) ingatlan 560 m2-es telken helyezkedik el a falu központjában.
Főbb jellemzők:
- Kiemelt elhelyezkedés a paksi beruházások és a Kalocsa-Gerjen híd miatt
- 121 m2-es vendéglátó tér és további, külön megközelíthető privát termek (27 m2 és 52 m2)
- További helyiségek: raktár, konyha, személyzeti és vendég WC-k, mosogató
- 75 m2-es alagsor kazánházzal és raktárhelyiségekkel
- Fűtése vegyes tüzelésű kazánról és gázkazánról, melegvíz ellátása gázbojlerrel
- 2 db hűtő-fűtő klíma (2022-ben beszerelve)
- Nyílászárói műanyagszerkezet, hőszigetelő üvegezéssel
- Teljes felszereléssel együtt megvásárolható (hűtőkamra, hűtőpult, stb.)
- Mobilgarázs az udvaron, benne a vételárban!
Ne hagyja ki ezt a fantasztikus lehetőséget!
Az ingatlan ideális vendéglátó egység, rendezvényközpont vagy más üzleti célra.

A HOUSE36kínálatában található összes ingatlannal kapcsolatban tudok felvilágosítást nyújtani!
Amennyiben eladó-kiadó ingatlana van, vagy finanszírozási megoldást keres, hívjon! Megtaláljuk a legjobb lehetőséget Önnek! Hitelspecialistánk mindenben segít.Irodánkban ez a szolgáltatás INGYENES.

Figyelem! Az adatlap a megbízónktól kapott adatok alapján készült. Pontosságáért felelősséget nem tudunk vállalni!
Az iroda legfrissebb, aktuális kínálatát a HOUSE36 saját weboldalán találja!

Hirdetés feltöltve: 2025. 10. 07. Utoljára módosítva: 2026. 01. 24.

Az ingatlan elhelyezkedése

Cím: Gerjen

Eladó ingatlanok a környékről

Eladó üzlethelyiség
Eladó üzlethelyiség

Tamási, Panzió utca

203.9 M Ft
Eladó családi ház
Eladó családi ház

Mucsi, Dózsa György utca

29.9 M Ft
4 szoba
120 m2
Eladó családi ház
Eladó családi ház

Decs

22.9 M Ft
4 szoba
127 m2
Eladó családi ház
Eladó családi ház

Bölcske

34.5 M Ft
2 szoba
100 m2
Eladó ipari ingatlan
Eladó ipari ingatlan

Hőgyész

64 M Ft
8992 m²
1048 m2
Eladó ipari ingatlan
Eladó ipari ingatlan

Paks, Vadász utca

499 M Ft
20 szoba
810 m2
Eladó családi ház
Eladó családi ház

Simontornya, József Attila utca

16 M Ft
3 szoba
118 m2
Eladó mezogazdasagi ingatlan
Eladó mezogazdasagi ingatlan

Szekszárd, Árnyas szurdik

31.9 M Ft
2425 m²
63 m2
Eladó ipari ingatlan
Eladó ipari ingatlan

Szekszárd

460 M Ft
17308 m2
Eladó ipari ingatlan
Eladó ipari ingatlan

Ozora

350 M Ft
1000 m2
Eladó téglalakás
Eladó téglalakás

Szekszárd, Bakta, Árok utca 3

29.9 M Ft
1 szoba
40 m2
Eladó téglalakás
Eladó téglalakás

Szekszárd

41.9 M Ft
0 + 2 szoba
45 m2
Eladó téglalakás
Eladó téglalakás

Iregszemcse

8.5 M Ft
2 szoba
77 m2
Eladó ipari ingatlan
Eladó ipari ingatlan

Paks, Kölesdi út

267.43 M Ft
275 m2
Eladó családi ház
Eladó családi ház

Dunaföldvár

57.5 M Ft
4 + 1 szoba
160 m2
Eladó ipari ingatlan
Eladó ipari ingatlan

Bonyhád

770 M Ft
20325 m²
3000 m2
Eladó panellakás
Eladó panellakás

Szekszárd

38.99 M Ft
3 szoba
57 m2
Eladó nyaraló
Eladó nyaraló

Bogyiszló, Bóni fok

16.5 M Ft
1 szoba
42 m2
Eladó családi ház
Eladó családi ház

Ozora

31 M Ft
4 szoba
91 m2
Eladó ipari ingatlan
Eladó ipari ingatlan

Paks

100 M Ft
1 szoba
560 m2
Eladó téglalakás
Eladó téglalakás

Tolna

19.5 M Ft
1 szoba
44 m2
Eladó ipari ingatlan
Eladó ipari ingatlan

Tolna

38.5 M Ft
300 m2
Eladó ipari ingatlan
Eladó ipari ingatlan

Hőgyész

64 M Ft
1048 m2
Eladó családi ház
Eladó családi ház

Dombóvár

20.9 M Ft
3 + 1 szoba
115 m2

Falusi CSOK ingatlanok

Eladó családi ház
Eladó családi ház

Hosszúpereszteg

27.9 M Ft
4 szoba
121 m2
Eladó családi ház
Eladó családi ház

Úrkút

94.9 M Ft
4 szoba
186 m2
Eladó családi ház
Eladó családi ház

Badacsonytördemic

180.95 M Ft
4 szoba
160 m2
Eladó családi ház
Eladó családi ház

Kaposgyarmat

695 M Ft
6 szoba
610 m2
Eladó családi ház
Eladó családi ház

Tab

58.5 M Ft
4 szoba
80 m2
Eladó családi ház
Eladó családi ház

Nagyváty, Kossuth utca

51.9 M Ft
4 szoba
125 m2
Eladó családi ház
Eladó családi ház

Segesd

14.3 M Ft
3 szoba
100 m2
Eladó családi ház
Eladó családi ház

Törtel

59.9 M Ft
3 szoba
66 m2

Falusi CSOK ingatlanok

Eladó családi ház
Eladó családi ház

Seregélyes

75 M Ft
6 szoba
160 m2
Eladó családi ház
Eladó családi ház

Bag

16.9 M Ft
6 szoba
160 m2
Eladó családi ház
Eladó családi ház

Sárisáp, Orgona utca

60 M Ft
4 szoba
145 m2
Eladó családi ház
Eladó családi ház

Somogygeszti

38.6 M Ft
3 + 1 szoba
98 m2
Eladó családi ház
Eladó családi ház

Fülöpszállás

299 M Ft
14 + 5 szoba
680 m2
Eladó családi ház
Eladó családi ház

Badacsonytördemic

180.95 M Ft
4 szoba
160 m2
Eladó családi ház
Eladó családi ház

Tab

14.9 M Ft
3 szoba
110 m2
Eladó családi ház
Eladó családi ház

Újhartyán, Gödör utca

81.99 M Ft
3 szoba
110 m2