Stay Family Park

Eladó ipari ingatlan
Budapest, XXI. kerület

+ 17 kép 1/20
310 000 000 Ft310 M Ft 310 000 Ft/m2
1000 m2
építés éve:2010

Részletes adatok

Állapot: Átlagos
Telekméret: 6614 m2
Fűtés: Egyéb
Energetikai besorolás: Nem adta meg a hirdető

Az OTP Bank lakáshitel ajánlataFizetett hirdetés

+36 30 201
Pirik Róbert
referens

Érdekel az OTP Bank kedvezményes lakáshitel ajánlata? *

* A kérdésre „Igen” válasz bejelölése esetén, az „Üzenet küldése” gombra kattintva kijelentem, hogy az OTP Bank Nyrt. Adatkezelési tájékoztatójának tartalmát megismertem és tudomásul vettem.

Eladó ipari ingatlan leírása

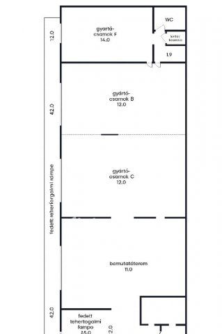
Eladó telephely - hőszigetelt gyártócsarnok, műhely, bemutatóterem + külön telek (összesen 2000 nm terület).
Csarnok irányár: 310 M Ft + áfa.
Telek irányár: 40 M Ft + áfa. Egyben és külön is eladó.

Eladó a Csepel Művek területén egy kiváló műszaki állapotú, hőszigetelt, közel 1000 nm-es csarnoképület, valamint egy különálló, 1000 nm-es telek. A helyszín tömegkorlátozás nélkül megközelíthető, logisztikailag ideális elhelyezkedésű.

Az épület főbb jellemzői:
befoglaló méret: kb. 60 × 15 m, tégla főfalazattal.
Hőszigetelés: 10 cm fal-, 20 cm tetőszigetelés + 10 cm szendvicspanel tető (2020-2022).

Tetőbevilágítók: hőszigetelt kivitel, kiváló fényviszonyok (2020- 2021).

Öt különálló egység, belül átjárható,
4 motoros szekcionált garázskapu, az 5. rész külön bejárati ajtó.

Funkció jelenleg: 1/4 bemutatóterem + 3/4 gyártócsarnok.

A bemutatóteremben:

újszerű konyha (2020), .2 db 7 kW-os klíma (fűtés/hűtés).

Fűtés-hűtés -energia:

35 kW-os gázkazán (2024), 35 kW-os hőszivattyú (2023), radiátoros + fancoilos rendszer (fűtés/hűtés zónákra osztható).

18 kW napelem (2023) - szaldó elszámolással, éves villanyköltség gyakorlatilag nulla,
3 × 80 A ipari áram, tetszőlegesen bővíthető.

Helyiségek és kialakítás:

- bemutatóterem: 2 WC + dupla kézmosó,

-gyártócsarnok: 2 WC, kézmosó, zuhanyzó, öltöző,

- 75 nm galéria.

Magasnyomású levegőrendszer kiépítve.

Rakodás - logisztika,
a teljes épület hossza mentén fedett rámpa található,
mélység: 3 m.

Terület: 150 nm, ebből 42 nm oldalról is zárt.

3 rakodórámpa, platós teherautók békás ki- és berakodása megoldott.

A különálló telek (1124 nm összesen) - irányár: +40 M Ft + áfa

Bekerített rész: 889 nm, motoros kapuval.

Közmű: 3 × 16 A áram.

Tartozékok:

2 db magasított, új, 12 m-es konténer,

közöttük 9 × 12 m ponyvás íves fedés, alatta aszfaltburkolattal.

Terület 20 cm murvával fedve,
kiváló teherautó parkoló és kültéri tároló.

Plusz: 235 nm külön hrsz.-on lévő telekrész, ügyvédi megosztással rendelkezik.

Összesen 1124 nm - 45% beépíthetőség - 505 nm építhető be igény esetén.

Tulajdoni és jogi háttér:
céges tulajdon.

Árak nettóban értendők

Osztatlan közös tulajdon (Csepel Művekben megszokott), tehermentes.

Az ingatlan előzetes egyeztetés után bármikor megtekinthető.
Kiváló választás gyártó-, logisztikai-, raktározási-, műhely- vagy bemutatótermi tevékenységhez, illetve több profil együttes működtetéséhez.
3 rakodórámpa, platós teherautók békás ki- és berakodása megoldott.

A különálló telek (1124 nm összesen) - irányár: +40 M Ft + áfa

Bekerített rész: 889 m?, motoros kapuval.

Közmű: 3 × 16 A áram.

Tartozékok:

2 db magasított, új, 12 m-es konténer,

közöttük 9 × 12 m ponyvás íves fedés, alatta aszfaltburkolattal.

Terület 20 cm murvával fedve,
kiváló teherautó parkoló és kültéri tároló.

Plusz: 235 nm külön hrsz.-on lévő telekrész, ügyvédi megosztással rendelkezik.

Összesen 1124 nm ? 45% beépíthetőség ? 505 nm építhető be igény esetén.

Tulajdoni és jogi háttér:
céges tulajdon.

Árak nettóban értendők

Osztatlan közös tulajdon (Csepel Művekben megszokott), tehermentes.

Az ingatlan előzetes egyeztetés után bármikor megtekinthető.
Kiváló választás gyártó-, logisztikai-, raktározási-, műhely- vagy bemutatótermi tevékenységhez, illetve több profil együttes működtetéséhez.

Hirdetés feltöltve: 2025. 11. 19. Utoljára módosítva: 2025. 11. 19.

Ipari ingatlanok ára Budapesten

Ebből az összehasonlításból megtudhatod, hogyan viszonyul a lakás ára a környékbeli ipari ingatlanok átlagos árához. Ez nem azt jelenti, hogy ennyivel olcsóbb vagy drágább, mint amennyit a lakás ér, hanem hogy ennyivel tér el a környékbeli átlagtól.

Ennek a m² ára
XXI. kerület m² ár
Budapest m² ár
310 e Ft
299 e Ft -4%
2834 e Ft 89%
Ennek az ára
XXI. kerület átlagár
Budapest átlagár
310 M Ft m Ft
260.8 m Ft -19%
232.7 m Ft -33%

Az ingatlan elhelyezkedése

Cím: Budapest, XXI. kerület

Eladó ingatlanok a környékről

Eladó téglalakás
Eladó téglalakás

XI. kerület, Gellérthegy, Gombócz Zoltán utca

142 M Ft
2 + 1 szoba
71 m2
Eladó ipari ingatlan
Eladó ipari ingatlan

XXI. kerület, Gyártelep

450 M Ft
1691 m²
969 m2
Eladó téglalakás
Eladó téglalakás

VI. kerület, Külső Terézváros, Szófia utca

119.9 M Ft
4 szoba
103 m2
Eladó ipari ingatlan
Eladó ipari ingatlan

XXI. kerület

46 M Ft
100 m2
Eladó ipari ingatlan
Eladó ipari ingatlan

XXI. kerület, Erdőalja

289 M Ft
4215 m²
1100 m2
Eladó üzlethelyiség
Eladó üzlethelyiség

II. kerület, Országút, Margit körút

6.999 M Ft
5 m2
Eladó téglalakás
Eladó téglalakás

VII. kerület, Belső Erzsébetváros, Erzsébet körút

160 M Ft
3 szoba
88 m2
Eladó ipari ingatlan
Eladó ipari ingatlan

XXI. kerület

870 M Ft
3299 m²
1990 m2
Eladó téglalakás
Eladó téglalakás

VII. kerület

59.9 M Ft
1 szoba
30 m2
Eladó ipari ingatlan
Eladó ipari ingatlan

XXI. kerület, Gyártelep

187 M Ft
16 szoba
866 m2
Eladó ipari ingatlan
Eladó ipari ingatlan

XXI. kerület, Gyártelep, Mansfeld Péter utca

46 M Ft
100 m2
Eladó téglalakás
Eladó téglalakás

III. kerület, Óbuda, Szomolnok utca

89.9 M Ft
2 + 2 szoba
96 m2
Eladó ipari ingatlan
Eladó ipari ingatlan

XXI. kerület, Gyártelep, Színesfém utca

300 M Ft
2300 m2
Eladó téglalakás
Eladó téglalakás

XI. kerület, Kelenföld

105 M Ft
2 szoba
43 m2
Eladó ipari ingatlan
Eladó ipari ingatlan

XXI. kerület, Gyártelep, Mansfeld Péter utca

140 M Ft
507 m2
Eladó téglalakás
Eladó téglalakás

VIII. kerület, Palotanegyed, Rákóczi út

190 M Ft
5 szoba
121 m2
Eladó ipari ingatlan
Eladó ipari ingatlan

XXI. kerület, Gyártelep

450 M Ft
1691 m²
969 m2
Eladó ipari ingatlan
Eladó ipari ingatlan

XXI. kerület, Gyártelep

132 M Ft
998 m2
Eladó téglalakás
Eladó téglalakás

VII. kerület, Belső Erzsébetváros, Rózsa utca

170 M Ft
5 szoba
124 m2
Eladó téglalakás
Eladó téglalakás

XIII. kerület, Vizafogó, Váci út

109.9 M Ft
3 szoba
93 m2
Eladó ipari ingatlan
Eladó ipari ingatlan

XXI. kerület, Gyártelep, Központi út

219 M Ft
822 m2
Eladó téglalakás
Eladó téglalakás

III. kerület, Óbudaisziget, Folyamőr utca

76.9 M Ft
1 szoba
25 m2
Eladó ipari ingatlan
Eladó ipari ingatlan

XXI. kerület

350 M Ft
1000 m²
1000 m2
Eladó téglalakás
Eladó téglalakás

III. kerület, Rómaifürdő, Királyok útja

148 M Ft
3 szoba
65 m2

Falusi CSOK ingatlanok

Eladó családi ház
Eladó családi ház

Pannonhalma

159 M Ft
5 szoba
240 m2
Eladó családi ház
Eladó családi ház

Mezőfalva

39 M Ft
3 szoba
77 m2
Eladó családi ház
Eladó családi ház

Kánya

12.9 M Ft
2 szoba
70 m2
Eladó panellakás
Eladó panellakás

Fonyód, Süllő utca

34 M Ft
1 szoba
27 m2
Eladó ikerház
Eladó ikerház

Seregélyes

39.9 M Ft
4 szoba
150 m2
Eladó családi ház
Eladó családi ház

Kemeneshőgyész

8 M Ft
2 szoba
60 m2
Eladó családi ház
Eladó családi ház

Villány

65 M Ft
3 szoba
95 m2
Eladó családi ház
Eladó családi ház

Lakhegy

67.9 M Ft
4 szoba
115 m2