Eladó ipari ingatlan
Békéscsaba, 10 felett
Részletes adatok
Az OTP Bank lakáshitel ajánlataFizetett hirdetés
Induló törlesztőrészlet
101 262 Ft /hóTörlesztőrészlet a 13. hónaptól
129 106 Ft /hóInduló törlesztőrészlet
135 016 Ft /hóTörlesztőrészlet a 13. hónaptól
172 142 Ft /hóA tájékoztatás nem teljes körű és nem minősül ajánlattételnek. Az OTP Évnyerő Lakáshitelei 1 éves türelmi idős kölcsönök, amellyel az első 12 hónapban alacsonyabb a havi törlesztőrészlet. A tőke törlesztését a 13. hónaptól kell megkezdeni.
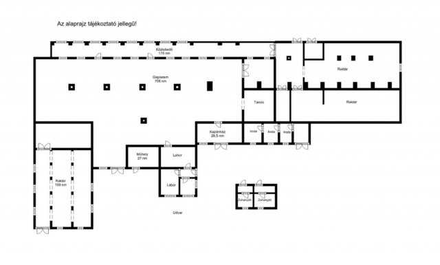
Eladó ipari ingatlan leírása
Eladó Békéscsabán egy 2157 m² alapterületű ipari ingatlan, amely korábban tollgyárként működött. Az ingatlan jó szerkezeti állapotban van, hatalmas terei és 7-9 méteres belmagassága számos ipari, logisztikai vagy gyártó tevékenységre alkalmassá teszi.
További jellemzők:
- 96 m mély fúrt kút, metánmentesítéssel – ipari vízellátásra kiváló,
- térburkolt udvar, teherautóval is könnyen megközelíthető,
- tágas, jól tagolható belső terek,
- 1452 m²-es telekméret,
- Gksz besorolású terület, max. magasság 10,5 m lehet.
Javasolt hasznosítási lehetőségek:
- gyártóüzem műhelyekkel,
- raktározó, logisztikai központ,
- feldolgozóipari telephely,
- bérbeadásra is kiváló befektetés.
Az ingatlan elhelyezkedése ideális olyan vállalkozások számára, akik központi helyet keresnek Békéscsabán belül, könnyű megközelíthetőséggel és jó infrastruktúrával.
További információkért és megtekintésért vegye fel velem a kapcsolatot!
Hirdetés feltöltve: 2025. 04. 24. Utoljára módosítva: 2025. 09. 28.
Ipari ingatlanok ára Békéscsabán
Ebből az összehasonlításból megtudhatod, hogyan viszonyul a lakás ára a környékbeli ipari ingatlanok átlagos árához. Ez nem azt jelenti, hogy ennyivel olcsóbb vagy drágább, mint amennyit a lakás ér, hanem hogy ennyivel tér el a környékbeli átlagtól.
Az ingatlan elhelyezkedése
Cím: Békéscsaba, 10 felett
Eladó ipari ingatlanok a környékről

Békéscsaba, Andrássy út-Bartók Béla út közötti városrész, Gábor Áron utca
