Metrodom

Eladó ikerház
Veresegyház

+ 14 kép 1/17
119 900 000 Ft119.9 M Ft 1 175 490 Ft/m2
3 szoba
102 m2
építés éve:2007

Részletes adatok

Telekméret: 350 m2
Fűtés: Gázkazán
Energetikai besorolás: Nem adta meg a hirdető

Az OTP Bank lakáshitel ajánlataFizetett hirdetés

+36 30 989
Keszthelyi László
Szigetszentmiklós OTP Ip

Érdekel az OTP Bank kedvezményes lakáshitel ajánlata? *

* A kérdésre „Igen” válasz bejelölése esetén, az „Üzenet küldése” gombra kattintva kijelentem, hogy az OTP Bank Nyrt. Adatkezelési tájékoztatójának tartalmát megismertem és tudomásul vettem.

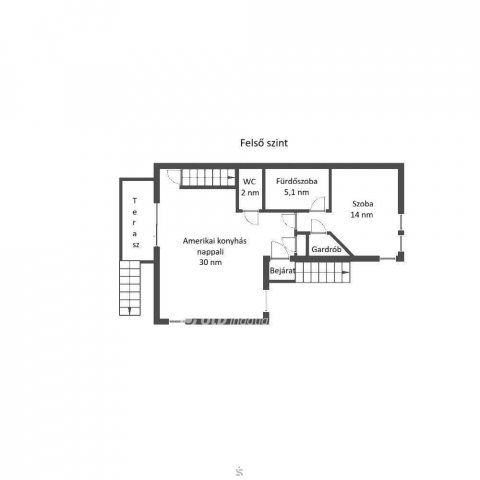
Eladó ikerház leírása

Eladó Veresegyház egyik legszebb részén, a Hegyalja utcában egy 102 nm-es, 3 szobás, kiváló állapotú ikerház, amelyhez egy 350 nm-es, gondozott kert tartozik.

A házba lépve azonnal otthon érezzük magunkat: a felső szinten tágas, napfényben úszó amerikai konyhás nappali fogad, ahonnan a saját fürdővel és gardróbbal rendelkező privát háló külön kis lakrészként szolgál. A nappaliból nyíló terasz a délutáni pihenések tökéletes helyszíne, a mosdó pedig tovább növeli a kényelmet. Innen vezet a lépcső az alsó szintre, ahol egy tágas szoba, külön mosdó (igény esetén zuhanyzó is kialakítható), mosókonyha, valamint a 20 nm-es garázs is megtalálható.

A nyugati tájolású kert rendezett, automata locsolórendszerrel felszerelt. Külön értéket képvisel a 21 m-es, fedett, árammal ellátott nyári konyha, amely kiváló helyszín családi és baráti összejövetelekhez.
A ház műszakilag is megbízható: padlófűtés, cirkó gázkazán, 4,24 kWp napelemrendszer. További extrák: klíma, riasztórendszer, elektromos redőnyök, locsolórendszer.

Ez az ingatlan tökéletes választás mindazoknak, akik modern, energiatakarékos otthont keresnek zöld környezetben, Veresegyház egyik legjobb utcájában. Költözzön ide, ahol a hétköznap is élmény!

ingatlanséta:

Hirdetés feltöltve: 2026. 01. 10. Utoljára módosítva: 2026. 01. 10.

Az ingatlan elhelyezkedése

Cím: Veresegyház

Eladó ikerházak a környékről

Eladó ikerház
Eladó ikerház

Vác

149.9 M Ft
5 szoba
202 m2
Eladó ikerház
Eladó ikerház

Szentendre, Szentendre

398 M Ft
5 szoba
267 m2
Eladó ikerház
Eladó ikerház

Veresegyház

99.7 M Ft
6 szoba
210 m2
Eladó ikerház
Eladó ikerház

Veresegyház

70 M Ft
3 szoba
120 m2
Eladó ikerház
Eladó ikerház

Veresegyház

145.8 M Ft
1 + 4 szoba
154 m2
Eladó ikerház
Eladó ikerház

Pécel, Pécel - kertváros

127 M Ft
4 szoba
125 m2
Eladó ikerház
Eladó ikerház

Vác

175.356 M Ft
5 szoba
165 m2
Eladó ikerház
Eladó ikerház

Üröm

220 M Ft
4 szoba
130 m2
Eladó ikerház
Eladó ikerház

Veresegyház

145.8 M Ft
1 + 4 szoba
152 m2
Eladó ikerház
Eladó ikerház

Veresegyház

120 M Ft
4 szoba
109 m2
Eladó ikerház
Eladó ikerház

Veresegyház

99.7 M Ft
6 szoba
210 m2
Eladó ikerház
Eladó ikerház

Veresegyház

110 M Ft
4 szoba
109 m2
Eladó ikerház
Eladó ikerház

Pécel

149.9 M Ft
5 szoba
306 m2
Eladó ikerház
Eladó ikerház

Pilisjászfalu

70.563 M Ft
4 szoba
61 m2
Eladó ikerház
Eladó ikerház

Vác

175.356 M Ft
5 szoba
165 m2
Eladó ikerház
Eladó ikerház

Dunakeszi

149 M Ft
1 + 4 szoba
127 m2
Eladó ikerház
Eladó ikerház

Veresegyház

110 M Ft
4 szoba
97 m2
Eladó ikerház
Eladó ikerház

Veresegyház

99.7 M Ft
6 szoba
210 m2
Eladó ikerház
Eladó ikerház

Vác

96.5 M Ft
4 + 1 szoba
129 m2
Eladó ikerház
Eladó ikerház

Vác

94.5 M Ft
4 + 1 szoba
126 m2
Eladó ikerház
Eladó ikerház

Veresegyház

99 M Ft
5 szoba
102 m2
Eladó ikerház
Eladó ikerház

Veresegyház

99.7 M Ft
6 szoba
210 m2
Eladó ikerház
Eladó ikerház

Mogyoród

129 M Ft
5 szoba
123 m2
Eladó ikerház
Eladó ikerház

Érd, Érdligeten található utca

64.9 M Ft
4 szoba
112 m2

Falusi CSOK ingatlanok

Eladó családi ház
Eladó családi ház

Tab

14.9 M Ft
3 szoba
110 m2
Eladó családi ház
Eladó családi ház

Szalánta

149.9 M Ft
10 szoba
301 m2
Eladó családi ház
Eladó családi ház

Devecser

42.9 M Ft
3 szoba
100 m2
Eladó családi ház
Eladó családi ház

Ágasegyháza

79 M Ft
5 szoba
174 m2
Eladó családi ház
Eladó családi ház

Herend

119.6 M Ft
5 szoba
108 m2
Eladó családi ház
Eladó családi ház

Szabadbattyán

163.99 M Ft
5 szoba
255 m2
Eladó családi ház
Eladó családi ház

Gönyű

111.951 M Ft
4 szoba
105 m2
Eladó családi ház
Eladó családi ház

Biharkeresztes

51 M Ft
6 szoba
250 m2