Eladó ikerház
Vácrátót

+ 1 kép 1/4
82 500 000 Ft82.5 M Ft 1 044 304 Ft/m2
4 szoba
79 m2

Részletes adatok

Telekméret: 750 m2
Fűtés: Egyéb
Energetikai besorolás: Nem adta meg a hirdető

Az OTP Bank lakáshitel ajánlataFizetett hirdetés

+36 20 504
Major Krisztina
Családi Ingatlan

Érdekel az OTP Bank kedvezményes lakáshitel ajánlata? *

* A kérdésre „Igen” válasz bejelölése esetén, az „Üzenet küldése” gombra kattintva kijelentem, hogy az OTP Bank Nyrt. Adatkezelési tájékoztatójának tartalmát megismertem és tudomásul vettem.

Eladó ikerház leírása

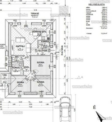
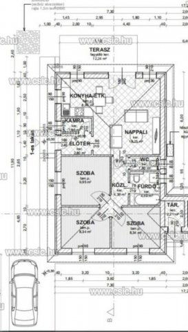
EGYSZINTES TÁRÓLÓKNÁL ÉRINTKEZŐ HÁZ VÁCRÁTÓTON!

BELSŐ ELRENDEZÉSE MÉG IGÉNY SZERINT VÁLTOZTATHATÓ!

HŐSZIVATTYÚS FŰTÉS!

3%-os START PLUSZ - CS.O.K+

Vácrátóton a Szent István lakóparkban épülő, FÖLDSZINTES nappali + 3 hálószobás, CSAK TÁRÓLÓKNÁL ÉRINTKEZŐ házat kínálunk eladásra 750 nm TELKEN!!

Az ikerház fél alapterülete 79 nm, 1+3szobás, kert és teraszkapcsolatos 28 nm amerikai konyhás nappalival, három világos hálószobával, egy kádas fürdőszobával, külön WC- vel, előszobával, közlekedővel egy 2,21 nm tárólóval és egy 12.24 nm terasszal rendelkezik

- Modern külső megjelenés
- Magas műszaki tartalom épül 30-as téglából +
- 12 dryvit szigeteléssel.
- HŐSZIVATTYÚS, fűtés padlófűtéssel.
- Napelem – előkészítés (igény szerint )
- Műanyag gondozásmentes 3 rétegű nyílászárók
- Biztonsági bejárati ajtó
- Riasztó előkészítés
- Gépkocsibeálló
- Kaputelefon
- Padlásfeljáró

Várható átadás: 2026 nyara

Ha ingatlan vásárláshoz még el kell adnia ingatlanát, CSALÁDI INGATLANNÁL kedvezményesen vállaljuk annak értékesítését!

Ha vásárláshoz hitelre van szüksége, hitel ügyintézőnk INGYENESEN segít Önnek megtalálni a piacon fellelhető legkedvezőbb hitelkonstrukciót.

Várom megtisztelő hívását a hét minden napján!

Hirdetés feltöltve: 2025. 10. 21. Utoljára módosítva: 2025. 10. 21.

4 szobás ikerházak ára Vácrátóton

Ebből az összehasonlításból megtudhatod, hogyan viszonyul a lakás ára a környékbeli ikerházak átlagos árához. Ez nem azt jelenti, hogy ennyivel olcsóbb vagy drágább, mint amennyit a lakás ér, hanem hogy ennyivel tér el a környékbeli átlagtól.

Ennek a m² ára
Vácrátót m² ár
1044 e Ft
1026 e Ft -2%
Ennek az ára
Vácrátót átlagár
82.5 M Ft m Ft
90.5 m Ft 9%

Az ingatlan elhelyezkedése

Cím: Vácrátót

Eladó ikerházak a környékről

Eladó ikerház
Eladó ikerház

Vác

175.356 M Ft
5 szoba
165 m2
Eladó ikerház
Eladó ikerház

Szentendre

179 M Ft
5 + 1 szoba
147 m2
Eladó ikerház
Eladó ikerház

Dunakeszi

149 M Ft
1 + 4 szoba
127 m2
Eladó ikerház
Eladó ikerház

Vácrátót

99.9 M Ft
5 szoba
110 m2
Eladó ikerház
Eladó ikerház

Vácrátót

99.9 M Ft
3 + 2 szoba
112 m2
Eladó ikerház
Eladó ikerház

Mogyoród, Fóti út

188 M Ft
6 szoba
182 m2
Eladó ikerház
Eladó ikerház

Vácrátót

89.9 M Ft
4 szoba
88 m2
Eladó ikerház
Eladó ikerház

Vácrátót

79.9 M Ft
5 szoba
112 m2
Eladó ikerház
Eladó ikerház

Vácrátót

96 M Ft
4 szoba
77 m2
Eladó ikerház
Eladó ikerház

Veresegyház

145 M Ft
4 szoba
120 m2
Eladó ikerház
Eladó ikerház

Solymár

150 M Ft
4 + 2 szoba
252 m2
Eladó ikerház
Eladó ikerház

Vácrátót

79.9 M Ft
4 szoba
88 m2
Eladó ikerház
Eladó ikerház

Vác

96.5 M Ft
4 + 1 szoba
129 m2
Eladó ikerház
Eladó ikerház

Vácrátót

94.9 M Ft
4 szoba
108 m2
Eladó ikerház
Eladó ikerház

Vácrátót

85.5 M Ft
4 szoba
90 m2
Eladó ikerház
Eladó ikerház

Érd, Érdliget - Kutyavár, Érdligeten található utca

64.9 M Ft
4 szoba
112 m2
Eladó ikerház
Eladó ikerház

Vácrátót

94.9 M Ft
5 szoba
109 m2
Eladó ikerház
Eladó ikerház

Kiskunlacháza

89.1 M Ft
4 szoba
99 m2
Eladó ikerház
Eladó ikerház

Vácrátót

74.9 M Ft
5 szoba
107 m2
Eladó ikerház
Eladó ikerház

Pomáz

129.5 M Ft
4 szoba
100 m2
Eladó ikerház
Eladó ikerház

Pusztazámor

55 M Ft
10 szoba
470 m2
Eladó ikerház
Eladó ikerház

Vácrátót

74.5 M Ft
4 szoba
85 m2
Eladó ikerház
Eladó ikerház

Vác

149.9 M Ft
5 szoba
202 m2
Eladó ikerház
Eladó ikerház

Rád

100 M Ft
4 szoba
152 m2

Falusi CSOK ingatlanok

Eladó családi ház
Eladó családi ház

Törtel

32 M Ft
2 szoba
67 m2
Eladó családi ház
Eladó családi ház

Taktakenéz, Temető utca 15

4.6 M Ft
3 szoba
68 m2
Eladó családi ház
Eladó családi ház

Perkáta

62.4 M Ft
5 szoba
120 m2
Eladó családi ház
Eladó családi ház

Makád

32.8 M Ft
4 szoba
141 m2
Eladó családi ház
Eladó családi ház

Tüskevár

19.9 M Ft
4 szoba
95 m2
Eladó téglalakás
Eladó téglalakás

Felsőszentiván, Jókai Mór u 9 fszt 2

17.56 M Ft
1 + 1 szoba
90 m2
Eladó családi ház
Eladó családi ház

Pilisszentkereszt

139 M Ft
5 szoba
220 m2
Eladó családi ház
Eladó családi ház

Bezenye

84.9 M Ft
4 + 1 szoba
145 m2