Pesti Házak

Eladó ikerház
Szigetszentmiklós

+ 10 kép 1/13
79 900 000 Ft79.9 M Ft 1 024 359 Ft/m2
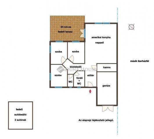
4 szoba
78 m2
építés éve:2008

Részletes adatok

Állapot: Felújított
Telekméret: 500 m2
Fűtés: Gázkazán
Energetikai besorolás: Nem adta meg a hirdető

Az OTP Bank lakáshitel ajánlataFizetett hirdetés

+36 1 690
Korsósné Wágner Ibolya
referens

Érdekel az OTP Bank kedvezményes lakáshitel ajánlata? *

* A kérdésre „Igen” válasz bejelölése esetén, az „Üzenet küldése” gombra kattintva kijelentem, hogy az OTP Bank Nyrt. Adatkezelési tájékoztatójának tartalmát megismertem és tudomásul vettem.

Eladó ikerház leírása

Szigetszentmiklóson, 2008-ban téglából épült szigetelt, nappali +3 hálószobás, 78 m2-es, ikerház, 500 m2-es telekkel, csendes zsákutcában sürgősen eladó! - 30 cm vastag téglafalazat- 10 cm szigetelés- műanyag nyílászárók, redőny, szúnyogháló- klíma- fűtött garázs- gázcirkó fűtés- összközműves- fedett teraszA közelben, buszmegálló, bevásárlási lehetőség, óvoda, iskola minden elérhető, amire a hétköznapokban szüksége lehet, éttermek, csónakbérlés és kirándulási lehetőség várja az érdeklődőket, közel a városhoz, de mégis modern, vidékies hangulatban.Ez az, amit keresett? Ne habozzon, a hét bármely napján elérhető vagyok telefonon és e-mailen is! Jöjjön, nézzük meg együtt és szeressen bele!Amennyiben ajánlatom megfelelne az elvárásainak, de nem rendelkezik a kiválasztott ingatlan vételárával, a Credipass hitelügyintéző munkatársai díjmentesen biztosítják a legkedvezőbb, személyre szabott hitelkonstrukciót a kedves vevők számára.

Hirdetés feltöltve: 2025. 11. 18. Utoljára módosítva: 2025. 11. 18.

4 szobás ikerházak ára Szigetszentmiklóson

Ebből az összehasonlításból megtudhatod, hogyan viszonyul a lakás ára a környékbeli ikerházak átlagos árához. Ez nem azt jelenti, hogy ennyivel olcsóbb vagy drágább, mint amennyit a lakás ér, hanem hogy ennyivel tér el a környékbeli átlagtól.

Ennek a m² ára
Szigetszentmiklós m² ár
1024 e Ft
999 e Ft -3%
Ennek az ára
Szigetszentmiklós átlagár
79.9 M Ft m Ft
95.6 m Ft 16%

Az ingatlan elhelyezkedése

Cím: Szigetszentmiklós

Eladó ikerházak a környékről

Eladó ikerház
Eladó ikerház

Szentendre, Szentendre

398 M Ft
5 szoba
267 m2
Eladó ikerház
Eladó ikerház

Pomáz

129.5 M Ft
4 szoba
100 m2
Eladó ikerház
Eladó ikerház

Tahitótfalu

88.9 M Ft
4 szoba
110 m2
Eladó ikerház
Eladó ikerház

Szigetszentmiklós

99.9 M Ft
4 szoba
91 m2
Eladó ikerház
Eladó ikerház

Üröm

249.9 M Ft
4 szoba
154 m2
Eladó ikerház
Eladó ikerház

Vác

96.5 M Ft
4 + 1 szoba
129 m2
Eladó ikerház
Eladó ikerház

Szigetszentmiklós

99.9 M Ft
4 szoba
91 m2
Eladó ikerház
Eladó ikerház

Dunakeszi

149 M Ft
1 + 4 szoba
127 m2
Eladó ikerház
Eladó ikerház

Szigetszentmiklós

70 M Ft
2 szoba
70 m2
Eladó ikerház
Eladó ikerház

Szigetszentmiklós

147.75 M Ft
5 + 1 szoba
142 m2
Eladó ikerház
Eladó ikerház

Pusztazámor

55 M Ft
10 szoba
470 m2
Eladó ikerház
Eladó ikerház

Szigetszentmiklós

104.9 M Ft
5 szoba
111 m2
Eladó ikerház
Eladó ikerház

Szigetszentmiklós

78.5 M Ft
4 szoba
105 m2
Eladó ikerház
Eladó ikerház

Szigetszentmiklós

104.9 M Ft
5 szoba
111 m2
Eladó ikerház
Eladó ikerház

Szigetszentmiklós

99 M Ft
4 szoba
90 m2
Eladó ikerház
Eladó ikerház

Szigetszentmiklós

106.9 M Ft
5 szoba
100 m2
Eladó ikerház
Eladó ikerház

Pécel

149.9 M Ft
5 szoba
306 m2
Eladó ikerház
Eladó ikerház

Rád

100 M Ft
4 szoba
152 m2
Eladó ikerház
Eladó ikerház

Érd, Érdligeten található utca

64.9 M Ft
4 szoba
112 m2
Eladó ikerház
Eladó ikerház

Pilisjászfalu

70.563 M Ft
4 szoba
61 m2
Eladó ikerház
Eladó ikerház

Szigetszentmiklós

104.9 M Ft
5 szoba
111 m2
Eladó ikerház
Eladó ikerház

Solymár

150 M Ft
4 + 2 szoba
252 m2
Eladó ikerház
Eladó ikerház

Szigetszentmiklós

104.9 M Ft
4 + 1 szoba
121 m2
Eladó ikerház
Eladó ikerház

Szigetszentmiklós

104.9 M Ft
5 szoba
111 m2

Falusi CSOK ingatlanok

Eladó családi ház
Eladó családi ház

Ceglédbercel

64.9 M Ft
3 szoba
87 m2
Eladó panellakás
Eladó panellakás

Pétfürdő

28.3 M Ft
2 szoba
53 m2
Eladó családi ház
Eladó családi ház

Táborfalva

79 M Ft
4 szoba
92 m2
Eladó családi ház
Eladó családi ház

Magyarpolány

90 M Ft
2 szoba
70 m2
Eladó ikerház
Eladó ikerház

Seregélyes

39.9 M Ft
4 szoba
150 m2
Eladó családi ház
Eladó családi ház

Jászkarajenő

19.9 M Ft
3 szoba
81 m2
Eladó családi ház
Eladó családi ház

Alsóbogát

15 M Ft
2 + 1 szoba
71 m2
Eladó családi ház
Eladó családi ház

Kisnána

27.9 M Ft
4 szoba
180 m2