Eladó ikerház
Szigetszentmiklós
Részletes adatok
Az OTP Bank lakáshitel ajánlataFizetett hirdetés
Induló törlesztőrészlet
101 262 Ft /hóTörlesztőrészlet a 13. hónaptól
129 106 Ft /hóInduló törlesztőrészlet
135 016 Ft /hóTörlesztőrészlet a 13. hónaptól
172 142 Ft /hóA tájékoztatás nem teljes körű és nem minősül ajánlattételnek. Az OTP Évnyerő Lakáshitelei 1 éves türelmi idős kölcsönök, amellyel az első 12 hónapban alacsonyabb a havi törlesztőrészlet. A tőke törlesztését a 13. hónaptól kell megkezdeni.
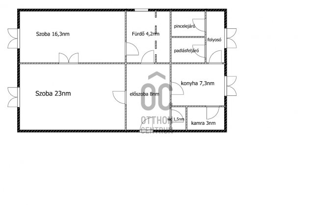
Eladó ikerház leírása
Szigetszentmiklóson Kis ház, nagy telekkel eladó!
Szigetszentmiklós-Lakihegyen eladó, egy jó adottságokkal rendelkező tágas, világos felújítandó állapotú, ikerház fél. Az ingatlan 2649 m2 összközműves telken található.
Fűtése gáz, konvektor hőleadókkal. A melegvizet villanybojler biztosítja.
A telek LK14 övezeti besorolású, méretéből adódóan megosztható, így több ház építésére is van lehetőség.( Konkrét Önkormányzati állásfoglalással rendelkezünk.)
Lokáció: Központhoz közeli csendes mellékutca. A közelben minden megtalálható,ami a mindennapi élet lebonyolításához szükséges.
Az ingatlan per-teher mentes, rövid határidővel birtokba vehető.
Amennyiben felkeltettem érdeklődését, kérdése van vagy megtekintené, úgy várom megtisztelő hívását.
Az ár irányár!
Hirdetés feltöltve: 2025. 05. 21. Utoljára módosítva: 2025. 09. 17.
2 szobás ikerházak ára Szigetszentmiklóson
Ebből az összehasonlításból megtudhatod, hogyan viszonyul a lakás ára a környékbeli ikerházak átlagos árához. Ez nem azt jelenti, hogy ennyivel olcsóbb vagy drágább, mint amennyit a lakás ér, hanem hogy ennyivel tér el a környékbeli átlagtól.
Az ingatlan elhelyezkedése
Cím: Szigetszentmiklós
Eladó ikerházak a környékről
