City Pearl

Eladó ikerház
Szigetszentmiklós

+ 10 kép 1/13
79 900 000 Ft79.9 M Ft 1 024 359 Ft/m2
4 szoba
78 m2
építés éve:2008

Részletes adatok

Állapot: Felújított
Telekméret: 500 m2
Fűtés: Gázkazán
Energetikai besorolás: Nem adta meg a hirdető

Az OTP Bank lakáshitel ajánlataFizetett hirdetés

3629998448
Szabóné Kristóf Beáta
AktiválLak 2023 Kft

Érdekel az OTP Bank kedvezményes lakáshitel ajánlata? *

* A kérdésre „Igen” válasz bejelölése esetén, az „Üzenet küldése” gombra kattintva kijelentem, hogy az OTP Bank Nyrt. Adatkezelési tájékoztatójának tartalmát megismertem és tudomásul vettem.

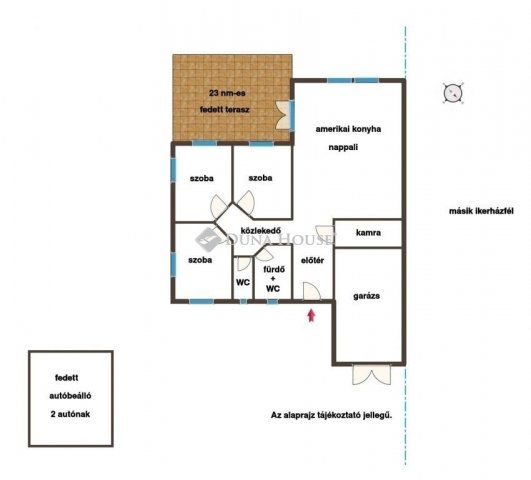
Eladó ikerház leírása

Szigetszentmiklóson, 2008-ban téglából épült szigetelt, nappali +3 hálószobás, 78 m2-es, ikerház, 500 m2-es telekkel, csendes zsákutcában sürgősen eladó! - 30 cm vastag téglafalazat- 10 cm szigetelés- műanyag nyílászárók, redőny, szúnyogháló- klíma- fűtött garázs- gázcirkó fűtés- összközműves- fedett teraszA közelben, buszmegálló, bevásárlási lehetőség, óvoda, iskola minden elérhető, amire a hétköznapokban szüksége lehet, éttermek, csónakbérlés és kirándulási lehetőség várja az érdeklődőket, közel a városhoz, de mégis modern, vidékies hangulatban.Ez az, amit keresett? Ne habozzon, a hét bármely napján elérhető vagyok telefonon és e-mailen is! Jöjjön, nézzük meg együtt és szeressen bele!Amennyiben ajánlatom megfelelne az elvárásainak, de nem rendelkezik a kiválasztott ingatlan vételárával, a Credipass hitelügyintéző munkatársai díjmentesen biztosítják a legkedvezőbb, személyre szabott hitelkonstrukciót a kedves vevők számára.

Hirdetés feltöltve: 2025. 11. 16.

4 szobás ikerházak ára Szigetszentmiklóson

Ebből az összehasonlításból megtudhatod, hogyan viszonyul a lakás ára a környékbeli ikerházak átlagos árához. Ez nem azt jelenti, hogy ennyivel olcsóbb vagy drágább, mint amennyit a lakás ér, hanem hogy ennyivel tér el a környékbeli átlagtól.

Ennek a m² ára
Szigetszentmiklós m² ár
1024 e Ft
999 e Ft -3%
Ennek az ára
Szigetszentmiklós átlagár
79.9 M Ft m Ft
95.6 m Ft 16%

Az ingatlan elhelyezkedése

Cím: Szigetszentmiklós

Eladó ikerházak a környékről

Eladó ikerház
Eladó ikerház

Vác

94.5 M Ft
4 + 1 szoba
126 m2
Eladó ikerház
Eladó ikerház

Szigetszentmiklós

104.9 M Ft
5 szoba
111 m2
Eladó ikerház
Eladó ikerház

Szigetszentmiklós

104.9 M Ft
4 + 1 szoba
121 m2
Eladó ikerház
Eladó ikerház

Vác

175.356 M Ft
5 szoba
165 m2
Eladó ikerház
Eladó ikerház

Szigetszentmiklós

97.99 M Ft
4 szoba
120 m2
Eladó ikerház
Eladó ikerház

Szentendre, Szentendre

398 M Ft
5 szoba
267 m2
Eladó ikerház
Eladó ikerház

Szigetszentmiklós

104.9 M Ft
5 szoba
111 m2
Eladó ikerház
Eladó ikerház

Szigetszentmiklós

86.45 M Ft
5 szoba
93 m2
Eladó ikerház
Eladó ikerház

Vác

96.5 M Ft
4 + 1 szoba
129 m2
Eladó ikerház
Eladó ikerház

Solymár

150 M Ft
4 + 2 szoba
252 m2
Eladó ikerház
Eladó ikerház

Szigetszentmiklós

106.9 M Ft
5 szoba
100 m2
Eladó ikerház
Eladó ikerház

Dunakeszi

149 M Ft
1 + 4 szoba
127 m2
Eladó ikerház
Eladó ikerház

Tahitótfalu

88.9 M Ft
4 szoba
110 m2
Eladó ikerház
Eladó ikerház

Üröm

249.9 M Ft
4 szoba
154 m2
Eladó ikerház
Eladó ikerház

Szigetszentmiklós

104.9 M Ft
5 szoba
111 m2
Eladó ikerház
Eladó ikerház

Rád

100 M Ft
4 szoba
152 m2
Eladó ikerház
Eladó ikerház

Szigetszentmiklós

104.9 M Ft
4 + 1 szoba
121 m2
Eladó ikerház
Eladó ikerház

Diósd

213.46 M Ft
5 szoba
186 m2
Eladó ikerház
Eladó ikerház

Szigetszentmiklós

147.75 M Ft
5 + 1 szoba
142 m2
Eladó ikerház
Eladó ikerház

Pécel, Pécel - kertváros

127 M Ft
4 szoba
125 m2
Eladó ikerház
Eladó ikerház

Diósd

206.25 M Ft
5 szoba
184 m2
Eladó ikerház
Eladó ikerház

Szigetszentmiklós

99.9 M Ft
4 szoba
91 m2
Eladó ikerház
Eladó ikerház

Szigetszentmiklós

99.9 M Ft
4 szoba
91 m2
Eladó ikerház
Eladó ikerház

Szigetszentmiklós

78.5 M Ft
4 szoba
105 m2

Falusi CSOK ingatlanok

Eladó családi ház
Eladó családi ház

Villány, Baross Gábor

130 M Ft
6 szoba
370 m2
Eladó családi ház
Eladó családi ház

Devecser

42.9 M Ft
3 szoba
100 m2
Eladó családi ház
Eladó családi ház

Tiszaalpár

29 M Ft
4 szoba
132 m2
Eladó családi ház
Eladó családi ház

Eplény

99.9 M Ft
5 szoba
163 m2
Eladó családi ház
Eladó családi ház

Nyékládháza

29.9 M Ft
2 + 1 szoba
111 m2
Eladó ikerház
Eladó ikerház

Seregélyes

39.9 M Ft
4 szoba
150 m2
Eladó családi ház
Eladó családi ház

Seregélyes

75 M Ft
6 szoba
160 m2
Eladó téglalakás
Eladó téglalakás

Balatonszemes

91.5 M Ft
2 szoba
60 m2