City Pearl

Eladó ikerház
Pécel

+ 9 kép 1/12
132 900 000 Ft132.9 M Ft 664 500 Ft/m2
6 szoba
200 m2
építés éve:2023

Részletes adatok

Állapot: Újszerű
Telekméret: 352 m2
Fűtés: Gázkazán
Energetikai besorolás: Nem adta meg a hirdető

Az OTP Bank lakáshitel ajánlataFizetett hirdetés

+36 70 397
Hajnalné Szakács Eszter
referens

Érdekel az OTP Bank kedvezményes lakáshitel ajánlata? *

* A kérdésre „Igen” válasz bejelölése esetén, az „Üzenet küldése” gombra kattintva kijelentem, hogy az OTP Bank Nyrt. Adatkezelési tájékoztatójának tartalmát megismertem és tudomásul vettem.

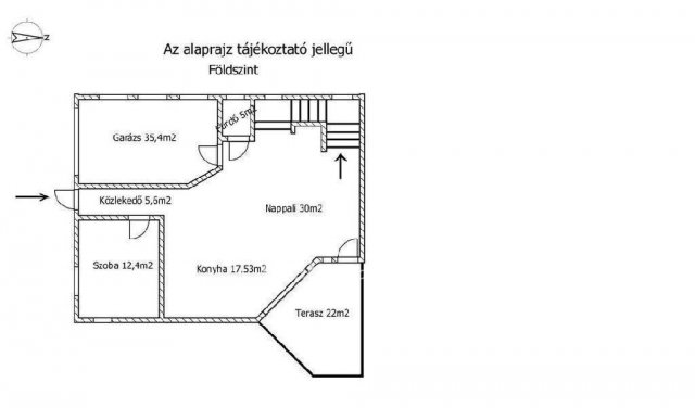
Eladó ikerház leírása

Prémium minőségű kivitelezés!
Pécelen - annak is Budapesthez legközelebb eső felén - eladó egy 2023-ban elkészült ikerházfél. 352m2-es telken áll a ház. 4 háló, 2 nappali, duplakomfort biztosítja a tulajdonosok kényelmét.
Minden szobához panorámás terasz tartozik az emeleten.
Teraszok, 15,35m2, 8m2, és 22 m2.
A telek körbe van kerítve. az ikerszomszédtól még nincs lekerítve. Rendezett kert, nagy élhető teraszok, és gyönyörű panorámás fedett teraszok jellemzik az ingatlant.

Műszaki adatok: beton alapon 36cm-es tégla falak.
Tetőn 30 cm, homlokzaton 15 cm hungarocell szigetelés van.
Tetőn beton cserép található.
Tetőszigetelés , párazáró fólia, 30 cm kőzetgyapot, hőtükrös reflex fólia van , illetve beton födém.
Érdemes megtekinteni!
A kínálatunkból választott ingatlan finanszírozásához kedvezményes hitel- és lízingkonstrukciókat. Az adásvételi szerződés megkötéséhez igény szerint megbízható ügyvédi közreműködést biztosítunk, és segítséget nyújtunk az adásvételhez kapcsolódó ügyek intézéséhez. Bővebb tájékoztatásért hívjon!
M299558

Hirdetés feltöltve: 2025. 05. 25. Utoljára módosítva: 2026. 01. 13.

Az ingatlan elhelyezkedése

Cím: Pécel

Eladó ikerházak a környékről

Eladó ikerház
Eladó ikerház

Pécel

89.9 M Ft
3 + 1 szoba
83 m2
Eladó ikerház
Eladó ikerház

Pécel

119.9 M Ft
6 szoba
140 m2
Eladó ikerház
Eladó ikerház

Vácrátót

94.9 M Ft
2 + 3 szoba
108 m2
Eladó ikerház
Eladó ikerház

Pécel

349 M Ft
11 szoba
430 m2
Eladó ikerház
Eladó ikerház

Kiskunlacháza

41 M Ft
2 szoba
39 m2
Eladó ikerház
Eladó ikerház

Mogyoród

135 M Ft
5 szoba
137 m2
Eladó ikerház
Eladó ikerház

Pécel

149.9 M Ft
5 szoba
306 m2
Eladó ikerház
Eladó ikerház

Vác

99.7 M Ft
4 + 1 szoba
129 m2
Eladó ikerház
Eladó ikerház

Diósd

206.25 M Ft
5 szoba
184 m2
Eladó ikerház
Eladó ikerház

Pécel

349 M Ft
11 szoba
430 m2
Eladó ikerház
Eladó ikerház

Pécel

99.9 M Ft
4 szoba
101 m2
Eladó ikerház
Eladó ikerház

Pusztazámor

55 M Ft
10 szoba
470 m2
Eladó ikerház
Eladó ikerház

Vác

149.9 M Ft
5 szoba
202 m2
Eladó ikerház
Eladó ikerház

Veresegyház

145 M Ft
4 szoba
120 m2
Eladó ikerház
Eladó ikerház

Dunakeszi

149 M Ft
1 + 4 szoba
127 m2
Eladó ikerház
Eladó ikerház

Szentendre

179 M Ft
5 + 1 szoba
147 m2
Eladó ikerház
Eladó ikerház

Pécel

153 M Ft
5 szoba
217 m2
Eladó ikerház
Eladó ikerház

Pécel, Pécel - kertváros

127 M Ft
4 szoba
125 m2
Eladó ikerház
Eladó ikerház

Pécel

114.9 M Ft
4 szoba
96 m2
Eladó ikerház
Eladó ikerház

Szentendre

359 M Ft
5 + 1 szoba
289 m2
Eladó ikerház
Eladó ikerház

Mogyoród

129 M Ft
5 szoba
123 m2
Eladó ikerház
Eladó ikerház

Pécel

98 M Ft
3 + 1 szoba
101 m2
Eladó ikerház
Eladó ikerház

Szentendre

718 M Ft
10 + 2 szoba
578 m2
Eladó ikerház
Eladó ikerház

Pilisjászfalu

70.563 M Ft
4 szoba
61 m2

Falusi CSOK ingatlanok

Eladó családi ház
Eladó családi ház

Eplény

99.9 M Ft
6 szoba
163 m2
Eladó családi ház
Eladó családi ház

Pécsvárad

79.9 M Ft
4 szoba
100 m2
Eladó családi ház
Eladó családi ház

Balatonszárszó

178 M Ft
6 szoba
260 m2
Eladó családi ház
Eladó családi ház

Újkígyós

11.9 M Ft
3 szoba
88 m2
Eladó családi ház
Eladó családi ház

Máriahalom

29.9 M Ft
3 szoba
83 m2
Eladó családi ház
Eladó családi ház

Söpte

94.9 M Ft
4 szoba
94 m2
Eladó családi ház
Eladó családi ház

Táborfalva

49 M Ft
3 szoba
77 m2
Eladó családi ház
Eladó családi ház

Zengővárkony

28 M Ft
3 szoba
87 m2