Stay Family Park

Eladó ikerház
Őrbottyán

77 850 000 Ft77.85 M Ft 837 097 Ft/m2
4 szoba
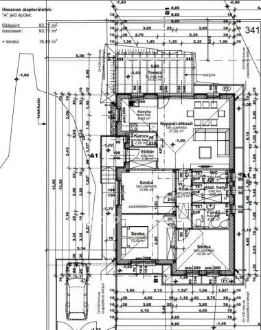
93 m2
építés éve:2026

Részletes adatok

Telekméret: 367 m2
Fűtés: Geotermikus
Parkolás: Garázs
Energetikai besorolás: Nem adta meg a hirdető

Az OTP Bank lakáshitel ajánlataFizetett hirdetés

+36 20 220
Szabó Sándor
Budapest XIII. kerület Pannónia utca 25 - OTP Ingatlanpont Iroda

Érdekel az OTP Bank kedvezményes lakáshitel ajánlata? *

* A kérdésre „Igen” válasz bejelölése esetén, az „Üzenet küldése” gombra kattintva kijelentem, hogy az OTP Bank Nyrt. Adatkezelési tájékoztatójának tartalmát megismertem és tudomásul vettem.

Eladó ikerház leírása

MEGÚJULÓ ENERGIÁVAL ÉPŰLŐ INGATLANOK ŐRBOTTYÁNBAN!

Őrbottyán központi részén megvételre kínálok újonnan épülő ingatlanokat!

A házak magas műszaki tartalommal épülnek.

- 3 rétegű nyílászárók
- Bramac tetőcserép
- 12 cm szigetelés
- H-tarifás óra
- napelem előkészítés
- riasztórendszer kiállás
- hőszivattyús fűtés, padlófűtés
Az ingatlanok kulcsrakész állapotban kerülnek átadásra, az építés jelenlegi fázisában lehetőség van a burkolatok, szaniterek, beltéri, illetve bejárati ajtó kiválasztására, a műszaki tartalomban megjelölt összegig. Az udvaron belül térburkolattal ellátott parkolóhely kerül kialakításra.
Egyes házaknál teljes mértékben a vevő igényeire szabható az ingatlan, akár a tervek is módosíthatóak!
Az ingatlan kiváló infrastruktúrával rendelkezik mindössze 30-40 percre helyezkedik el a belvárostól. A környéken megtalálható, óvoda iskola, orvosi rendelő, gyógyszertár, bevásárlási lehetőség.

Ha további kérdése lenne vagy szeretné megtekinteni az ingatlant hívjon bizalommal akár hétvégén is!

Hirdetés feltöltve: 2025. 10. 08. Utoljára módosítva: 2025. 11. 02.

4 szobás ikerházak ára Őrbottyánban

Ebből az összehasonlításból megtudhatod, hogyan viszonyul a lakás ára a környékbeli ikerházak átlagos árához. Ez nem azt jelenti, hogy ennyivel olcsóbb vagy drágább, mint amennyit a lakás ér, hanem hogy ennyivel tér el a környékbeli átlagtól.

Ennek a m² ára
Őrbottyán m² ár
837 e Ft
959 e Ft 13%
Ennek az ára
Őrbottyán átlagár
77.85 M Ft m Ft
85.8 m Ft 9%

Az ingatlan elhelyezkedése

Cím: Őrbottyán

Eladó ikerházak a környékről

Eladó ikerház
Eladó ikerház

Szentendre, Szentendre

398 M Ft
5 szoba
267 m2
Eladó ikerház
Eladó ikerház

Pomáz

129.5 M Ft
4 szoba
100 m2
Eladó ikerház
Eladó ikerház

Őrbottyán

84.9 M Ft
5 szoba
117 m2
Eladó ikerház
Eladó ikerház

Őrbottyán

90.75 M Ft
4 szoba
82 m2
Eladó ikerház
Eladó ikerház

Üröm

249.9 M Ft
4 szoba
154 m2
Eladó ikerház
Eladó ikerház

Szentendre

359 M Ft
5 szoba
289 m2
Eladó ikerház
Eladó ikerház

Solymár

150 M Ft
4 + 2 szoba
252 m2
Eladó ikerház
Eladó ikerház

Pécel, Pécel - kertváros

127 M Ft
4 szoba
125 m2
Eladó ikerház
Eladó ikerház

Őrbottyán

90.75 M Ft
4 szoba
93 m2
Eladó ikerház
Eladó ikerház

Érd, Érdligeten található utca

64.9 M Ft
4 szoba
112 m2
Eladó ikerház
Eladó ikerház

Őrbottyán

89.2 M Ft
3 szoba
117 m2
Eladó ikerház
Eladó ikerház

Őrbottyán, Kálvária utca

88.95 M Ft
4 szoba
90 m2
Eladó ikerház
Eladó ikerház

Őrbottyán

85.5 M Ft
4 szoba
99 m2
Eladó ikerház
Eladó ikerház

Mogyoród, Fóti út

188 M Ft
6 szoba
182 m2
Eladó ikerház
Eladó ikerház

Őrbottyán, Kálvária utca

90.75 M Ft
4 szoba
93 m2
Eladó ikerház
Eladó ikerház

Dunakeszi

149 M Ft
1 + 4 szoba
127 m2
Eladó ikerház
Eladó ikerház

Őrbottyán

88.95 M Ft
4 szoba
93 m2
Eladó ikerház
Eladó ikerház

Vác

94.5 M Ft
4 + 1 szoba
126 m2
Eladó ikerház
Eladó ikerház

Őrbottyán

110 M Ft
5 szoba
113 m2
Eladó ikerház
Eladó ikerház

Őrbottyán

89.5 M Ft
4 szoba
93 m2
Eladó ikerház
Eladó ikerház

Őrbottyán

90.75 M Ft
4 szoba
81 m2
Eladó ikerház
Eladó ikerház

Vác

149.9 M Ft
5 szoba
202 m2
Eladó ikerház
Eladó ikerház

Őrbottyán

98 M Ft
5 szoba
120 m2
Eladó ikerház
Eladó ikerház

Diósd

206.25 M Ft
5 szoba
184 m2

Falusi CSOK ingatlanok

Eladó családi ház
Eladó családi ház

Nagyberény

24.9 M Ft
3 szoba
62 m2
Eladó családi ház
Eladó családi ház

Orgovány, Mátyás király utca

16 M Ft
2 szoba
60 m2
Eladó családi ház
Eladó családi ház

Nyáregyháza

67 M Ft
3 szoba
74 m2
Eladó családi ház
Eladó családi ház

Badacsonytomaj

199.8 M Ft
3 szoba
166 m2
Eladó családi ház
Eladó családi ház

Bágyogszovát

21.499 M Ft
2 szoba
67 m2
Eladó ikerház
Eladó ikerház

Seregélyes

39.9 M Ft
4 szoba
150 m2
Eladó családi ház
Eladó családi ház

Pannonhalma

76.4 M Ft
4 szoba
97 m2
Eladó családi ház
Eladó családi ház

Katymár

6.7 M Ft
4 szoba
136 m2