River Life

Eladó ikerház
Monor

+ 3 kép 1/6
80 000 000 Ft80 M Ft 1 052 632 Ft/m2
4 szoba
76 m²
építés éve:2026

Részletes adatok

Telekméret: 282 m2
Fűtés: Egyéb
Energetikai besorolás: Nem adta meg a hirdető

Az OTP Bank lakáshitel ajánlataFizetett hirdetés

3637999387
Kovács Kata
referens

Érdekel az OTP Bank kedvezményes lakáshitel ajánlata? *

* A kérdésre „Igen” válasz bejelölése esetén, az „Üzenet küldése” gombra kattintva kijelentem, hogy az OTP Bank Nyrt. Adatkezelési tájékoztatójának tartalmát megismertem és tudomásul vettem.

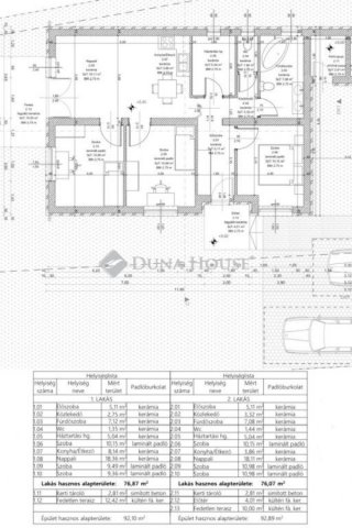
Eladó ikerház leírása

Újépítésű ikerházfél ( csak a tárolóknál érintkező) Monoron – 3 szoba + nappali, hőszivattyú, saját kert

Monor kedvelt, folyamatosan fejlődő részén eladó egy újépítésű, 76 m² nettó alapterületű ikerházfél, saját, kb. 300 m²-es kerttel és 10 m²-es terasszal.

Az ingatlan praktikus elosztású: 3 külön nyíló szoba, világos, teraszkapcsolatos nappali-konyha-étkező, fürdőszoba, külön WC, háztartási helyiség és kerti tároló biztosítja a kényelmes mindennapokat.

A műszaki tartalom modern és energiatakarékos:

Fischer hőszivattyús fűtés
padlófűtés
H tarifa
3 rétegű műanyag nyílászárók
kiváló hőszigetelés
elektromos nagykapu
igényes utcafronti kerítés

Az ár kulcsrakész állapotra vonatkozik.

Várható átadás: 2026. október

Az ingatlan önálló helyrajzi számmal rendelkezik, nem osztatlan közös tulajdon, így hosszú távon is biztonságos és értékálló választás.

Már 10% önerővel szerződhető.

Monor kiváló infrastruktúrával rendelkezik: iskola, óvoda, gimnázium, üzletek, piac, bankok, uszoda és minden fontos szolgáltatás könnyen elérhető, Budapest pedig gyorsan megközelíthető.

Ideális otthon családoknak és kiváló befektetési lehetőség egy dinamikusan fejlődő agglomerációs városban.

Hirdetés feltöltve: 2026. 04. 11. Utoljára módosítva: 2026. 05. 08.

4 szobás ikerházak ára Monoron

Ebből az összehasonlításból megtudhatod, hogyan viszonyul a lakás ára a környékbeli ikerházak átlagos árához. Ez nem azt jelenti, hogy ennyivel olcsóbb vagy drágább, mint amennyit a lakás ér, hanem hogy ennyivel tér el a környékbeli átlagtól.

Ennek a m² ára
Monor m² ár
1053 e Ft
1059 e Ft 1%
Ennek az ára
Monor átlagár
80 M Ft m Ft
89.3 m Ft 10%

Az ingatlan elhelyezkedése

Cím: Monor

Eladó ikerházak a környékről

Monor
Eladó ikerház

Monor

89.9 M Ft
4 szoba
80 m²
Kiskunlacháza
Eladó ikerház

Kiskunlacháza

44.9 M Ft
2 szoba
39 m²
Szentendre
Eladó ikerház

Szentendre

179 M Ft
5 + 1 szoba
147 m²
Monor
Eladó ikerház

Monor

89.9 M Ft
4 szoba
80 m²
Monor
Eladó ikerház

Monor

107 M Ft
5 szoba
107 m²
Vác
Eladó ikerház

Vác

149.9 M Ft
5 szoba
202 m²
Monor
Eladó ikerház

Monor

83.9 M Ft
4 szoba
81 m²
Monor
Eladó ikerház

Monor

89.9 M Ft
4 szoba
80 m²
Herceghalom
Eladó ikerház

Herceghalom

148 M Ft
5 szoba
134 m²
Herceghalom
Eladó ikerház

Herceghalom

99 M Ft
4 szoba
106 m²
Monor
Eladó ikerház

Monor

89.9 M Ft
3 szoba
80 m²
Pécel
Eladó ikerház

Pécel

149.9 M Ft
5 szoba
306 m²
Monor
Eladó ikerház

Monor

89.9 M Ft
4 szoba
80 m²
Diósd
Eladó ikerház

Diósd

213.46 M Ft
5 szoba
186 m²
Monor
Eladó ikerház

Monor

107 M Ft
5 szoba
107 m²
Monor
Eladó ikerház

Monor

89.9 M Ft
4 szoba
80 m²
Vácrátót
Eladó ikerház

Vácrátót

94.9 M Ft
2 + 3 szoba
108 m²
Monor
Eladó ikerház

Monor

83.9 M Ft
4 szoba
81 m²
Monor
Eladó ikerház

Monor

83.9 M Ft
4 szoba
81 m²
Monor
Eladó ikerház

Monor

81.8 M Ft
4 szoba
83 m²
Monor
Eladó ikerház

Monor

65.99 M Ft
3 szoba
50 m²
Mogyoród
Eladó ikerház

Mogyoród

135 M Ft
5 szoba
137 m²
Pomáz
Eladó ikerház

Pomáz

129.5 M Ft
4 szoba
100 m²
Mogyoród
Eladó ikerház

Mogyoród

129 M Ft
5 szoba
123 m²

Falusi CSOK ingatlanok

Kiszombor, Óbébai utca
Eladó családi ház

Kiszombor

32.9 M Ft
4 szoba
140 m²
Hegyeshalom, Margaréta utca 12
Eladó téglalakás

Hegyeshalom

32.89 M Ft
1 szoba
27 m²
Ádánd
Eladó családi ház

Ádánd

74.99 M Ft
5 szoba
150 m²
Galgahévíz
Eladó családi ház

Galgahévíz

43 M Ft
3 szoba
115 m²
Badacsonytördemic
Eladó családi ház

Badacsonytördemic

90 M Ft
3 szoba
130 m²
Bag
Eladó ikerház

Bag

93 M Ft
3 szoba
68 m²
Tokaj
Eladó családi ház

Tokaj

125 M Ft
9 szoba
230 m²
Kunadacs
Eladó családi ház

Kunadacs

80 M Ft
4 szoba
148 m²