Seven Pearl

Eladó ikerház
Monor

+ 3 kép 1/6
80 000 000 Ft80 M Ft 1 052 632 Ft/m2
4 szoba
76 m²
építés éve:2026

Részletes adatok

Telekméret: 282 m2
Fűtés: Egyéb
Energetikai besorolás: Nem adta meg a hirdető

Az OTP Bank lakáshitel ajánlataFizetett hirdetés

3629619083
Megyeriné Mikus Melinda
referens

Érdekel az OTP Bank kedvezményes lakáshitel ajánlata? *

* A kérdésre „Igen” válasz bejelölése esetén, az „Üzenet küldése” gombra kattintva kijelentem, hogy az OTP Bank Nyrt. Adatkezelési tájékoztatójának tartalmát megismertem és tudomásul vettem.

Eladó ikerház leírása

Monoron eladó, újépítésű, 3 szoba + nappalis, tároló kapcsolatos ikerházfél, hőszivattyús fűtéssel, kb 300 nm-es kerttel!

Belső nettó hasznos élhető tér 76 nm!

Várható átadás : 2026.10 hó

Önálló helyrajzi számmal fog rendelkezni, nem osztatlan közös tulajdon, társasház alapító lesz.

10 % önerővel szerződhető!

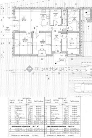
Helyiségeit tekintve nagyon jó elosztással rendelkezik, alábbiakban sorolom fel négyzetméterek megjelölésével:

- 3 önálló bejáratú szoba (10.15 nm, 10.98 nm, 10.98 nm)

- teraszkapcsolatos nappali + konyha és étkező (21.97 nm)

- előszoba (5.11 nm)

- közlekedő (3.32 nm)

- fürdőszoba (7.08 nm)

- wc (1.44 nm)

- háztartási helyiség (5 nm)

- kerti tároló, itt ér össze a két épület (2.81 nm)

- nyitott terasz (10 nm)

Műszaki leírás:

- Fischer hőszivattyús fűtés, padlófűtéssel

- burkolat meleg 8000 Ft / nm, hideg: 10 000 ft / nm

- 10 cm hőszigetelés grafitos

- 30 cm üveggyapot tető hőszigetelés

- vakolás: belső: alapvakolat + simítóvakolat

- lábazaton 8 cm XPS hőszigetelés

- nyílászárók: típus műanyag szerkezetek, fehér színben, 3 rtg.hőszig.üveggel

- festés: belsőben páraáteresztő falfestékkel, színezve igény szerint

- elektromos nagykapu

- utcafronton épített, igényes kerítés

- H tarifa

Az ár kulcsrakészen értendő!

A házakat önerőből építi! Az építő cég anyagilag biztos talpakon áll!

Monoron megtalálható:

Pékség, Cukrászda, Gyógyszertár, Posta, Vendéglő, Könyvtár, Zöldséges, Rossmann, Dm, Élelmiszer boltok, Okmányiroda, Bankok(Takarék,Otp, Budapest Bank), Piac, Bölcsöde, Óvoda, Iskola, Gimnázium,Uszoda, Elektromos autó töltő.

Monor a dél-kelet pesti agglomerációban, a dinamikusan fejlődő főváros és vonzáskörzete, a jó minőségű lakókörnyezetet egyre színvonalasabb közszolgáltatásokkal is biztosító, egyúttal a befektetők számára is vonzó település.

Monor olyan város, ahol jó élni, ahol jó befektetni.

Kiváló közlekedésének köszönhetően az ország bármely pontja könnyen elérhető Monorról.

Amennyiben felkeltettem érdeklődésed keress nyugodtan, és gyere, nézd meg velem az ingatlant!

Hitel ügyintézés, eladás és vétel teljes körű ügyintézése, ingyenes tanácsadás, értékbecslés, megbízható ügyvédi háttér biztosítása.
Érd.: Megyeriné Mikus Melinda tel.:06306652848 email:mikus.melinda@dh.hu

Referencia szám: HZ084376

Hirdetés feltöltve: 2026. 03. 21. Utoljára módosítva: 2026. 03. 23.

4 szobás ikerházak ára Monoron

Ebből az összehasonlításból megtudhatod, hogyan viszonyul a lakás ára a környékbeli ikerházak átlagos árához. Ez nem azt jelenti, hogy ennyivel olcsóbb vagy drágább, mint amennyit a lakás ér, hanem hogy ennyivel tér el a környékbeli átlagtól.

Ennek a m² ára
Monor m² ár
1053 e Ft
1041 e Ft -1%
Ennek az ára
Monor átlagár
80 M Ft m Ft
89.6 m Ft 11%

Az ingatlan elhelyezkedése

Cím: Monor

Eladó ikerházak a környékről

Herceghalom
Eladó ikerház

Herceghalom

135 M Ft
5 szoba
134 m²
Vác
Eladó ikerház

Vác

96.7 M Ft
4 + 1 szoba
126 m²
Monor
Eladó ikerház

Monor

89.9 M Ft
4 szoba
80 m²
Vácrátót
Eladó ikerház

Vácrátót

94.9 M Ft
2 + 3 szoba
108 m²
Budakalász
Eladó ikerház

Budakalász

159 M Ft
6 szoba
140 m²
Monor
Eladó ikerház

Monor

89.9 M Ft
4 szoba
80 m²
Monor
Eladó ikerház

Monor

82 M Ft
4 szoba
81 m²
Szentendre
Eladó ikerház

Szentendre

179 M Ft
5 + 1 szoba
147 m²
Monor
Eladó ikerház

Monor

89.9 M Ft
4 szoba
80 m²
Monor
Eladó ikerház

Monor

107 M Ft
5 szoba
107 m²
Szentendre
Eladó ikerház

Szentendre

718 M Ft
10 + 2 szoba
578 m²
Kiskunlacháza
Eladó ikerház

Kiskunlacháza

44.9 M Ft
2 szoba
39 m²
Vác
Eladó ikerház

Vác

99.7 M Ft
4 + 1 szoba
129 m²
Diósd
Eladó ikerház

Diósd

206.25 M Ft
5 szoba
184 m²
Monor
Eladó ikerház

Monor

89.9 M Ft
3 szoba
80 m²
Mogyoród
Eladó ikerház

Mogyoród

135 M Ft
5 szoba
137 m²
Érd
Eladó ikerház

Érd

177.7 M Ft
7 szoba
181 m²
Diósd
Eladó ikerház

Diósd

213.46 M Ft
5 szoba
186 m²
Monor
Eladó ikerház

Monor

107 M Ft
5 szoba
107 m²
Monor
Eladó ikerház

Monor

82 M Ft
4 szoba
81 m²
Vác
Eladó ikerház

Vác

149.9 M Ft
5 szoba
202 m²
Mogyoród
Eladó ikerház

Mogyoród

135 M Ft
5 szoba
137 m²
Monor
Eladó ikerház

Monor

82 M Ft
4 szoba
81 m²
Monor
Eladó ikerház

Monor

82 M Ft
4 szoba
81 m²

Falusi CSOK ingatlanok

Balatonszemes
Eladó téglalakás

Balatonszemes

244.5 M Ft
3 szoba
107 m²
Gyöngyössolymos
Eladó családi ház

Gyöngyössolymos

57.99 M Ft
4 szoba
160 m²
Magyarbánhegyes
Eladó családi ház

Magyarbánhegyes

224 M Ft
5 szoba
600 m²
Tápióbicske
Eladó családi ház

Tápióbicske

17.4 M Ft
2 szoba
84 m²
Csemő
Eladó családi ház

Csemő

61.9 M Ft
3 szoba
88 m²
Újlengyel
Eladó ikerház

Újlengyel

78 M Ft
4 szoba
88 m²
Somogyhárságy
Eladó családi ház

Somogyhárságy

22.9 M Ft
3 szoba
130 m²
Perbál
Eladó családi ház

Perbál

130 M Ft
5 szoba
190 m²