Astora Art House

Eladó ikerház
Máriakálnok

+ 5 kép 1/8
74 900 000 Ft74.9 M Ft 832 222 Ft/m2
4 + 1 szoba
90 m2
építés éve:2025

Részletes adatok

Telekméret: 272 m2
Fűtés: Geotermikus
Energetikai besorolás: Nem adta meg a hirdető

Az OTP Bank lakáshitel ajánlataFizetett hirdetés

+36 30 225
Kasznár József
referens

Érdekel az OTP Bank kedvezményes lakáshitel ajánlata? *

* A kérdésre „Igen” válasz bejelölése esetén, az „Üzenet küldése” gombra kattintva kijelentem, hogy az OTP Bank Nyrt. Adatkezelési tájékoztatójának tartalmát megismertem és tudomásul vettem.

Eladó ikerház leírása

Újépítésű, A++ energiabesorolású családi ház eladó - modern technológia termálvíz használattal, alacsony rezsi, kiváló lokáció!

Mosonmagyaróvár közvetlen határában van, de közigazgatásilag Máriakálnokhoz tartozik.

3%-os Otthon Start Program igényelhető!
CSOK igényelhető!
2026. májusi átadás - geotermikus vagy hőszivattyú, padlófűtés!

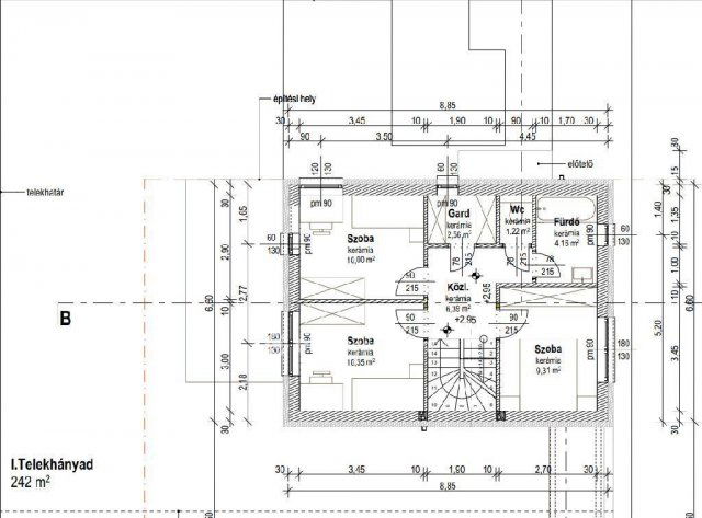
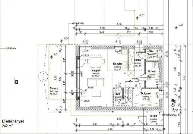
Hasznos alapterület: 90 nm | 4 + 1 szoba.
Telekterület: 315 nm.
Kétszintes, újépítésű családi ház.
Energetikai besorolás: A++.
Fűtés: geotermikus vagy hőszivattyú + padlófűtés, melegvíz ellátással.

Győr-Moson-Sopron megye egyik dinamikusan fejlődő, kedvelt környékén kínálok eladásra egy 2025-ben épülő, prémium műszaki tartalommal rendelkező, energiatakarékos családi házat.
A modern technológiáknak és a geotermikus fűtésnek köszönhetően minimális rezsiköltség, kimagasló komfort és hosszú távú értékállóság jellemzi az ingatlant.

Főbb jellemzők:
90 nm nettó alapterület.
315 nm saját telek.
4+1 szoba - ideális nagyobb családoknak vagy otthoni irodához.
Új építésű, modern, minőségi kivitelezés.
Geotermikus hűtés-fűtés vagy hőszivattyús rendszer.
Padlófűtés a teljes ingatlanban.
Geotermikus termálvíz vagy Hőszivattyú biztosítja a melegvizet is.
A++ energiaosztály - kiemelkedően alacsony fenntartási költségek.
Kétszintes modern elrendezés.

Geotermikus fűtés:
Az ingatlan különlegessége a Villapark saját, 300 méter mélyről feltörő, természetes ásványvíz minőségű termálvize, amely nemcsak a padlófűtést, hanem a teljes melegvíz-ellátást is biztosítja. Környezetbarát, fenntartható, és a legmagasabb kényelmi szintet nyújta - kompromisszumok nélkül.

Elhelyezkedés:
A fejlesztés csendes, rendezett környezetben valósul meg, kiváló közlekedéssel és minden szükséges szolgáltatás közelségével. A környék ideális családoknak, határ közeli munkavállalóknak és azoknak, akik természetközeli életre vágynak, ez által értékálló, korszerű otthont keresnek.

Az OTP Ingatlanpont előnyei:
CSOK és 3%-os OTTHON START PROGRAM igénybe vehető.
Teljes körű ügyintézés.
Kedvezményes OTP Banki hitel- és támogatási lehetőségek.
Gyors, rugalmas ügyintézés.
Megbízható ügyvédi háttér.

Ne maradjon le erről a kiemelkedő lehetőségről!
Hívjon bizalommal időpont egyeztetésért vagy további információért - akár hétvégén is rendelkezésre állok.

Referenciaszám: M317917

Referencia szám: M317917-ZE

Hirdetés feltöltve: 2025. 11. 27. Utoljára módosítva: 2025. 11. 27.

Az ingatlan elhelyezkedése

Cím: Máriakálnok

Eladó ingatlanok a környékről

Eladó családi ház
Eladó családi ház

Győr

120 M Ft
6 szoba
140 m2
Eladó ikerház
Eladó ikerház

Máriakálnok

63.629 M Ft
4 szoba
108 m2
Eladó téglalakás
Eladó téglalakás

Győr

51.75 M Ft
2 szoba
50 m2
Eladó ikerház
Eladó ikerház

Győr, Belváros, 9022 Győr-Révfalu

187.998 M Ft
605 m²
180 m2
Eladó téglalakás
Eladó téglalakás

Hegyeshalom

56.9 M Ft
3 szoba
80 m2
Eladó ikerház
Eladó ikerház

Pér

82.634 M Ft
5 szoba
110 m2
Eladó ikerház
Eladó ikerház

Bezenye

76.2 M Ft
5 szoba
92 m2
Eladó téglalakás
Eladó téglalakás

Mosonmagyaróvár

49.9 M Ft
43 m²
43 m2
Eladó családi ház
Eladó családi ház

Győr

299 M Ft
6 szoba
340 m2
Eladó téglalakás
Eladó téglalakás

Győr

66.974 M Ft
3 szoba
66 m2
Eladó téglalakás
Eladó téglalakás

Győr

119.9 M Ft
3 szoba
83 m2
Eladó téglalakás
Eladó téglalakás

Sopron, Belváros, Szentlélek utca

59.9 M Ft
1 szoba
59 m2
Eladó ikerház
Eladó ikerház

Écs

65.5 M Ft
4 szoba
121 m2
Eladó ikerház
Eladó ikerház

Sopron

135 M Ft
4 szoba
95 m2
Eladó ikerház
Eladó ikerház

Pér, Kossuth utca

65 M Ft
5 szoba
109 m2
Eladó családi ház
Eladó családi ház

Rábapordány

33.5 M Ft
2 szoba
120 m2
Eladó családi ház
Eladó családi ház

Győr

384.9 M Ft
6 szoba
225 m2
Eladó ikerház
Eladó ikerház

Mosonmagyaróvár

76.9 M Ft
4 szoba
116 m2
Eladó ikerház
Eladó ikerház

Máriakálnok

74.9 M Ft
4 + 1 szoba
90 m2
Eladó telek
Eladó telek

Bakonyszentlászló

7.9 M Ft
622 m²
Eladó ikerház
Eladó ikerház

Nagycenk

89.5 M Ft
4 szoba
90 m2
Eladó ikerház
Eladó ikerház

Győrújfalu

110 M Ft
5 szoba
113 m2
Eladó ikerház
Eladó ikerház

Máriakálnok

58.181 M Ft
4 szoba
75 m2
Eladó ikerház
Eladó ikerház

Máriakálnok

60.5 M Ft
3 szoba
62 m2

Falusi CSOK ingatlanok

Eladó családi ház
Eladó családi ház

Tápiószőlős

69 M Ft
3 szoba
77 m2
Eladó családi ház
Eladó családi ház

Mezőfalva

39 M Ft
3 szoba
77 m2
Eladó családi ház
Eladó családi ház

Kemeneshőgyész

8 M Ft
2 szoba
60 m2
Eladó családi ház
Eladó családi ház

Sarud

17 M Ft
3 szoba
94 m2
Eladó családi ház
Eladó családi ház

Ádánd

79 M Ft
4 szoba
140 m2
Eladó panellakás
Eladó panellakás

Pétfürdő

49.9 M Ft
3 szoba
71 m2
Eladó családi ház
Eladó családi ház

Somogygeszti

38.6 M Ft
3 + 1 szoba
98 m2
Eladó családi ház
Eladó családi ház

Vajszló

18 M Ft
2 szoba
91 m2