Aerogate Homes

Eladó ikerház
Kóka

+ 4 kép 1/7
59 900 000 Ft59.9 M Ft 554 630 Ft/m2
4 szoba
108 m2
építés éve:2026

Részletes adatok

Telekméret: 1407 m2
Fűtés: Egyéb
Energetikai besorolás: Nem adta meg a hirdető

Az OTP Bank lakáshitel ajánlataFizetett hirdetés

3629998816
Póta-Für Adrienn
referens

Érdekel az OTP Bank kedvezményes lakáshitel ajánlata? *

* A kérdésre „Igen” válasz bejelölése esetén, az „Üzenet küldése” gombra kattintva kijelentem, hogy az OTP Bank Nyrt. Adatkezelési tájékoztatójának tartalmát megismertem és tudomásul vettem.

Eladó ikerház leírása

Kókán Új építésű Ikerház Garázs kapcsolattal!

Megvételre kínálok Kókán minőségi kivitelezéssel készülő Ikerház felet.

HÁTSÓ INGATLAN!

Az Ingatlan nagyon jó csendes helyen helyezkedik el,a busz megállótól 10 perc sétára,ami közvetlen a Sülysápi Vasútállomás érkezik.

Számos Referencia munkával állunk rendelkezésre.

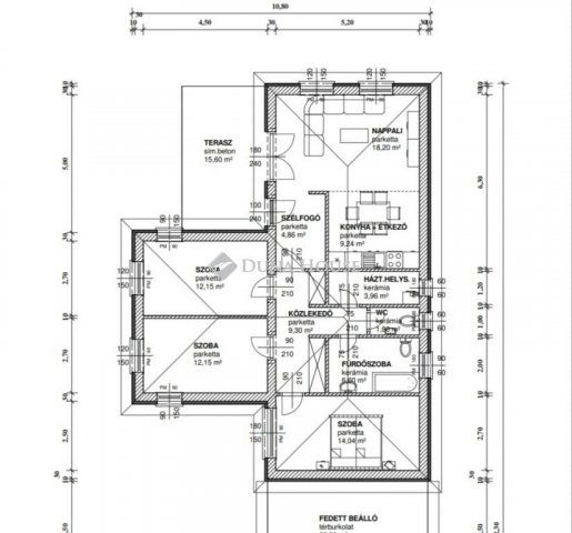
Az ingatlan felosztása:
- Szoba: 14,04 nm2
- Szoba: 12,15 nm2
- Szoba: 12,15 nm2
- Fürdőszoba: 6,6 nm2
- wc: 1,8 nm2
- Amerikai Konyha -Nappali : 27,44 nm2
- Szélfogó : 4,86 nm2
- Háztartási Helyiség : 3,96 nm2
- Közlekedő : 9,3 nm2
- Nyitott Terasz : 15,6 nm2

Az Ingatlan szerkezete B30-as Tégla 15 cm szigeteléssel.
A tető szerkezete fa födémes,20 cm kőzetgyapot szigeteléssel,plusz betoncserép fedéssel.
Az ingatlan teljes belső területe fűtéséről hőszivattyú gondoskodik,amely padlófűtéssel párosul.

700 nm2-es telek tartozik az ingatlanhoz,amely ideális mind a családi összejövetelek,grillezések és kikapcsolódás helyszíneként.

Klíma kiépítése lehetséges ezt a kivitelezővel kell előre egyeztetni.

Amely a vételárban benne van:

- Meleg burkolatok 3500,-

- Hideg burkolatok 4000,-

- Beltéri ajtók 30.000,-

- Csapok/db 15.000,-

- Kád: 40.000,-

- Mosdó 20.000,-

- Wc 20.000,-

- Terep rendezés.

Átadás várható ideje: 2026. első negyedév.
Ha kérdése van vagy szeretné megtekinteni, keressen bizalommal a hét bármely napján!
Póta-Für Adrienn, ingatlanértékesítő
+36 30 115 1416
potafur.adrienn@dh.hu

Ha még nem találta meg új otthonát, esetleg a vásárláshoz előbb el kell adnia egy ingatlant, keressen a fenti elérhetőségeimen, együtt megtaláljuk a megoldást!

Irodánk pénzügyi szakértője díjmentes és bankfüggetlen hiteltanácsadással segíti a vásárlást, melynek lebonyolításához igény esetén megbízható ügyvédi hátteret biztosítunk.

Referencia szám: HZ040832

Hirdetés feltöltve: 2025. 10. 30. Utoljára módosítva: 2026. 01. 12.

4 szobás ikerházak ára Kókán

Ebből az összehasonlításból megtudhatod, hogyan viszonyul a lakás ára a környékbeli ikerházak átlagos árához. Ez nem azt jelenti, hogy ennyivel olcsóbb vagy drágább, mint amennyit a lakás ér, hanem hogy ennyivel tér el a környékbeli átlagtól.

Ennek a m² ára
Kóka m² ár
555 e Ft
605 e Ft 8%
Ennek az ára
Kóka átlagár
59.9 M Ft m Ft
61.3 m Ft 2%

Az ingatlan elhelyezkedése

Cím: Kóka

Eladó ikerházak a környékről

Eladó ikerház
Eladó ikerház

Kóka

63 M Ft
4 szoba
113 m2
Eladó ikerház
Eladó ikerház

Kóka

58 M Ft
4 szoba
109 m2
Eladó ikerház
Eladó ikerház

Kóka

59.9 M Ft
4 szoba
108 m2
Eladó ikerház
Eladó ikerház

Szentendre

359 M Ft
5 + 1 szoba
289 m2
Eladó ikerház
Eladó ikerház

Érd, Érdligeten található utca

64.9 M Ft
4 szoba
112 m2
Eladó ikerház
Eladó ikerház

Diósd

213.46 M Ft
5 szoba
186 m2
Eladó ikerház
Eladó ikerház

Kóka

65 M Ft
4 szoba
97 m2
Eladó ikerház
Eladó ikerház

Kóka

63.9 M Ft
4 szoba
102 m2
Eladó ikerház
Eladó ikerház

Szentendre

179 M Ft
5 + 1 szoba
147 m2
Eladó ikerház
Eladó ikerház

Kóka

62 M Ft
4 szoba
113 m2
Eladó ikerház
Eladó ikerház

Pomáz

129.5 M Ft
4 szoba
100 m2
Eladó ikerház
Eladó ikerház

Kóka

59.9 M Ft
4 szoba
108 m2
Eladó ikerház
Eladó ikerház

Kóka

61.99 M Ft
4 szoba
93 m2
Eladó ikerház
Eladó ikerház

Vác

94.5 M Ft
4 + 1 szoba
126 m2
Eladó ikerház
Eladó ikerház

Vác

96.5 M Ft
4 + 1 szoba
129 m2
Eladó ikerház
Eladó ikerház

Kóka

63.9 M Ft
4 szoba
102 m2
Eladó ikerház
Eladó ikerház

Mogyoród, Fóti út

188 M Ft
6 szoba
182 m2
Eladó ikerház
Eladó ikerház

Mogyoród

135 M Ft
5 szoba
137 m2
Eladó ikerház
Eladó ikerház

Dunakeszi

149 M Ft
1 + 4 szoba
127 m2
Eladó ikerház
Eladó ikerház

Kóka

57.9 M Ft
4 szoba
112 m2
Eladó ikerház
Eladó ikerház

Kóka

59.99 M Ft
4 szoba
93 m2
Eladó ikerház
Eladó ikerház

Pécel, Pécel - kertváros

127 M Ft
4 szoba
125 m2
Eladó ikerház
Eladó ikerház

Kóka

59.9 M Ft
4 szoba
108 m2
Eladó ikerház
Eladó ikerház

Kóka

65 M Ft
4 szoba
97 m2

Falusi CSOK ingatlanok

Eladó családi ház
Eladó családi ház

Tárkány

35 M Ft
2 szoba
72 m2
Eladó családi ház
Eladó családi ház

Palkonya

137 M Ft
6 szoba
160 m2
Eladó családi ház
Eladó családi ház

Kislippó

16 M Ft
3 szoba
100 m2
Eladó családi ház
Eladó családi ház

Bugac

34.4 M Ft
3 szoba
70 m2
Eladó családi ház
Eladó családi ház

Tésenfa, Kossuth utca 23/a

5.55 M Ft
1 + 1 szoba
109 m2
Eladó családi ház
Eladó családi ház

Berkesd

39.5 M Ft
5 szoba
175 m2
Eladó családi ház
Eladó családi ház

Mezőzombor

19.99 M Ft
3 szoba
91 m2
Eladó családi ház
Eladó családi ház

Ádánd

57.9 M Ft
5 szoba
190 m2