Eladó ikerház
Kóka

+ 4 kép 1/7
65 000 000 Ft65 M Ft 601 852 Ft/m2
4 szoba
108 m2
építés éve:2026

Részletes adatok

Telekméret: 1407 m2
Fűtés: Egyéb
Energetikai besorolás: Nem adta meg a hirdető

Az OTP Bank lakáshitel ajánlataFizetett hirdetés

3629769722
Winkelbauerné Kovács Boglárka
Duna House - Villa Gyömrő

Érdekel az OTP Bank kedvezményes lakáshitel ajánlata? *

* A kérdésre „Igen” válasz bejelölése esetén, az „Üzenet küldése” gombra kattintva kijelentem, hogy az OTP Bank Nyrt. Adatkezelési tájékoztatójának tartalmát megismertem és tudomásul vettem.

Eladó ikerház leírása

Kókán Új építésű Ikerház Garázs kapcsolattal!

Megvételre kínálok Kókán minőségi kivitelezéssel készülő Ikerház felet.

UTCA FRONTI  INGATLAN!

Az Ingatlan nagyon jó csendes helyen helyezkedik el,a busz megállótól 10 perc sétára,ami közvetlen a Sülysápi Vasútállomás érkezik.

Számos Referencia munkával állunk rendelkezésre.

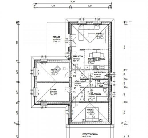
Az ingatlan felosztása:

- Szoba: 14,04 nm2

- Szoba: 12,15 nm2

- Szoba: 12,15 nm2

- Fürdőszoba: 6,6 nm2

- wc: 1,8 nm2

- Amerikai Konyha -Nappali : 27,44 nm2

- Szélfogó : 4,86 nm2

- Háztartási Helyiség : 3,96 nm2

- Közlekedő : 9,3 nm2

- Nyitott Terasz : 15,6 nm2

Az Ingatlan szerkezete B30-as Tégla 15 cm szigeteléssel.

A tető szerkezete fa födémes,20 cm kőzetgyapot szigeteléssel,plusz betoncserép fedéssel.

Az ingatlan teljes belső területe fűtéséről  hőszivattyú gondoskodik,amely padlófűtéssel párosul.

700 nm2-es telek tartozik az ingatlanhoz,amely ideális mind a családi összejövetelek,grillezések és kikapcsolódás helyszíneként.

Klíma kiépítése lehetséges ezt a kivitelezővel kell előre egyeztetni.

Amely a vételárban benne van:

- Meleg burkolatok 3500,-
- Hideg burkolatok 4000,-
- Beltéri ajtók 30.000,-
- Csapok/db 15.000,-
- Kád: 40.000,-
- Mosdó 20.000,-
- Wc 20.000,-
- Terep rendezés.

Átadás várható ideje: 2026. első negyedév.

Várom megtisztelő hívását.Tekintsük meg együtt Álmai Otthonát!

Bank független hitel ügyintézővel is állok rendelkezésére.

Hirdetés feltöltve: 2025. 10. 01. Utoljára módosítva: 2025. 10. 01.

4 szobás ikerházak ára Kókán

Ebből az összehasonlításból megtudhatod, hogyan viszonyul a lakás ára a környékbeli ikerházak átlagos árához. Ez nem azt jelenti, hogy ennyivel olcsóbb vagy drágább, mint amennyit a lakás ér, hanem hogy ennyivel tér el a környékbeli átlagtól.

Ennek a m² ára
Kóka m² ár
602 e Ft
674 e Ft 11%
Ennek az ára
Kóka átlagár
65 M Ft m Ft
61.3 m Ft -6%

Az ingatlan elhelyezkedése

Cím: Kóka

Eladó ingatlanok a környékről

Eladó ikerház
Eladó ikerház

Veresegyház

94.9 M Ft
5 szoba
118 m2
Eladó ikerház
Eladó ikerház

Pécel, Pécel - kertváros

127 M Ft
4 szoba
125 m2
Eladó ikerház
Eladó ikerház

Pécel

149.9 M Ft
5 szoba
306 m2
Eladó ikerház
Eladó ikerház

Kóka

57.99 M Ft
4 szoba
102 m2
Eladó családi ház
Eladó családi ház

Tápiószecső

47.9 M Ft
4 szoba
87 m2
Eladó családi ház
Eladó családi ház

Albertirsa

55.9 M Ft
2 szoba
168 m2
Eladó ikerház
Eladó ikerház

Érd, Érdligeten található utca

64.9 M Ft
4 szoba
112 m2
Eladó ikerház
Eladó ikerház

Szentendre

179 M Ft
5 + 1 szoba
147 m2
Eladó családi ház
Eladó családi ház

Cegléd

19.9 M Ft
2 + 1 szoba
51 m2
Eladó ikerház
Eladó ikerház

Üröm

249.9 M Ft
4 szoba
154 m2
Eladó ikerház
Eladó ikerház

Solymár

150 M Ft
4 + 2 szoba
252 m2
Eladó ikerház
Eladó ikerház

Kóka

59.9 M Ft
4 szoba
93 m2
Eladó ikerház
Eladó ikerház

Kóka

63.9 M Ft
4 szoba
97 m2
Eladó ikerház
Eladó ikerház

Kóka

57.9 M Ft
4 szoba
102 m2
Eladó ikerház
Eladó ikerház

Szentendre, Szentendre

398 M Ft
5 szoba
267 m2
Eladó családi ház
Eladó családi ház

Nagykőrös

79.9 M Ft
7 + 1 szoba
224 m2
Eladó ikerház
Eladó ikerház

Kóka

65.9 M Ft
4 szoba
78 m2
Eladó családi ház
Eladó családi ház

Újszilvás

11.9 M Ft
3 szoba
66 m2
Eladó ikerház
Eladó ikerház

Vác

94.9 M Ft
4 + 1 szoba
129 m2
Eladó családi ház
Eladó családi ház

Gödöllő

72.99 M Ft
5 szoba
110 m2
Eladó telek
Eladó telek

Szentendre

65 M Ft
1882 m²
1882 m2
Eladó ikerház
Eladó ikerház

Vác

92.9 M Ft
4 + 1 szoba
126 m2
Eladó ikerház
Eladó ikerház

Kóka

65 M Ft
4 szoba
108 m2
Eladó ikerház
Eladó ikerház

Kóka

57.9 M Ft
4 szoba
102 m2

Falusi CSOK ingatlanok

Eladó családi ház
Eladó családi ház

Buzsák

16.9 M Ft
4 szoba
100 m2
Eladó családi ház
Eladó családi ház

Bakonyság

51.9 M Ft
2 + 1 szoba
91 m2
Eladó téglalakás
Eladó téglalakás

Tokaj

116.5 M Ft
2 szoba
49 m2
Eladó családi ház
Eladó családi ház

Mályi

89.9 M Ft
4 szoba
100 m2
Eladó családi ház
Eladó családi ház

Balatonkenese

99.8 M Ft
5 szoba
138 m2
Eladó családi ház
Eladó családi ház

Balatonkeresztúr, Dózsa György u. 29

145 M Ft
5 szoba
150 m2
Eladó családi ház
Eladó családi ház

Balatonőszöd

55 M Ft
5 szoba
148 m2
Eladó családi ház
Eladó családi ház

Németkér

33 M Ft
3 szoba
130 m2