Metrodom

Eladó ikerház
Kartal

+ 4 kép 1/7
69 900 000 Ft69.9 M Ft 706 061 Ft/m2
4 szoba
99 m2
építés éve:2026

Részletes adatok

Telekméret: 500 m2
Fűtés: Egyéb
Közmű: Víz, Villany, Csatorna
Energetikai besorolás: Nem adta meg a hirdető

Az OTP Bank lakáshitel ajánlataFizetett hirdetés

+36 70 418
Kovács Péter
referens

Érdekel az OTP Bank kedvezményes lakáshitel ajánlata? *

* A kérdésre „Igen” válasz bejelölése esetén, az „Üzenet küldése” gombra kattintva kijelentem, hogy az OTP Bank Nyrt. Adatkezelési tájékoztatójának tartalmát megismertem és tudomásul vettem.

Eladó ikerház leírása

Új építésű, földszintes, ikerház mindkét fele eladó Kartalon!

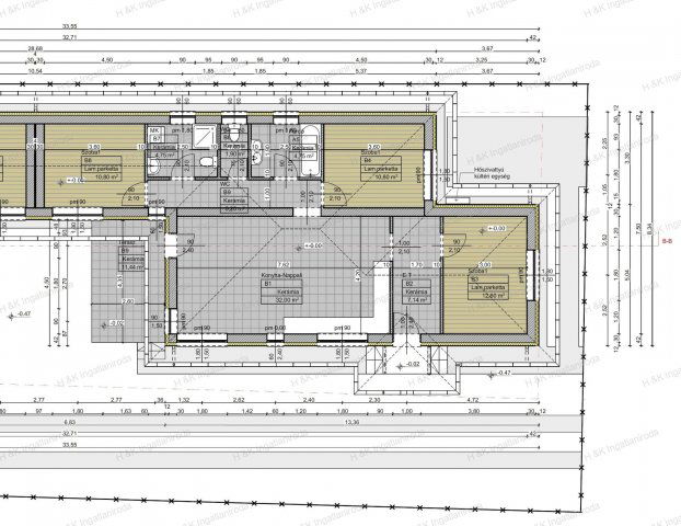
A 783 nm-es telekre épülő ház belső lakásának lakótere 91,75 nm + 11,44 nm terasz, amerikai-konyhás nappali + 3 szobás, dél-nyugati tájolású, dupla-komfortos, 500 nm-es kizárólagos használatú telekrésszel rendelkezik.

CÉGES ÉPÍTKEZÉS, a 2024-től aktuális állami támogatások valamint kedvezményes, kamattámogatott hitelek felvehetőek.
Az építő munkájára jellemző a megbízhatóság és igényesség, leinformálható, referencia házai megtekinthetők.

HELYISÉGLISTA:
szélfogó 3 nm, előszoba 7,14 nm, nappali – konyha - étkező 32 nm, 3 szoba 10,8 - 11,31 - 12,6 nm, fürdőszoba 4,75 nm, háztartási helyiség 4,75 nm, közlekedő 6,5 nm, külön WC 1,9 nm, terasz 12,95 nm.

Rövid műszaki tartalom:
A ház falai 30 cm-es TÉGLÁBÓL épülnek + 10 cm dryvit szigeteléssel.
A tető beton cserépfedést kap.
Az ablakok műanyag szerkezettel, thermo üveggel kerülnek beépítésre.

A fűtés hőszivattyúval kerül kialakításra, padlófűtéssel történő hő leadással.
A hűtésről 2 db hűtő-fűtő, fali klíma fog gondoskodni.

Parkolás: zárt udvari gépkocsi beállón

A szobákban laminált parketta, a vizes helyiségekben kerámia lapok kerülnek, a belső műszaki tartalomban feltüntetett összegig a vételár részét képezve.

Infrastruktúra: csendes, aszfaltozott, mellékutcában található, a közelben megtalálható óvoda, iskola, élelmiszerbolt. A buszmegálló gyalogosan 10 perc alatt megközelíthető

A belső lakás is elérhető 300 nm-es telekrésszel 67,9 Ft

Ára: 69.900.000.- Ft
Azonosító: 4628/2

Hirdetés feltöltve: 2026. 01. 06. Utoljára módosítva: 2026. 01. 07.

Az ingatlan elhelyezkedése

Cím: Kartal

Eladó ingatlanok a környékről

Eladó téglalakás
Eladó téglalakás

Dunakeszi, Rév-dűlő, Pihenő utca

59.9 M Ft
2 szoba
35 m2
Eladó mezogazdasagi ingatlan
Eladó mezogazdasagi ingatlan

Örkény

110 M Ft
24471 m2
Eladó ikerház
Eladó ikerház

Veresegyház

145 M Ft
4 szoba
120 m2
Eladó téglalakás
Eladó téglalakás

Diósd

68.9 M Ft
2 szoba
54 m2
Eladó családi ház
Eladó családi ház

Dánszentmiklós

67.9 M Ft
3 + 1 szoba
200 m2
Eladó ikerház
Eladó ikerház

Pécel

149.9 M Ft
5 szoba
306 m2
Eladó ikerház
Eladó ikerház

Szentendre

359 M Ft
5 szoba
289 m2
Eladó családi ház
Eladó családi ház

Verőce

110 M Ft
3 + 2 szoba
105 m2
Eladó téglalakás
Eladó téglalakás

Leányfalu

81 M Ft
4 szoba
126 m2
Eladó ikerház
Eladó ikerház

Vác

149.9 M Ft
5 szoba
202 m2
Eladó téglalakás
Eladó téglalakás

Leányfalu, 26LL9042

48 M Ft
3 szoba
126 m2
Eladó telek
Eladó telek

Monor, Ceglédi út

60 M Ft
1079 m²
Eladó téglalakás
Eladó téglalakás

Budakeszi

167.9 M Ft
1 + 3 szoba
150 m2
Eladó telek
Eladó telek

Veresegyház

645 M Ft
796 m²
Eladó téglalakás
Eladó téglalakás

Tököl

84.99 M Ft
3 + 1 szoba
90 m2
Eladó családi ház
Eladó családi ház

Szigetmonostor

89 M Ft
1 + 2 szoba
80 m2
Eladó ikerház
Eladó ikerház

Pécel, Pécel

132.9 M Ft
6 szoba
200 m2
Eladó téglalakás
Eladó téglalakás

Tököl

84.99 M Ft
3 + 1 szoba
90 m2
Eladó családi ház
Eladó családi ház

Leányfalu, 26HL9975

129 M Ft
7 szoba
252 m2
Eladó családi ház
Eladó családi ház

Dunabogdány

22.9 M Ft
3 szoba
86 m2
Eladó családi ház
Eladó családi ház

Pomáz

242.8 M Ft
10 szoba
226 m2
Eladó ikerház
Eladó ikerház

Szentendre

359 M Ft
5 + 1 szoba
289 m2
Eladó családi ház
Eladó családi ház

Szigetmonostor

127 M Ft
2 szoba
70 m2
Eladó nyaraló
Eladó nyaraló

Kismaros

30 M Ft
1 + 1 szoba
20 m2

Falusi CSOK ingatlanok

Eladó ikerház
Eladó ikerház

Enese

83.9 M Ft
4 szoba
90 m2
Eladó családi ház
Eladó családi ház

Sellye

43 M Ft
5 szoba
150 m2
Eladó családi ház
Eladó családi ház

Sződ, Mártírok útja

73.4 M Ft
6 szoba
120 m2
Eladó családi ház
Eladó családi ház

Baksa

61.99 M Ft
3 szoba
100 m2
Eladó családi ház
Eladó családi ház

Szakmár

12.9 M Ft
3 + 1 szoba
90 m2
Eladó családi ház
Eladó családi ház

Fajsz

25 M Ft
3 szoba
95 m2
Eladó családi ház
Eladó családi ház

Újlengyel

110 M Ft
4 szoba
121 m2
Eladó családi ház
Eladó családi ház

Vásárosdombó

14.99 M Ft
2 szoba
69 m2