Astora Olive Club House

Eladó ikerház
Győrság

Figyelem!

Ez az ingatlan a 2019.07.01-től induló falusi CSOK által támogatott településen található

+ 1 kép 1/4
59 900 000 Ft59.9 M Ft 658 242 Ft/m2
4 szoba
91 m2

Részletes adatok

Telekméret: 538 m2
Fűtés: Egyéb
Közmű: Víz, Gáz, Villany, Csatorna
Energetikai besorolás: Nem adta meg a hirdető

Az OTP Bank lakáshitel ajánlataFizetett hirdetés

+36 70 886
Neizer Éva
Trendi Ingatlan

Érdekel az OTP Bank kedvezményes lakáshitel ajánlata? *

* A kérdésre „Igen” válasz bejelölése esetén, az „Üzenet küldése” gombra kattintva kijelentem, hogy az OTP Bank Nyrt. Adatkezelési tájékoztatójának tartalmát megismertem és tudomásul vettem.

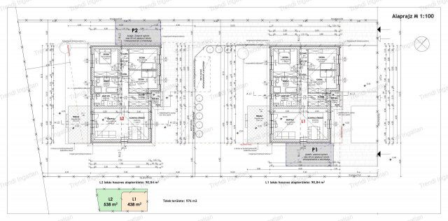
Eladó ikerház leírása

Győrságon új építésű 90,84 nm-es nappali + 3 szobás ikerház 538 nm-es telekrészen eladó. A két ház önállóan megközelíthető, nincs közös fal.

A remek elosztású házban amerikai konyhás nappali, 3 szoba, fürdőszoba, háztartási helyiség, előtér, gardrób, közlekedő található. A nappaliból 15,15 nm-es terasz nyílik.

A ház 30-as falazóelemből, 15 cm-es homlokzati szigeteléssel, 3 rétegű műanyag nyílászárókkal kerül kivitelezésre. Az ingatlan fűtését és melegvíz ellátását hőszivattyú biztosítja padlófűtéssel. Felár ellenében kerti csap, klíma- és riasztó előkészítés, terasz, térkövezés kérhető.

Fűtéskész átadás várható ideje: 2026 ősz

Az ingatlan fűtéskész ára: 59.900.000 Ft. Kulcsrakész befejezés kérhető.
Az ár tartalmazza a telek árát is.

Bővebb információkért forduljon hozzám bizalommal.
Hétköznap és hétvégén is várom hívását!

Díjmentes, bankfüggetlen hitelügyintézéssel állunk rendelkezésére.

A hirdetésben feltüntetett képek illusztrációk.

Hirdetés feltöltve: 2025. 10. 17. Utoljára módosítva: 2025. 11. 03.

Az ingatlan elhelyezkedése

Cím: Győrság

Eladó ingatlanok a környékről

Eladó ikerház
Eladó ikerház

Győrság

69.9 M Ft
3 szoba
72 m2
Eladó ikerház
Eladó ikerház

Győrság

66.1 M Ft
4 szoba
115 m2
Eladó ikerház
Eladó ikerház

Mosonmagyaróvár

79.8 M Ft
4 szoba
88 m2
Eladó téglalakás
Eladó téglalakás

Győr

63 M Ft
2 szoba
69 m2
Eladó ikerház
Eladó ikerház

Écs

82.25 M Ft
4 szoba
166 m2
Eladó ikerház
Eladó ikerház

Pér

82.634 M Ft
5 szoba
110 m2
Eladó ikerház
Eladó ikerház

Sopron

149.9 M Ft
4 szoba
95 m2
Eladó ikerház
Eladó ikerház

Győrság

69.9 M Ft
3 szoba
72 m2
Eladó ikerház
Eladó ikerház

Mosonmagyaróvár

76.9 M Ft
4 szoba
116 m2
Eladó családi ház
Eladó családi ház

Győr

149.9 M Ft
5 szoba
162 m2
Eladó ikerház
Eladó ikerház

Győrújfalu

110 M Ft
5 szoba
113 m2
Eladó téglalakás
Eladó téglalakás

Mosonmagyaróvár

51.9 M Ft
3 szoba
52 m2
Eladó családi ház
Eladó családi ház

Győr

104 M Ft
4 szoba
105 m2
Eladó téglalakás
Eladó téglalakás

Mosonmagyaróvár

54.99 M Ft
2 szoba
51 m2
Eladó ikerház
Eladó ikerház

Vámosszabadi

89 M Ft
4 szoba
91 m2
Eladó családi ház
Eladó családi ház

Győrújfalu

139 M Ft
4 szoba
230 m2
Eladó ikerház
Eladó ikerház

Várbalog, Fő út

86.1 M Ft
3 szoba
123 m2
Eladó ikerház
Eladó ikerház

Győrság

69.9 M Ft
3 szoba
72 m2
Eladó ikerház
Eladó ikerház

Győrság

77.99 M Ft
4 szoba
91 m2
Eladó családi ház
Eladó családi ház

Enese

78.9 M Ft
4 szoba
90 m2
Eladó ikerház
Eladó ikerház

Sopron

82.4 M Ft
3 szoba
80 m2
Eladó családi ház
Eladó családi ház

Győr

155 M Ft
7 szoba
247 m2
Eladó ikerház
Eladó ikerház

Sopron

144.9 M Ft
9 szoba
426 m2
Eladó ikerház
Eladó ikerház

Győr

82.6 M Ft
4 szoba
101 m2

Falusi CSOK ingatlanok

Eladó családi ház
Eladó családi ház

Kelebia

13 M Ft
3 szoba
76 m2
Eladó családi ház
Eladó családi ház

Nagyberény

24.9 M Ft
3 szoba
62 m2
Eladó családi ház
Eladó családi ház

Tápiószőlős

17 M Ft
2 szoba
60 m2
Eladó családi ház
Eladó családi ház

Tab, Rózsadomb utca

79 M Ft
3 szoba
93 m2
Eladó családi ház
Eladó családi ház

Kocsér

19.9 M Ft
1 + 2 szoba
73 m2
Eladó családi ház
Eladó családi ház

Ádánd

55.5 M Ft
6 szoba
180 m2
Eladó családi ház
Eladó családi ház

Cece

23.5 M Ft
2 szoba
56 m2
Eladó családi ház
Eladó családi ház

Csemő

79.8 M Ft
2 szoba
88 m2

Falusi CSOK ingatlanok

Eladó családi ház
Eladó családi ház

Nagykarácsony

34.9 M Ft
3 szoba
112 m2
Eladó családi ház
Eladó családi ház

Újléta

18.5 M Ft
2 szoba
63 m2
Eladó téglalakás
Eladó téglalakás

Nyáregyháza

61.5 M Ft
4 szoba
91 m2
Eladó családi ház
Eladó családi ház

Rábaszentmihály

65 M Ft
3 szoba
156 m2
Eladó családi ház
Eladó családi ház

Törtel

14 M Ft
3 + 2 szoba
55 m2
Eladó családi ház
Eladó családi ház

Bősárkány

46.99 M Ft
3 szoba
86 m2
Eladó családi ház
Eladó családi ház

Kaposgyarmat

695 M Ft
6 szoba
610 m2
Eladó családi ház
Eladó családi ház

Csengőd, Tompa Mihály utca

34 M Ft
2 szoba
81 m2