Astora Olive Club House

Eladó ikerház
Gárdony

+ 13 kép 1/16
115 000 000 Ft115 M Ft 934 959 Ft/m2
1 + 3 szoba
123 m²
építés éve:2025

Részletes adatok

Telekméret: 251 m2
Fűtés: Egyéb
Energetikai besorolás: Nem adta meg a hirdető

Az OTP Bank lakáshitel ajánlataFizetett hirdetés

+36 70 324
Máté Katalin
Szigetszentmiklós OTP Ip

Érdekel az OTP Bank kedvezményes lakáshitel ajánlata? *

* A kérdésre „Igen” válasz bejelölése esetén, az „Üzenet küldése” gombra kattintva kijelentem, hogy az OTP Bank Nyrt. Adatkezelési tájékoztatójának tartalmát megismertem és tudomásul vettem.

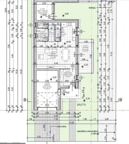
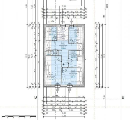
Eladó ikerház leírása

Fejér megye, Gárdony 123 nm-es új építésű ikerház fele eladó 251 nm-es saját kerttel. A tégla falazatú, szigetelt ingatlan a település központjához közel, mégis csendes környezetben található. A kulcsrakész állapot várható átadása 2026. április vége. Az modern házban tágas amerikai konyhás nappali, 3 félszoba, kamra, 2 fürdőszoba, 1 külön WC, gépészeti helyiség található, valamint tartozik hozzá 21 nm-es garázs, 13,2 nm-es terasz és 7,5 nm-es kerti tároló. A lakóegységek a kerti tárolónál csatlakoznak. Az épület B30-as téglából, 15 cm-es homlokzati, 30 cm-es födém szigeteléssel épült. Az összes nyílászáró 3 rétegű fa, redőnnyel és szúnyoghálóval felszerelt. Fűtése környezetbarát, energiatakarékos hőszivattyús rendszer, fűtés padlófűtéses hőleadással, mennyezeti hűtéssel. A házban még a beltéri ajtók, minden belső falszín, burkolat színe és mintája választható. A vételár tartalmazza a kulcsrakész állapotot, kerítéssel, elektromos garázskapuval, térkövezéssel. A közelben iskola, bevásárlási lehetőségek, orvosi rendelő, polgármesteri hivatal, posta, vasútállomás és a tópart. Jól átgondolt, élhető terekkel megálmodott, a legújabb rendszerek felhasználásával készülő ingatlan megvásárlásával egyszerre teremthet egy igényes, stílusos és barátságos otthont. Teljes körű ügyintézésben segítjük ügyfeleinket díjtalanul: Falusi CSOK, CSOK igénylése, kedvezményes hitel mobil bankári szolgáltatással, adásvétel teljes lebonyolításával. Bővebb információkért, kérem keressen bizalommal.

Hirdetés feltöltve: 2026. 04. 09. Utoljára módosítva: 2026. 05. 05.

Az ingatlan elhelyezkedése

Cím: Gárdony

Eladó ingatlanok a környékről

Tordas, Gyúrói út
Eladó ikerház

Tordas

119.9 M Ft
4 szoba
134 m²
Kápolnásnyék
Eladó ikerház

Kápolnásnyék

132.6 M Ft
1 + 3 szoba
156 m²
Úrhida
Eladó ikerház

Úrhida

39.9 M Ft
4 szoba
91 m²
Gárdony
Eladó ikerház

Gárdony

109.5 M Ft
5 szoba
115 m²
Gárdony
Eladó ikerház

Gárdony

39 M Ft
4 szoba
70 m²
Gárdony
Eladó ikerház

Gárdony

80.9 M Ft
4 szoba
83 m²
Gárdony
Eladó ikerház

Gárdony

39 M Ft
4 szoba
70 m²
Gárdony
Eladó ikerház

Gárdony

94.999 M Ft
1 + 4 szoba
89 m²
Tordas
Eladó ikerház

Tordas

73.5 M Ft
1 + 2 szoba
71 m²
Alcsútdoboz
Eladó nyaraló

Alcsútdoboz

12.5 M Ft
1 szoba
23 m²
Gárdony
Eladó ikerház

Gárdony

69 M Ft
3 + 1 szoba
160 m²
Bicske
Eladó családi ház

Bicske

19.5 M Ft
3 szoba
25 m²
Tordas
Eladó ikerház

Tordas

73.5 M Ft
1 + 2 szoba
71 m²
Ercsi
Eladó ikerház

Ercsi

55 M Ft
4 szoba
122 m²
Adony
Eladó ikerház

Adony

69.9 M Ft
3 szoba
97 m²
Bicske
Eladó telek

Bicske

7 M Ft
832 m²
0 m²
Gárdony
Eladó ikerház

Gárdony

39 M Ft
4 szoba
70 m²
Ercsi
Eladó ikerház

Ercsi

60 M Ft
4 szoba
85 m²
Csabdi
Eladó telek

Csabdi

24 M Ft
5624 m²
0 m²
Tordas
Eladó ikerház

Tordas

87 M Ft
2 + 2 szoba
92 m²
Etyek
Eladó ikerház

Etyek

145 M Ft
4 + 2 szoba
197 m²
Bicske
Eladó családi ház

Bicske

21.5 M Ft
2 szoba
35 m²
Gárdony
Eladó ikerház

Gárdony

115 M Ft
1 + 3 szoba
123 m²
Gárdony
Eladó ikerház

Gárdony

115 M Ft
1 + 3 szoba
123 m²

Falusi CSOK ingatlanok

Hegyeshalom, Margaréta utca 12
Eladó téglalakás

Hegyeshalom

32.89 M Ft
1 szoba
27 m²
Ádánd
Eladó családi ház

Ádánd

74.99 M Ft
5 szoba
150 m²
Hegyeshalom, Margaréta utca 12
Eladó téglalakás

Hegyeshalom

35.92 M Ft
1 szoba
31 m²
Újszilvás
Eladó családi ház

Újszilvás

18 M Ft
3 szoba
55 m²
Balatonfenyves
Eladó családi ház

Balatonfenyves

119 M Ft
5 szoba
142 m²
Seregélyes
Eladó családi ház

Seregélyes

75 M Ft
6 szoba
160 m²
Somlóvásárhely
Eladó családi ház

Somlóvásárhely

29.9 M Ft
3 + 1 szoba
93 m²
Ceglédbercel
Eladó családi ház

Ceglédbercel

67 M Ft
3 szoba
97 m²