Oasis Residence

Eladó ikerház
Érd

+ 5 kép 1/8
159 000 000 Ft159 M Ft 868 852 Ft/m2
5 szoba
183 m²
építés éve:2026

Részletes adatok

Telekméret: 422 m2
Fűtés: Egyéb
Parkolás: Garázs, Kocsibeálló
Közmű: Víz, Villany, Csatorna
Komfort: Luxus
Energetikai besorolás: Nem adta meg a hirdető

Az OTP Bank lakáshitel ajánlataFizetett hirdetés

+36 20 582
Otthon Plusz Ingatlaniroda
Otthon Plusz Ingatlan

Érdekel az OTP Bank kedvezményes lakáshitel ajánlata? *

* A kérdésre „Igen” válasz bejelölése esetén, az „Üzenet küldése” gombra kattintva kijelentem, hogy az OTP Bank Nyrt. Adatkezelési tájékoztatójának tartalmát megismertem és tudomásul vettem.

Eladó ikerház leírása

Hivatkozzon erre, kód: 5237

- PRÉMIUM KATEGÓRIA

- ÚJ ÉPÍTÉSŰ IKERHÁZI LAKÁS

- IGÉNYES KIVITELEZÉS, EMELT SZINTŰ MŰSZAKI

- NAPPALI + 4 SZOBA, 3 FÜRDŐSZOBA, NAGY TERASZOK, SAJÁT KERT, 1 GK-S GARÁZS

- HŐSZIVATTYÚ PADLÓFŰTÉSSEL

Érdliget zöldövezeti részén, csendes környezetben kb. 422m2 saját kerttel rendelkező belső kétszintes, nappali + 4 szobás, 3 fürdőszobás + 1 gk-s garázs, összesen 183.13m2-es (teraszok felével) új építésű ikerházi lakás (1-es épület) leköthető igény szerinti befejezéssel.

Várható átadás: 2027. tavasz.

Az ingatlan szintenkénti felosztása a kövtkező:

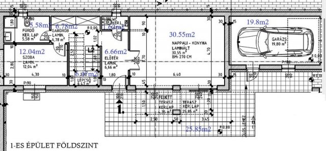
Földszint (89.5m2 + terasz 25.85m2): előtér (6.66m2), nappali - konyha - étkező (30.55m2), wc (1.62m2), lépcső (6.47m2), gardrób (6.78m2), fürdőszoba (5.58m2), szoba (12.04m2), garázs (19.8m2).

Emelet (60.17m2 + 2 terasz 4.61m2 és 36.46m2): közlekedő (10.73m2), mosókonyha (2.7m2), 2 fürdőszoba (2.88m2, 6.65m2), 3 szoba (12.04m2, 12.95m2, 12.22m2).

Szerkezeti leírás: Beton alap. 30-as tégla főfalak + 10cm EPS hőszigetelés, 5cm lábazati szigetelés. 10-es tégla válaszfalak. A külső nyílászárók műanyag szerkezetűek, 3 rétegű 5 légkamrás üvegezéssel ellátva, redőnytokkal (kivéve fürdők és mosókonyha) és szúnyoghálókkal ellátva. A belső nyílászárók dekorfóliás ajtók. Vasbeton födém. Lapostető 20cm szigeteléssel + pvc vízszigetelés.

Műszaki: igény szerinti burkolatok - hideg burkolatok 7000Ft / m2 árig, meleg burkolatok 5000Ft / m2 árig, terasz burkolat 8000Ft / m2 árig, a beltéri ajtók 100.000Ft / db áron választhatók, rejtett tartályos geberit wc, elektromos nagykapu, elektromos garázsajtó, riasztó előkészítés.

Fűtés: Az ingatlan fűtését 14Kw-os hőszivattyú biztosítja, minden helyiségben padlófűtésen keresztül, illetve a fürdőkben felszerelésre kerül törülközőszárítós radiátor is.

Parkolás: 1 gépkocsi számára alkalmas garázsban lehetséges, valamint saját udvaron belül fedetlen-felszíni beálló áll rendelkezésre.

Megközelíthetőség és infrastruktúra: az ingatlan tömegközlekedéstől kiesőbb területen helyezkedik el, ezért legfőképp autóval rendelkező ügyfeleknek ajánljuk. Közintézmények, bevásárlási lehetőségek stb. hamar elérhetők!

További hasonló ingatlanok találhatók még a kínálatunkban!

Szüksége van hitelre? SEGÍTÜNK!

Bankfüggetlen hitel tanácsadónk díjmentesen áll az Ön rendelkezésére! Keressen bizalommal!

A hirdetésben szereplő adatok, információk, képek, alaprajzok stb... tájékoztató jellegűek! Irodánk az esetleges elírásokért felelősséget nem tud vállalni!

Tájékoztatjuk a Tisztelt Érdeklődőket, hogy az ingatlan hirdetésében szereplő telefonszám felhívásával Önök hozzájárulnak személyes adataik (név, telefonszám), a hirdetést feladó -Otthonplusz.hu Kft. - által a bizalmas kezeléshez és nyilvántartáshoz.

Hirdetés feltöltve: 2026. 04. 29. Utoljára módosítva: 2026. 05. 11.

5 szobás ikerházak ára Érden

Ebből az összehasonlításból megtudhatod, hogyan viszonyul a lakás ára a környékbeli ikerházak átlagos árához. Ez nem azt jelenti, hogy ennyivel olcsóbb vagy drágább, mint amennyit a lakás ér, hanem hogy ennyivel tér el a környékbeli átlagtól.

Ennek a m² ára
Érd m² ár
869 e Ft
910 e Ft 5%
Ennek az ára
Érd átlagár
159 M Ft m Ft
164.3 m Ft 3%

Az ingatlan elhelyezkedése

Cím: Érd

Eladó ikerházak a környékről

Érd
Eladó ikerház

Érd

169 M Ft
5 szoba
265 m²
Érd
Eladó ikerház

Érd

145 M Ft
5 szoba
155 m²
Szentendre
Eladó ikerház

Szentendre

359 M Ft
5 + 1 szoba
289 m²
Vácrátót
Eladó ikerház

Vácrátót

94.9 M Ft
2 + 3 szoba
108 m²
Mogyoród
Eladó ikerház

Mogyoród

135 M Ft
5 szoba
137 m²
Pécel
Eladó ikerház

Pécel

149.9 M Ft
5 szoba
306 m²
Érd
Eladó ikerház

Érd

138 M Ft
5 szoba
125 m²
Dunakeszi
Eladó ikerház

Dunakeszi

178 M Ft
6 szoba
140 m²
Herceghalom
Eladó ikerház

Herceghalom

148 M Ft
5 szoba
134 m²
Mogyoród
Eladó ikerház

Mogyoród

135 M Ft
5 szoba
137 m²
Mogyoród
Eladó ikerház

Mogyoród

129 M Ft
5 szoba
123 m²
Pécel, Pécel - kertváros
Eladó ikerház

Pécel

127 M Ft
4 szoba
125 m²
Herceghalom
Eladó ikerház

Herceghalom

99 M Ft
4 szoba
106 m²
Érd
Eladó ikerház

Érd

138 M Ft
5 szoba
125 m²
Érd, Parkváros, Parkváros
Eladó ikerház

Érd

84.7 M Ft
4 szoba
130 m²
Vác
Eladó ikerház

Vác

99.7 M Ft
4 + 1 szoba
129 m²
Érd
Eladó ikerház

Érd

39.9 M Ft
4 szoba
150 m²
Érd
Eladó ikerház

Érd

177.7 M Ft
7 szoba
181 m²
Érd
Eladó ikerház

Érd

238.9 M Ft
5 szoba
256 m²
Vác
Eladó ikerház

Vác

149.9 M Ft
5 szoba
202 m²
Érd, Érdliget - Kutyavár, Ligetszépe út
Eladó ikerház

Érd

149 M Ft
1 szoba
180 m²
Érd
Eladó ikerház

Érd

39.9 M Ft
3 szoba
68 m²
Vácrátót
Eladó ikerház

Vácrátót

99.9 M Ft
3 + 2 szoba
112 m²
Érd
Eladó ikerház

Érd

117 M Ft
4 szoba
145 m²

Falusi CSOK ingatlanok

Balatonszemes, Ady Endre u
Eladó téglalakás

Balatonszemes

78.9 M Ft
2 szoba
46 m²
Tápióság
Eladó családi ház

Tápióság

30 M Ft
3 szoba
105 m²
Ostffyasszonyfa
Eladó családi ház

Ostffyasszonyfa

37.9 M Ft
5 szoba
494 m²
Örkény
Eladó családi ház

Örkény

34 M Ft
2 + 1 szoba
85 m²
Hegyeshalom, Margaréta utca 12
Eladó téglalakás

Hegyeshalom

46.91 M Ft
2 szoba
43 m²
Sződ
Eladó családi ház

Sződ

116.9 M Ft
4 + 1 szoba
102 m²
Kétegyháza
Eladó családi ház

Kétegyháza

21 M Ft
3 szoba
105 m²
Iváncsa
Eladó családi ház

Iváncsa

93.5 M Ft
5 szoba
283 m²