Avico

Eladó ikerház
Dunaszeg

+ 2 kép 1/5
178 090 000 Ft178.09 M Ft 937 316 Ft/m2
5 szoba
190 m2
építés éve:2025

Részletes adatok

Telekméret: 1259 m2
Fűtés: Egyéb
Energetikai besorolás: Nem adta meg a hirdető

Az OTP Bank lakáshitel ajánlataFizetett hirdetés

+36 70 250
Péter Richárd
OTPip - Győr Bajcsy-Zsilinszky út 27 - OTP Ingatlanpont Iroda

Érdekel az OTP Bank kedvezményes lakáshitel ajánlata? *

* A kérdésre „Igen” válasz bejelölése esetén, az „Üzenet küldése” gombra kattintva kijelentem, hogy az OTP Bank Nyrt. Adatkezelési tájékoztatójának tartalmát megismertem és tudomásul vettem.

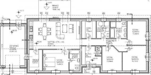
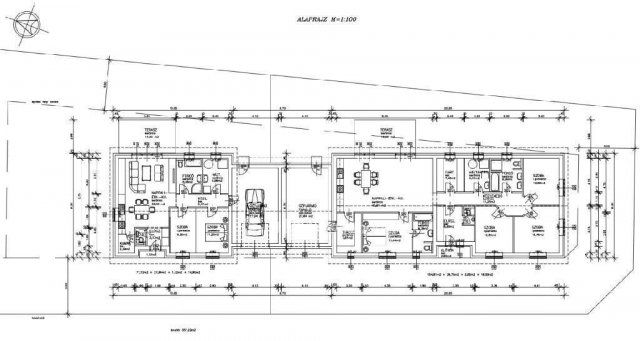
Eladó ikerház leírása

DUNASZEGEN eladásra kínálok 2025. decemberi átadással,
egy 1259 m2-es telket is magába foglaló, új építésű ikerházat garázzsal.

A ház nettó alapterülete 154,8 m2, amely a nappali-étkező, konyha mellett egy fő hálószobát saját fürdővel és WC-vel, valamint további 3 hálószobát,
egy fürdőszobát WC-vel, egy külön WC-t, gardróbot, háztartási helyiséget, fűtött garázst és egy teraszt foglal magába.

Az ár az emeltszintű fűtéskész (hőszivattyús fűtési rendszer) állapotra vonatkozik,
azonban a kivitelező igény szerint vállalja a kulcsrakész befejezést is a modernkori elvárásoknak megfelelően a vevők igényeihez igazodva.

Amennyiben az ingatlan felkeltette az érdeklődését, keressen bizalommal!

Referenciaszám: M306634

Hirdetés feltöltve: 2025. 11. 02.

Az ingatlan elhelyezkedése

Cím: Dunaszeg

Eladó ingatlanok a környékről

Eladó ikerház
Eladó ikerház

Écs

82.25 M Ft
4 szoba
166 m2
Eladó ikerház
Eladó ikerház

Pér, Kossuth utca

65 M Ft
5 szoba
109 m2
Eladó téglalakás
Eladó téglalakás

Győr

51.9 M Ft
2 szoba
49 m2
Eladó ikerház
Eladó ikerház

Sopron

82.9 M Ft
3 szoba
80 m2
Eladó téglalakás
Eladó téglalakás

Győr

165 M Ft
4 szoba
125 m2
Eladó családi ház
Eladó családi ház

Győrújfalu

139 M Ft
4 szoba
230 m2
Eladó családi ház
Eladó családi ház

Győr, Sugár út

107.9 M Ft
6 szoba
150 m2
Eladó ikerház
Eladó ikerház

Győrújfalu

110 M Ft
5 szoba
113 m2
Eladó téglalakás
Eladó téglalakás

Győr

75.99 M Ft
3 szoba
53 m2
Eladó ikerház
Eladó ikerház

Mosonmagyaróvár

76.9 M Ft
4 szoba
116 m2
Eladó panellakás
Eladó panellakás

Győr, Adyváros, Kodály Zoltán utca

48.9 M Ft
2 + 1 szoba
53 m2
Eladó ikerház
Eladó ikerház

Győr

99.8 M Ft
6 szoba
208 m2
Eladó ikerház
Eladó ikerház

Vámosszabadi, Császárfa utca

89 M Ft
4 szoba
91 m2
Eladó ikerház
Eladó ikerház

Dunaszeg

98.98 M Ft
1 + 2 szoba
77 m2
Eladó téglalakás
Eladó téglalakás

Mosonmagyaróvár, Kötélgyártó 4 2/6

49.99 M Ft
2 + 1 szoba
61 m2
Eladó ikerház
Eladó ikerház

Sopron

82.4 M Ft
3 szoba
80 m2
Eladó téglalakás
Eladó téglalakás

Győr

81.5 M Ft
3 szoba
82 m2
Eladó ikerház
Eladó ikerház

Bezenye

77.6 M Ft
5 szoba
92 m2
Eladó panellakás
Eladó panellakás

Győr

51.4 M Ft
2 szoba
53 m2
Eladó ikerház
Eladó ikerház

Pér

82.634 M Ft
5 szoba
110 m2
Eladó téglalakás
Eladó téglalakás

Győr

33.9 M Ft
1 szoba
40 m2
Eladó családi ház
Eladó családi ház

Levél

83 M Ft
3 szoba
100 m2
Eladó családi ház
Eladó családi ház

Győrladamér

58 M Ft
3 szoba
90 m2
Eladó panellakás
Eladó panellakás

Győr

54.99 M Ft
2 + 1 szoba
53 m2

Falusi CSOK ingatlanok

Eladó családi ház
Eladó családi ház

Tóalmás

35 M Ft
1 szoba
36 m2
Eladó családi ház
Eladó családi ház

Nyáregyháza

67 M Ft
3 szoba
74 m2
Eladó családi ház
Eladó családi ház

Katymár

6.7 M Ft
4 szoba
136 m2
Eladó családi ház
Eladó családi ház

Kocsér

19.9 M Ft
1 + 2 szoba
73 m2
Eladó családi ház
Eladó családi ház

Csemő

25.9 M Ft
2 szoba
69 m2
Eladó családi ház
Eladó családi ház

Bátya

52.9 M Ft
3 szoba
160 m2
Eladó családi ház
Eladó családi ház

Csemő

79.8 M Ft
2 szoba
88 m2
Eladó családi ház
Eladó családi ház

Segesd

14.3 M Ft
3 szoba
100 m2