Kedves Felhasználónk! Rendszerfrissítés miatt az oldalunk 2026. február 9-én 12 órától várhatóan 20 óráig nem lesz elérhető. Köszönjük megértésed!
City Pearl

Eladó ikerház
Dabas

+ 17 kép 1/20
40 000 000 Ft40 M Ft 476 190 Ft/m2
4 szoba
84 m2
építés éve:2025

Részletes adatok

Telekméret: 369 m2
Fűtés: Gázkazán
Energetikai besorolás: Nem adta meg a hirdető

Az OTP Bank lakáshitel ajánlataFizetett hirdetés

+36 20 466
Kaszap Melinda
referens

Érdekel az OTP Bank kedvezményes lakáshitel ajánlata? *

* A kérdésre „Igen” válasz bejelölése esetén, az „Üzenet küldése” gombra kattintva kijelentem, hogy az OTP Bank Nyrt. Adatkezelési tájékoztatójának tartalmát megismertem és tudomásul vettem.

Eladó ikerház leírása

Kedves Érdeklődő!

Megvételre kínálunk Dabas-Sáriban,pár percre az 5-ös úttól, nyugodt,csendes környezetben egy jelenleg szerkezetkész ikerház felet.
Dabas jelentős intézményhálózatot tart fenn, hogy színvonalas szolgáltatást biztosítson, az oktatás, az egészségügy, a kultúra, a közösségi élet területén. A településen több, máig fennmaradt nemesi lakóház található,melyek miatt méltán nevezik Dabast a kúriák városának.Dabason minden megtalálható,ami a pihenéshez,sportoláshoz,szabadidő eltöltéshez és a mindennapi élethez szükséges.

Az ingatlan egybe és külön is megvásárolható,igény esetén akár kulcsrakészen is.

Az építkezés előrehaladásáról folyamatosan töltöm fel a képeket.Az alaprajzhoz  és a műszaki leíráshoz is hozzáférést biztosítok.
Az első képen a látványterv látható,a többi a jelenlegi állapotot tükrözi.
Szaniterek, burkolatok, beltéri ajtók, most még igény szerint választhatók. Egyedi kívánságok, módosítások az építkezés készenléti állapotától függően, a megrendelő költségére kivitelezhetők.
A ház fűtéséről kondenzációs gázkazán gondoskodik majd.
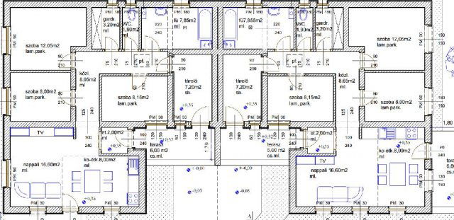
Helyiség méretek:
konya-étkező  8 nm
1.szoba          12 nm
2.szoba            8 nm
3.szoba           8 nm
nappali         16 nm
gardrób            3 nm
wc                   2 nm
fürdő                8 nm
tároló              7 nm
közlekedő      8 nm
előtér            2 nm
terasz         6 nm

Az OTP Ingatlanpont, mint egyetlen közvetlen banki hátterű ingatlanközvetítő társaság teljes körű ügyintézéssel áll az eladók és a vevők rendelkezésére! A kínálatunkból választott ingatlan finanszírozásához minősített fogyasztóbarát, piaci és kedvezményes hitel- és lízingkonstrukciókat kínálunk (Otthon Start Hitelprogram,lakásvásárlási hitel, CSOK plusz, szabad felhasználású hitel, babaváró hitel, céges hitelek, pályázatok). Az adásvételi szerződés megkötéséhez igény szerint megbízható ügyvédi közreműködést biztosítunk, és segítséget nyújtunk az adásvételhez kapcsolódó egyéb ügyek intézéséhez.
Ha az új ingatlana megvásárlásához a jelenlegi ingatlanát el kell adnia, abban is szívesen segítünk.

Hirdetés feltöltve: 2025. 11. 06. Utoljára módosítva: 2026. 01. 29.

4 szobás ikerházak ára Dabason

Ebből az összehasonlításból megtudhatod, hogyan viszonyul a lakás ára a környékbeli ikerházak átlagos árához. Ez nem azt jelenti, hogy ennyivel olcsóbb vagy drágább, mint amennyit a lakás ér, hanem hogy ennyivel tér el a környékbeli átlagtól.

Ennek a m² ára
Dabas m² ár
476 e Ft
907 e Ft 48%
Ennek az ára
Dabas átlagár
40 M Ft m Ft
80.2 m Ft 50%

Az ingatlan elhelyezkedése

Cím: Dabas

Eladó ikerházak a környékről

Eladó ikerház
Eladó ikerház

Dabas

79 M Ft
4 szoba
83 m2
Eladó ikerház
Eladó ikerház

Vác

96.7 M Ft
4 + 1 szoba
126 m2
Eladó ikerház
Eladó ikerház

Vác

149.9 M Ft
5 szoba
202 m2
Eladó ikerház
Eladó ikerház

Pusztazámor

55 M Ft
10 szoba
470 m2
Eladó ikerház
Eladó ikerház

Dabas

74 M Ft
4 szoba
84 m2
Eladó ikerház
Eladó ikerház

Dabas

77 M Ft
4 szoba
83 m2
Eladó ikerház
Eladó ikerház

Dabas

77 M Ft
4 szoba
83 m2
Eladó ikerház
Eladó ikerház

Pilisjászfalu

82.279 M Ft
4 szoba
73 m2
Eladó ikerház
Eladó ikerház

Dabas

74 M Ft
4 szoba
84 m2
Eladó ikerház
Eladó ikerház

Dabas

79 M Ft
4 szoba
84 m2
Eladó ikerház
Eladó ikerház

Érd

177.7 M Ft
7 szoba
181 m2
Eladó ikerház
Eladó ikerház

Dabas

99.99 M Ft
5 szoba
93 m2
Eladó ikerház
Eladó ikerház

Szentendre

359 M Ft
5 + 1 szoba
289 m2
Eladó ikerház
Eladó ikerház

Kiskunlacháza

41 M Ft
2 szoba
39 m2
Eladó ikerház
Eladó ikerház

Dabas

77 M Ft
4 szoba
83 m2
Eladó ikerház
Eladó ikerház

Dabas

79.9 M Ft
4 szoba
120 m2
Eladó ikerház
Eladó ikerház

Pécel

149.9 M Ft
5 szoba
306 m2
Eladó ikerház
Eladó ikerház

Veresegyház

145 M Ft
4 szoba
120 m2
Eladó ikerház
Eladó ikerház

Dabas

80 M Ft
3 + 1 szoba
83 m2
Eladó ikerház
Eladó ikerház

Dabas

80 M Ft
4 szoba
84 m2
Eladó ikerház
Eladó ikerház

Vácrátót

99.9 M Ft
3 + 2 szoba
112 m2
Eladó ikerház
Eladó ikerház

Dabas

79.9 M Ft
4 szoba
120 m2
Eladó ikerház
Eladó ikerház

Dabas

80 M Ft
4 szoba
84 m2
Eladó ikerház
Eladó ikerház

Vác

99.7 M Ft
4 + 1 szoba
129 m2

Falusi CSOK ingatlanok

Eladó családi ház
Eladó családi ház

Gátér, Dózsa György utca 43

21.62 M Ft
1 + 1 szoba
153 m2
Eladó családi ház
Eladó családi ház

Sumony

19 M Ft
4 szoba
120 m2
Eladó téglalakás
Eladó téglalakás

Balatonszemes

119.9 M Ft
2 szoba
81 m2
Eladó családi ház
Eladó családi ház

Beremend, 7827 Beremend, Petőfi Sándor utca 10

11.95 M Ft
1 + 1 szoba
124 m2
Eladó családi ház
Eladó családi ház

Recsk

23 M Ft
3 szoba
98 m2
Eladó családi ház
Eladó családi ház

Háromfa, Kossuth

22.4 M Ft
139 m2
Eladó családi ház
Eladó családi ház

Szakmár

12.9 M Ft
3 + 1 szoba
90 m2
Eladó családi ház
Eladó családi ház

Marcaltő

26 M Ft
3 szoba
103 m2