Eladó ikerház
Cegléd

+ 3 kép 1/6
54 800 000 Ft54.8 M Ft 660 241 Ft/m2
4 szoba
83 m2
építés éve:2025

Részletes adatok

Telekméret: 458 m2
Fűtés: Egyéb
Energetikai besorolás: Nem adta meg a hirdető

Az OTP Bank lakáshitel ajánlataFizetett hirdetés

3653999328
Kiszel Éva
referens

Érdekel az OTP Bank kedvezményes lakáshitel ajánlata? *

* A kérdésre „Igen” válasz bejelölése esetén, az „Üzenet küldése” gombra kattintva kijelentem, hogy az OTP Bank Nyrt. Adatkezelési tájékoztatójának tartalmát megismertem és tudomásul vettem.

Eladó ikerház leírása

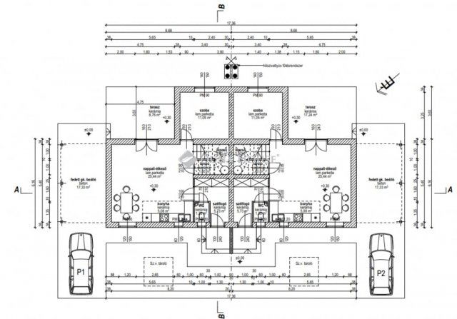
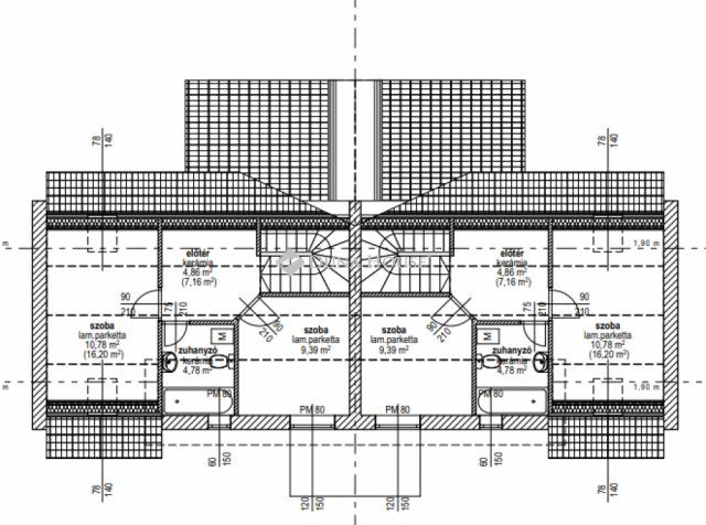
Megvételre kínálunk Cegléden egy 83,3 m2-es újépítésű, önálló-saját kertrésszel rendelkező ikerházfelet.Az épület beton alapra, VIABLOKK téglából, 3 rétegű műanyag nyílászárókkal, beton födémmel, fa tetőszerkezettel és cserépfedéssel épül.Az épület fűtését hőszivattyús rendszer biztosítja, padlófűtésen keresztül.Helyiségeket tekintve kialakításra kerül a(z)földszinten: teraszkapcsolatos amerikai-konyhás nappali, egy hálószoba, előtér, WC, és egy tároló a lépcső alatt.emeleten: 2 darab hálószoba, előtér, fürdő WC-vel.Hideg/meleg burkolatok 6.000 HUF/m2-ig,beltéri ajtók 70.000 HUF/darab-ig,belső falszínek jelenleg még választhatók.A telek mérete kb. 458 m2, melyen ehhez a lakáshoz, egy 17,33 m2-es fedett autóbeálló is létesítésre kerül.Várható átadás időpontja: 2025.12.A KIVITELEZŐ A KÖRNYÉKEN SZÁMOS REFERENCIA MUNKÁVAL RENDELKEZIK, MELYEKET SZÍVESEN BEMUTATUNK AZ ÉRDEKLŐDŐKNEK!Ajánlatom megfelelne az elvárásainak, de nem rendelkezik a kiválasztott ingatlan teljes vételárával?A Credipass munkatársai kötelezettség nélkül állnak rendelkezésére.Hiteltanácsadónk DÍJMENTES. Hétvégén is várom megtisztelő hívását!

Hirdetés feltöltve: 2025. 09. 17. Utoljára módosítva: 2025. 09. 19.

4 szobás ikerházak ára Cegléden

Ebből az összehasonlításból megtudhatod, hogyan viszonyul a lakás ára a környékbeli ikerházak átlagos árához. Ez nem azt jelenti, hogy ennyivel olcsóbb vagy drágább, mint amennyit a lakás ér, hanem hogy ennyivel tér el a környékbeli átlagtól.

Ennek a m² ára
Cegléd m² ár
660 e Ft
836 e Ft 21%
Ennek az ára
Cegléd átlagár
54.8 M Ft m Ft
59.6 m Ft 8%

Az ingatlan elhelyezkedése

Cím: Cegléd

Eladó ingatlanok a környékről

Eladó ikerház
Eladó ikerház

Pusztazámor

55 M Ft
10 szoba
470 m2
Eladó ikerház
Eladó ikerház

Vác

149.9 M Ft
5 szoba
202 m2
Eladó ikerház
Eladó ikerház

Cegléd

48.9 M Ft
3 szoba
72 m2
Eladó ikerház
Eladó ikerház

Üröm

249.9 M Ft
4 szoba
154 m2
Eladó ikerház
Eladó ikerház

Szentendre

359 M Ft
5 szoba
289 m2
Eladó ikerház
Eladó ikerház

Szentendre

179 M Ft
5 + 1 szoba
147 m2
Eladó ikerház
Eladó ikerház

Vác

175.356 M Ft
5 szoba
165 m2
Eladó ikerház
Eladó ikerház

Cegléd

63.5 M Ft
4 szoba
72 m2
Eladó ikerház
Eladó ikerház

Dunakeszi

149 M Ft
1 + 4 szoba
127 m2
Eladó ikerház
Eladó ikerház

Cegléd, Keleti kertváros, Akácos utca

15 M Ft
1 szoba
46 m2
Eladó ikerház
Eladó ikerház

Cegléd

63.5 M Ft
4 szoba
72 m2
Eladó ikerház
Eladó ikerház

Cegléd

53.5 M Ft
4 szoba
68 m2
Eladó ikerház
Eladó ikerház

Pécel

149.9 M Ft
5 szoba
306 m2
Eladó ikerház
Eladó ikerház

Vác

92.9 M Ft
4 + 1 szoba
126 m2
Eladó ikerház
Eladó ikerház

Cegléd

63.5 M Ft
4 szoba
72 m2
Eladó ikerház
Eladó ikerház

Érd, Érdliget - Kutyavár, Érdligeten található utca

64.9 M Ft
4 szoba
112 m2
Eladó téglalakás
Eladó téglalakás

Pilisszentiván

105 M Ft
4 szoba
125 m2
Eladó ikerház
Eladó ikerház

Cegléd

54.8 M Ft
4 szoba
83 m2
Eladó ikerház
Eladó ikerház

Dunaharaszti

124.999 M Ft
4 szoba
105 m2
Eladó ikerház
Eladó ikerház

Cegléd

53.5 M Ft
4 szoba
68 m2
Eladó téglalakás
Eladó téglalakás

Szentendre

69.9 M Ft
2 szoba
47 m2
Eladó ikerház
Eladó ikerház

Pilisjászfalu

70.563 M Ft
4 szoba
61 m2
Eladó ikerház
Eladó ikerház

Cegléd

59.9 M Ft
2 szoba
71 m2
Eladó ikerház
Eladó ikerház

Cegléd

59.9 M Ft
2 szoba
71 m2

Falusi CSOK ingatlanok

Eladó családi ház
Eladó családi ház

Lázi

18.9 M Ft
2 szoba
74 m2
Eladó családi ház
Eladó családi ház

Vének

24.9 M Ft
2 + 1 szoba
95 m2
Eladó ikerház
Eladó ikerház

Besnyő

79.6 M Ft
5 szoba
117 m2
Eladó családi ház
Eladó családi ház

Sárosd

34 M Ft
3 + 2 szoba
95 m2
Eladó családi ház
Eladó családi ház

Badacsonytomaj

199.8 M Ft
3 szoba
166 m2
Eladó családi ház
Eladó családi ház

Tihany

210 M Ft
3 szoba
112 m2
Eladó családi ház
Eladó családi ház

Úrkút, Temető utca

99 M Ft
7 szoba
540 m2
Eladó családi ház
Eladó családi ház

Cece

23.5 M Ft
2 szoba
56 m2