Aerogate Homes

Eladó ikerház
Budapest, XVIII. kerület

+ 12 kép 1/15
199 999 000 Ft199.999 M Ft 934 575 Ft/m2
4 szoba
214 m²
építés éve:2026

Részletes adatok

Telekméret: 200 m2
Fűtés: Egyéb
Energetikai besorolás: Nem adta meg a hirdető

Az OTP Bank lakáshitel ajánlataFizetett hirdetés

3629998835
Gerőcs Krisztina
referens

Érdekel az OTP Bank kedvezményes lakáshitel ajánlata? *

* A kérdésre „Igen” válasz bejelölése esetén, az „Üzenet küldése” gombra kattintva kijelentem, hogy az OTP Bank Nyrt. Adatkezelési tájékoztatójának tartalmát megismertem és tudomásul vettem.

Eladó ikerház leírása

Budapest XVIII. kerületének egyik legkeresettebb részén, a Péterhalmi erdő szomszédságában épül ez a kétlakásos, háromszintes, A+ energetikájú otthon, amelyből mindössze egy bal és egy jobb ikerfél készül. A 2026-os átadás miatt most még minden részlet személyre szabható.

Ez az a pillanat, amikor még bele lehet nyúlni a burkolatokba, színekbe, kialakításokba – később már nem.

---

## Főbb adatok:

– 214 m²-es alapterület
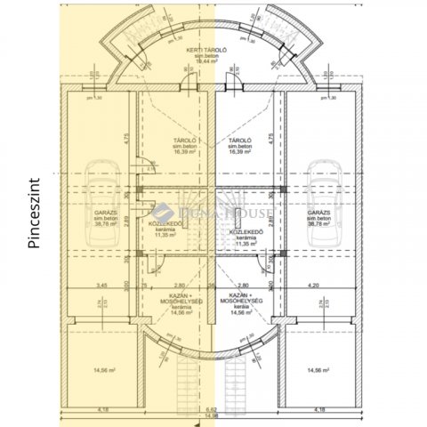
– pinceszint: 104 m²
– 1. szint: 75,5 m²
– 2. szint: 35 m²
– hozzá tartozó telekterület: kb. 200 m²

---

## Háromszintes elrendezés:

– pinceszint (garázs + tárolók + gépészet)
– 1. szint (nappali, konyha, étkező, szobák)
– 2. szint (szoba, gardrób)
– plusz további tetőtér még beépíthető

---

## A+ energetika – műszaki leírás szerint:

– 40 cm tetőszigetelés
– hőszivattyús fűtés
– padlófűtés mindhárom szinten
– 3 db hűtő-fűtő klíma
– H-tarifás villanyóra

---

## Prémium szerkezetek és anyagok:

– 30 cm NF főfalak
– betonfödém
– Terrán cserépfedés
– 6 légkamrás műanyag nyílászárók 1.0 üvegezéssel
– elektromos redőnyök
– elektromos garázskapu

---

## Miért különleges?

A pinceszint miatt ez az ingatlan eltér a mai újépítésű ikerházaktól:

– teljes értékűen szigetelt
– gépi vakolt falakkal
– 10 cm lépésálló hőszigeteléssel
– simított betonpadlóval készül

Nem csak egy garázs, hanem egy komplett funkcionális szint.

---

## Fürdők, konyha, belső terek – még te döntesz:

– 100.000 Ft-ig választható zuhanyrendszer
– 100.000 Ft-ig választható mosdószekrény
– 150.000 Ft-ig választható falba épített WC szett
– 10.000 Ft/m²-ig választható hidegburkolat
– 10.000 Ft/m²-ig választható laminált padló

Ez azt jelenti, hogy most még saját ízlés szerint alakítható, kompromisszumok nélkül.

---

## Kert és környezet:

– viacolor kocsibeálló
– viacolor járda
– elektromos kétszárnyú nagykapu
– 3D táblás elválasztókerítés

---

## Környezet:

A környék egyszerre nyugodt és élhető, mégis minden fontos szolgáltatás pár percen belül elérhető.

Tömegközlekedés: 166, 182, 266, 282E, 950-es buszok és az 50-es villamos, amely gyors kapcsolatot ad a metróhoz.

Autóval könnyen elérhető:
– M0
– M5
– Gyömrői út
– repülőtér

---

Várható átadás: 2026 IV. negyedév
Megbízható kivitelező, referenciamunkákkal.
Érdeklődni: Gerőcs Krisztina + 36204529828
E-mail : gerocs.krisztina@dh.hu

Referencia szám: HZ083151

Hirdetés feltöltve: 2026. 04. 21.

4 szobás ikerházak ára Budapesten

Ebből az összehasonlításból megtudhatod, hogyan viszonyul a lakás ára a környékbeli ikerházak átlagos árához. Ez nem azt jelenti, hogy ennyivel olcsóbb vagy drágább, mint amennyit a lakás ér, hanem hogy ennyivel tér el a környékbeli átlagtól.

Ennek a m² ára
XVIII. kerület m² ár
Budapest m² ár
935 e Ft
927 e Ft -1%
1184 e Ft 21%
Ennek az ára
XVIII. kerület átlagár
Budapest átlagár
199.999 M Ft m Ft
132.4 m Ft -51%
170.1 m Ft -18%

Az ingatlan elhelyezkedése

Cím: Budapest, XVIII. kerület

Eladó ingatlanok a környékről

IV. kerület
Eladó panellakás

Budapest, IV. kerület

67.9 M Ft
3 szoba
56 m²
XVIII. kerület
Eladó ikerház

Budapest, XVIII. kerület

99.9 M Ft
4 szoba
110 m²
XVI. kerület, Cinkota, Rákospalotai határút
Eladó panellakás

Budapest, XVI. kerület

94.9 M Ft
3 + 1 szoba
81 m²
VII. kerület, Külső Erzsébetváros, Károly körút
Eladó téglalakás

Budapest, VII. kerület

149 M Ft
4 szoba
78 m²
XVIII. kerület
Eladó ikerház

Budapest, XVIII. kerület

49.9 M Ft
2 szoba
40 m²
XVIII. kerület
Eladó ikerház

Budapest, XVIII. kerület

125 M Ft
7 szoba
270 m²
XII. kerület, Svábhegy, Hajnóczy József utca
Eladó téglalakás

Budapest, XII. kerület

139 M Ft
3 szoba
78 m²
XVIII. kerület
Eladó ikerház

Budapest, XVIII. kerület

149.9 M Ft
5 szoba
137 m²
XVIII. kerület
Eladó ikerház

Budapest, XVIII. kerület

147.5 M Ft
4 szoba
120 m²
XVIII. kerület
Eladó ikerház

Budapest, XVIII. kerület

154.9 M Ft
5 szoba
134 m²
XIV. kerület
Eladó panellakás

Budapest, XIV. kerület

64.9 M Ft
2 szoba
50 m²
XVIII. kerület
Eladó ikerház

Budapest, XVIII. kerület

154.9 M Ft
5 szoba
134 m²
XVIII. kerület
Eladó ikerház

Budapest, XVIII. kerület

149.9 M Ft
5 szoba
137 m²
XIV. kerület
Eladó téglalakás

Budapest, XIV. kerület

134.9 M Ft
3 szoba
75 m²
XIX. kerület, Kispest, Kisfaludy utca
Eladó panellakás

Budapest, XIX. kerület

58 M Ft
3 szoba
53 m²
XVIII. kerület
Eladó ikerház

Budapest, XVIII. kerület

149.9 M Ft
5 szoba
137 m²
XVII. kerület
Eladó ipari ingatlan

Budapest, XVII. kerület

89.9 M Ft
1049 m²
150 m²
XVIII. kerület
Eladó ikerház

Budapest, XVIII. kerület

197 M Ft
5 szoba
207 m²
XVIII. kerület
Eladó ikerház

Budapest, XVIII. kerület

99.9 M Ft
4 szoba
110 m²
XIII. kerület
Eladó téglalakás

Budapest, XIII. kerület

64.9 M Ft
1 + 1 szoba
45 m²
XVIII. kerület
Eladó ikerház

Budapest, XVIII. kerület

149.9 M Ft
5 szoba
136 m²
XIV. kerület, Rákosfalva, Ond vezér útja
Eladó téglalakás

Budapest, XIV. kerület

81.6 M Ft
3 szoba
68 m²
VII. kerület
Eladó téglalakás

Budapest, VII. kerület

58 M Ft
1 szoba
39 m²
XX. kerület
Eladó üzlethelyiség

Budapest, XX. kerület

12.5 M Ft
12 m²

Falusi CSOK ingatlanok

Mezőkeresztes
Eladó ikerház

Mezőkeresztes

13.5 M Ft
2 + 1 szoba
70 m²
Cece
Eladó családi ház

Cece

44.9 M Ft
4 szoba
103 m²
Pálfa
Eladó családi ház

Pálfa

26.99 M Ft
3 szoba
90 m²
Villány
Eladó családi ház

Villány

31 M Ft
1 szoba
35 m²
Pócsa
Eladó családi ház

Pócsa

29.9 M Ft
4 szoba
113 m²
Balatonudvari
Eladó családi ház

Balatonudvari

240 M Ft
9 szoba
260 m²
Sárosd
Eladó családi ház

Sárosd

21.9 M Ft
3 szoba
86 m²
Tápiószőlős
Eladó családi ház

Tápiószőlős

9.5 M Ft
2 szoba
46 m²