River Life

Eladó ikerház
Budapest, XVIII. kerület, Szemeretelep

+ 6 kép 1/9
109 000 000 Ft109 M Ft 1 123 711 Ft/m2
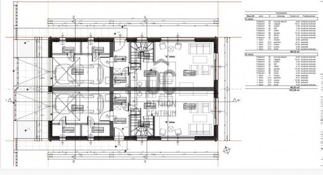
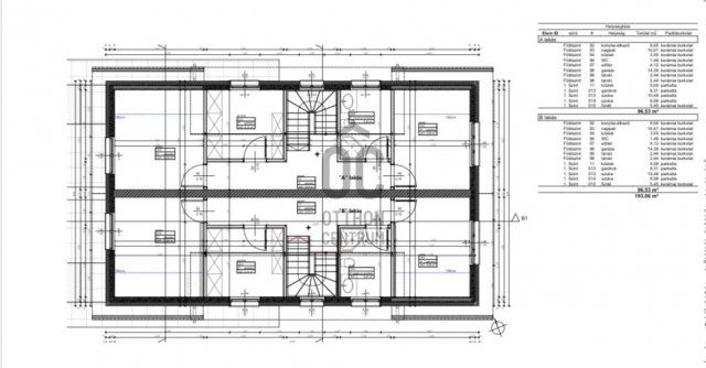
3 szoba
97 m²
építés éve:2026

Részletes adatok

Telekméret: 217 m2
Fűtés: Egyéb
Közmű: Villany, Csatorna
Energetikai besorolás: Nem adta meg a hirdető

Az OTP Bank lakáshitel ajánlataFizetett hirdetés

+36 70 465
Kovács Henriett
referens

Érdekel az OTP Bank kedvezményes lakáshitel ajánlata? *

* A kérdésre „Igen” válasz bejelölése esetén, az „Üzenet küldése” gombra kattintva kijelentem, hogy az OTP Bank Nyrt. Adatkezelési tájékoztatójának tartalmát megismertem és tudomásul vettem.

Eladó ikerház leírása

Eladásra kínálunk egy 97 nm-es ikerházat.

A kivitelező magas minőségű luxus ingatlanok kivitelezésével foglalkozik több mint 25 éve.
Természetesen referenciákat is be tudunk mutatni.

Házak építésénél figyelembe vették a jó hőszigetelést, ezért a falazatok 20 cm vastag hőszigetelési rendszerben épültek.
Mivel ikerházról beszélünk, ezért a lakások közötti falat a piacon kapható egyik legjobb hangátló téglával készülnek!

A műanyag nyílászárókat hangátló üvegezéssel, beépített elektromos redőny és szúnyogháló funkciókkal rendelték.
Energia ellátást hőszivattyúk biztosítják a mai kornak megfelelően napelem rendszerrel kiegészítve.

Céljuk a modern, energia hatékony otthon kivitelezése.
Modern burkolatok, belső nyílászárók, és felszerelt konyha része az ingatlannak.

Amennyiben felkeltette érdeklődését kérem hívjon ,ne haddja ki!

Hirdetés feltöltve: 2026. 02. 14.

3 szobás ikerházak ára Budapesten

Ebből az összehasonlításból megtudhatod, hogyan viszonyul a lakás ára a környékbeli ikerházak átlagos árához. Ez nem azt jelenti, hogy ennyivel olcsóbb vagy drágább, mint amennyit a lakás ér, hanem hogy ennyivel tér el a környékbeli átlagtól.

Ennek a m² ára
XVIII. kerület m² ár
Budapest m² ár
1124 e Ft
962 e Ft -17%
1090 e Ft -3%
Ennek az ára
XVIII. kerület átlagár
Budapest átlagár
109 M Ft m Ft
96.3 m Ft -13%
109 m Ft 0%

Az ingatlan elhelyezkedése

Cím: Budapest, XVIII. kerület, Szemeretelep

Eladó ingatlanok a környékről

XVIII. kerület
Eladó ikerház

Budapest, XVIII. kerület

131.9 M Ft
5 szoba
140 m²
XVIII. kerület, Újpéteritelep
Eladó ikerház

Budapest, XVIII. kerület

119.9 M Ft
5 szoba
144 m²
XVIII. kerület, Ganzkertváros
Eladó ikerház

Budapest, XVIII. kerület

159 M Ft
5 szoba
134 m²
XVIII. kerület, Almáskert
Eladó ikerház

Budapest, XVIII. kerület

149.9 M Ft
5 szoba
137 m²
XVIII. kerület
Eladó ikerház

Budapest, XVIII. kerület

135 M Ft
5 szoba
140 m²
VIII. kerület, Palotanegyed, Rákóczi út
Eladó téglalakás

Budapest, VIII. kerület

180 M Ft
5 szoba
121 m²
XVIII. kerület
Eladó ikerház

Budapest, XVIII. kerület

129.9 M Ft
5 szoba
152 m²
XVIII. kerület, Erzsébettelep
Eladó ikerház

Budapest, XVIII. kerület

74.5 M Ft
4 szoba
110 m²
XI. kerület, Lágymányos, Móricz Zsigmond körtér
Eladó téglalakás

Budapest, XI. kerület

89.5 M Ft
2 szoba
52 m²
XXII. kerület, Budafok, Baross utca
Eladó családi ház

Budapest, XXII. kerület

222 M Ft
6 + 1 szoba
200 m²
XVIII. kerület, Ganzkertváros
Eladó ikerház

Budapest, XVIII. kerület

159 M Ft
5 szoba
134 m²
XVIII. kerület
Eladó ikerház

Budapest, XVIII. kerület

99.9 M Ft
4 szoba
110 m²
XVIII. kerület
Eladó ikerház

Budapest, XVIII. kerület

139.9 M Ft
4 + 1 szoba
140 m²
V. kerület, Belváros, Petőfi Sándor utca
Eladó téglalakás

Budapest, V. kerület

134 M Ft
2 szoba
59 m²
VII. kerület
Eladó téglalakás

Budapest, VII. kerület

45 M Ft
1 szoba
26 m²
XIII. kerület, Angyalföld, Fiastyúk utca
Eladó téglalakás

Budapest, XIII. kerület

39.9 M Ft
1 + 1 szoba
34 m²
XVIII. kerület, Gloriett-telep, Sólyom utca
Eladó ikerház

Budapest, XVIII. kerület

99.9 M Ft
4 szoba
110 m²
XVIII. kerület
Eladó ikerház

Budapest, XVIII. kerület

99.9 M Ft
4 szoba
110 m²
XVII. kerület, Rákoskeresztúr
Eladó téglalakás

Budapest, XVII. kerület

76.9 M Ft
2 + 1 szoba
76 m²
X. kerület, Gyárdűlő, Szállás utca
Eladó téglalakás

Budapest, X. kerület

51 M Ft
1 szoba
39 m²
VII. kerület
Eladó téglalakás

Budapest, VII. kerület

93 M Ft
3 szoba
84 m²
VI. kerület, Belső Terézváros, Jókai utca
Eladó téglalakás

Budapest, VI. kerület

87.6 M Ft
3 szoba
75 m²
XVIII. kerület
Eladó ikerház

Budapest, XVIII. kerület

129.9 M Ft
5 szoba
143 m²
XVIII. kerület
Eladó ikerház

Budapest, XVIII. kerület

74.5 M Ft
4 szoba
110 m²

Falusi CSOK ingatlanok

Villány
Eladó családi ház

Villány

27 M Ft
7 szoba
131 m²
Újszilvás
Eladó családi ház

Újszilvás

38 M Ft
3 szoba
100 m²
Balatonszemes
Eladó téglalakás

Balatonszemes

125.2 M Ft
2 szoba
50 m²
Csátalja, Táncsics Mihály utca 2
Eladó családi ház

Csátalja

28 M Ft
3 szoba
100 m²
Simontornya
Eladó családi ház

Simontornya

26 M Ft
3 szoba
60 m²
Balatonakali
Eladó ikerház

Balatonakali

370 M Ft
4 szoba
140 m²
Kisdér
Eladó családi ház

Kisdér

142.5 M Ft
4 szoba
205 m²
Gönyű
Eladó családi ház

Gönyű

111.951 M Ft
5 szoba
105 m²