NapForrás 20 - Buda

Eladó ikerház
Budapest, XVIII. kerület

1/2
159 900 000 Ft159.9 M Ft 980 982 Ft/m2
5 szoba
163 m²
építés éve:2025

Részletes adatok

Telekméret: 658 m2
Fűtés: Egyéb
Energetikai besorolás: Nem adta meg a hirdető

Az OTP Bank lakáshitel ajánlataFizetett hirdetés

3637815008
Papp Gergely
referens

Érdekel az OTP Bank kedvezményes lakáshitel ajánlata? *

* A kérdésre „Igen” válasz bejelölése esetén, az „Üzenet küldése” gombra kattintva kijelentem, hogy az OTP Bank Nyrt. Adatkezelési tájékoztatójának tartalmát megismertem és tudomásul vettem.

Eladó ikerház leírása

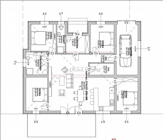
18.kerület legkedveltebb részén AlmáskertbenAlmáskertben modern környezetben eladó új építésű egyszintes önálló családi ház..A kivitelező sok éves múlttal és rengeteg elégedett ügyféllel rendelkezik, referenciák akár itt a lakóparkban is megtekinthetőek.163 négyzetméter hasznos lakótérrel rendelkezik, mely egy 660 négyzetméteres telken fekszik. Nappali+4hálószobával rendelkezik, a szobák minimum 12 négyzetméteresek. Az 56 négyzetméteres tágas nappaliból egy privát teraszon keresztül juthatunk ki a csodás kertünkbe.Autóval garázsban és az udvaron is lehet parkolni.Műszaki adatok:-30-as Prototherm tégla falazat-15 cm-es homlokzati szigetelés-29 cm-es szigetelés az aljzat felől-35 cm-es szigetelés a födém felől-3 rétegű műanyag nyílászárók, kívül antracit, belül fehér színnel-a tető szerkezete fafödém cserépfedéssel-elektromos garázskapu-elektromos kertikapu-Hőszivattyús fűtés, padlófűtéssel-1db hűtő-fűtő klíma-riasztó és kamerarendszer-térkövezett autóbeálló-2 fürdőszoba-mosókonyhaBurkolatok/beltéri ajtók/szaniterek még választhatóak.Átadás 2026. III. negyedévében.A lakópark teljesen új modern környezet, összetartó közösség jellemzi. Közlekedést tekintve autóval a Gyorsforgalmi út, Üllői út, Gyömrői út az M0-ás, M5-ös és a 4-es út mind-mind maximum 5 perc alatt megközelíthető.Tömegközlekedés 3 perc sétára, ahonnan a buszok Kőbánya Kispest vasútállomásig, illetve Határ úti metrómegálló, Ferihegyi vasútállomás is megközelíthető. 10 perc busz távolságra Ferihegyi vasútállomás, melyről a Nyugati pályaudvarig közlekedhetünk. Séta távolságra: Gyógyszertár, Spar, Iskola, Óvoda, PostaFelkeltette érdeklődését keressen bizalommal a hét bármely napján!

Referencia szám: HZ072154

Hirdetés feltöltve: 2025. 12. 27. Utoljára módosítva: 2026. 03. 21.

5 szobás ikerházak ára Budapesten

Ebből az összehasonlításból megtudhatod, hogyan viszonyul a lakás ára a környékbeli ikerházak átlagos árához. Ez nem azt jelenti, hogy ennyivel olcsóbb vagy drágább, mint amennyit a lakás ér, hanem hogy ennyivel tér el a környékbeli átlagtól.

Ennek a m² ára
XVIII. kerület m² ár
Budapest m² ár
981 e Ft
1019 e Ft 4%
1198 e Ft 18%
Ennek az ára
XVIII. kerület átlagár
Budapest átlagár
159.9 M Ft m Ft
140.4 m Ft -14%
212.2 m Ft 25%

Az ingatlan elhelyezkedése

Cím: Budapest, XVIII. kerület

Eladó ingatlanok a környékről

XVIII. kerület
Eladó ikerház

Budapest, XVIII. kerület

74.5 M Ft
4 szoba
110 m²
II. kerület
Eladó téglalakás

Budapest, II. kerület

63 M Ft
2 szoba
31 m²
XVII. kerület
Eladó téglalakás

Budapest, XVII. kerület

139 M Ft
4 szoba
120 m²
XVIII. kerület, Erzsébettelep
Eladó ikerház

Budapest, XVIII. kerület

74.5 M Ft
4 szoba
110 m²
VII. kerület
Eladó téglalakás

Budapest, VII. kerület

58 M Ft
1 szoba
39 m²
XIII. kerület, Újlipótváros, Kresz Géza
Eladó téglalakás

Budapest, XIII. kerület

59.99 M Ft
15 szoba
35 m²
III. kerület, Óbuda
Eladó téglalakás

Budapest, III. kerület

93.75 M Ft
3 szoba
62 m²
XVI. kerület
Eladó családi ház

Budapest, XVI. kerület

134.9 M Ft
5 + 1 szoba
240 m²
XVIII. kerület, Gloriett-telep, Sólyom utca
Eladó ikerház

Budapest, XVIII. kerület

49.9 M Ft
2 szoba
40 m²
XXI. kerület
Eladó panellakás

Budapest, XXI. kerület

62.5 M Ft
1 + 2 szoba
64 m²
IX. kerület
Eladó téglalakás

Budapest, IX. kerület

70 M Ft
2 szoba
69 m²
XVIII. kerület
Eladó ikerház

Budapest, XVIII. kerület

99.9 M Ft
4 szoba
110 m²
XVIII. kerület, Almáskert
Eladó ikerház

Budapest, XVIII. kerület

149.9 M Ft
5 szoba
136 m²
XVIII. kerület, Erzsébettelep
Eladó ikerház

Budapest, XVIII. kerület

122 M Ft
4 + 1 szoba
117 m²
XVIII. kerület
Eladó ikerház

Budapest, XVIII. kerület

159 M Ft
5 szoba
134 m²
XVIII. kerület, Alacskai úti lakótelep
Eladó téglalakás

Budapest, XVIII. kerület

70.9 M Ft
2 szoba
47 m²
XVIII. kerület, Belsőmajor
Eladó ikerház

Budapest, XVIII. kerület

125 M Ft
7 szoba
270 m²
XVIII. kerület
Eladó ikerház

Budapest, XVIII. kerület

129.9 M Ft
5 szoba
152 m²
XVIII. kerület, Újpéteritelep
Eladó ikerház

Budapest, XVIII. kerület

147.5 M Ft
4 szoba
120 m²
XVIII. kerület
Eladó ikerház

Budapest, XVIII. kerület

99.9 M Ft
4 szoba
110 m²
XIII. kerület
Eladó téglalakás

Budapest, XIII. kerület

85.9 M Ft
2 szoba
58 m²
II. kerület
Eladó téglalakás

Budapest, II. kerület

221 M Ft
2 szoba
84 m²
XVIII. kerület, Újpéteritelep
Eladó ikerház

Budapest, XVIII. kerület

119.9 M Ft
5 szoba
144 m²
XVIII. kerület
Eladó ikerház

Budapest, XVIII. kerület

99.9 M Ft
4 szoba
110 m²

Falusi CSOK ingatlanok

Ceglédbercel
Eladó családi ház

Ceglédbercel

66.66 M Ft
3 szoba
92 m²
Letenye
Eladó családi ház

Letenye

34.5 M Ft
4 szoba
100 m²
Kőtelek
Eladó családi ház

Kőtelek

25 M Ft
2 szoba
90 m²
Segesd
Eladó családi ház

Segesd

14.3 M Ft
3 szoba
100 m²
Újszilvás
Eladó családi ház

Újszilvás

49.9 M Ft
8 szoba
310 m²
Sávoly, Rákóczi Ferenc utca 76
Eladó családi ház

Sávoly

12.94 M Ft
2 + 1 szoba
88 m²
Somogyhárságy
Eladó családi ház

Somogyhárságy

22.9 M Ft
3 szoba
130 m²
Lengyeltóti
Eladó családi ház

Lengyeltóti

26.5 M Ft
2 szoba
85 m²