Seven Pearl

Eladó ikerház
Budapest, XVIII. kerület

1/2
149 900 000 Ft149.9 M Ft 914 024 Ft/m2
4 szoba
164 m²
építés éve:2025

Részletes adatok

Telekméret: 500 m2
Fűtés: Egyéb
Energetikai besorolás: Nem adta meg a hirdető

Az OTP Bank lakáshitel ajánlataFizetett hirdetés

+36 1 690
Tóth Beáta
referens

Érdekel az OTP Bank kedvezményes lakáshitel ajánlata? *

* A kérdésre „Igen” válasz bejelölése esetén, az „Üzenet küldése” gombra kattintva kijelentem, hogy az OTP Bank Nyrt. Adatkezelési tájékoztatójának tartalmát megismertem és tudomásul vettem.

Eladó ikerház leírása

18.kerület legkedveltebb részén Almáskertben

Almáskertben modern környezetben eladó új építésű ikerházfél.
A kivitelező sok éves múlttal és rengeteg elégedett ügyféllel rendelkezik, referenciák akár itt a lakóparkban is megtekinthetőek.

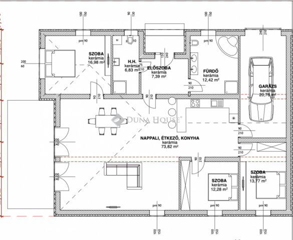
164,25 négyzetméter hasznos lakótérrel rendelkezik, mely egy 500 négyzetméteres telken fekszik. Nappali+3hálószobával rendelkezik, a szobák minimum 12 négyzetméteresek. A földszinten elhelyezkedő 73négyzetméteres nappali+amerikai konyha tágas életteret biztosít, melyből egy csodás privát teraszon keresztül juthatunk ki a saját privát kertünkbe.

Autóval garázsban és az udvaron is lehet parkolni.

Műszaki adatok:

-30-as Prototherm tégla falazat

-15 cm-es homlokzati szigetelés

-29 cm-es szigetelés az aljzat felől

-35 cm-es szigetelés a födém felől

-3 rétegű műanyag nyílászárók, fehér színnel

-a tető szerkezete fafödém cserépfedéssel

-elektromos garázskapu fehér színnel

-elektromos kertikapu

-Hőszivattyús fűtés, padlófűtéssel

-1db hűtő-fűtő klíma

-mosókonyha

-riasztó és kamerarendszer

-térkövezett autóbeálló

Burkolatok/beltéri ajtók/szaniterek még választhatóak.

A HÁZAK CSAK GARÁZZSAL ÉRINTKEZNEK!

A lakópark teljesen új modern környezet, összetartó közösség jellemzi. Közlekedést tekintve autóval a Gyorsforgalmi út, Üllői út, Gyömrői út az M0-ás, M5-ös és a 4-es út mind-mind maximum 5 perc alatt megközelíthető.

Tömegközlekedés 3 perc sétára, ahonnan a buszok Kőbánya Kispest vasútállomásig, illetve Határ úti metrómegálló, Ferihegyi vasútállomás is megközelíthető. 10 perc busz távolságra Ferihegyi vasútállomás, melyről a Nyugati pályaudvarig közlekedhetünk. Séta távolságra: Gyógyszertár, Spar, Iskola, Óvoda, Posta

Felkeltette érdeklődését keressen bizalommal a hét bármely napján!

Referencia szám: HZ094200

Hirdetés feltöltve: 2025. 10. 15. Utoljára módosítva: 2026. 01. 13.

4 szobás ikerházak ára Budapesten

Ebből az összehasonlításból megtudhatod, hogyan viszonyul a lakás ára a környékbeli ikerházak átlagos árához. Ez nem azt jelenti, hogy ennyivel olcsóbb vagy drágább, mint amennyit a lakás ér, hanem hogy ennyivel tér el a környékbeli átlagtól.

Ennek a m² ára
XVIII. kerület m² ár
Budapest m² ár
914 e Ft
1005 e Ft 9%
1195 e Ft 23%
Ennek az ára
XVIII. kerület átlagár
Budapest átlagár
149.9 M Ft m Ft
140.4 m Ft -7%
170.9 m Ft 12%

Az ingatlan elhelyezkedése

Cím: Budapest, XVIII. kerület

Eladó ingatlanok a környékről

XVIII. kerület
Eladó ikerház

Budapest, XVIII. kerület

249 M Ft
4 szoba
164 m²
VIII. kerület
Eladó téglalakás

Budapest, VIII. kerület

55.158 M Ft
1 szoba
29 m²
II. kerület, Törökvész
Eladó téglalakás

Budapest, II. kerület

129 M Ft
3 szoba
62 m²
XVIII. kerület
Eladó ikerház

Budapest, XVIII. kerület

74.5 M Ft
4 szoba
110 m²
XXI. kerület
Eladó téglalakás

Budapest, XXI. kerület

64.7 M Ft
3 szoba
64 m²
XVIII. kerület
Eladó ikerház

Budapest, XVIII. kerület

129.9 M Ft
5 szoba
152 m²
XXIII. kerület
Eladó családi ház

Budapest, XXIII. kerület

81 M Ft
5 + 1 szoba
105 m²
I. kerület, Ferenciek tere
Eladó téglalakás

Budapest, I. kerület

99 M Ft
1 szoba
61 m²
XVIII. kerület
Eladó ikerház

Budapest, XVIII. kerület

159 M Ft
5 szoba
134 m²
II. kerület, Rózsadomb
Eladó téglalakás

Budapest, II. kerület

138.5 M Ft
2 szoba
84 m²
VIII. kerület
Eladó téglalakás

Budapest, VIII. kerület

136.711 M Ft
2 szoba
68 m²
XVIII. kerület, Gloriett-telep, Sólyom utca
Eladó ikerház

Budapest, XVIII. kerület

99.9 M Ft
4 szoba
110 m²
XIII. kerület, Angyalföld, Dózsa György út 138-142
Eladó téglalakás

Budapest, XIII. kerület

47 M Ft
1 szoba
34 m²
XVIII. kerület, Erzsébettelep
Eladó ikerház

Budapest, XVIII. kerület

122 M Ft
4 + 1 szoba
117 m²
XVIII. kerület, Erzsébettelep
Eladó ikerház

Budapest, XVIII. kerület

74.5 M Ft
4 szoba
110 m²
XI. kerület
Eladó téglalakás

Budapest, XI. kerület

139.9 M Ft
1 + 2 szoba
67 m²
XVIII. kerület
Eladó ikerház

Budapest, XVIII. kerület

99.9 M Ft
4 szoba
110 m²
III. kerület
Eladó téglalakás

Budapest, III. kerület

99 M Ft
2 + 1 szoba
90 m²
XVIII. kerület, Almáskert
Eladó ikerház

Budapest, XVIII. kerület

149.9 M Ft
5 szoba
136 m²
VIII. kerület
Eladó téglalakás

Budapest, VIII. kerület

136.711 M Ft
2 szoba
68 m²
III. kerület
Eladó panellakás

Budapest, III. kerület

88 M Ft
2 + 2 szoba
66 m²
VIII. kerület
Eladó téglalakás

Budapest, VIII. kerület

111.528 M Ft
1 szoba
58 m²
II. kerület
Eladó téglalakás

Budapest, II. kerület

119.9 M Ft
3 szoba
79 m²
X. kerület
Eladó panellakás

Budapest, X. kerület

64.99 M Ft
3 szoba
68 m²

Falusi CSOK ingatlanok

Tápióbicske
Eladó családi ház

Tápióbicske

17.4 M Ft
2 szoba
84 m²
Bag
Eladó családi ház

Bag

16.9 M Ft
6 szoba
160 m²
Taszár
Eladó családi ház

Taszár

66.5 M Ft
4 szoba
142 m²
Vasboldogasszony
Eladó családi ház

Vasboldogasszony

85 M Ft
6 szoba
180 m²
Farmos
Eladó családi ház

Farmos

59.9 M Ft
4 szoba
90 m²
Bozsok
Eladó családi ház

Bozsok

290 M Ft
6 szoba
370 m²
Tiszasziget, Sziget lakópark
Eladó sorház

Tiszasziget

33.9 M Ft
2 szoba
48 m²
Szigliget
Eladó családi ház

Szigliget

299 M Ft
3 szoba
95 m²