City Pearl

Eladó ikerház
Budapest, XVII. kerület

+ 9 kép 1/12
210 000 000 Ft210 M Ft 1 105 263 Ft/m2
4 szoba
190 m²
építés éve:2025

Részletes adatok

Telekméret: 695 m2
Fűtés: Egyéb
Energetikai besorolás: A+

Az OTP Bank lakáshitel ajánlataFizetett hirdetés

+36 1 444
Zsipi Márk
referens

Érdekel az OTP Bank kedvezményes lakáshitel ajánlata? *

* A kérdésre „Igen” válasz bejelölése esetén, az „Üzenet küldése” gombra kattintva kijelentem, hogy az OTP Bank Nyrt. Adatkezelési tájékoztatójának tartalmát megismertem és tudomásul vettem.

Eladó ikerház leírása

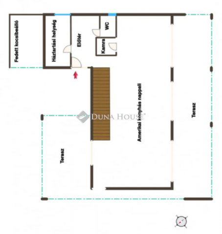
Újépítésű prémium ikerház a Szőlőliget Ökoparkban természetközeli, modern élet fiatal családoknak!Ha mindig is olyan otthonról álmodtál, ahol a modern technológia és a természet közelsége kéz a kézben jár, akkor ez a Szőlőliget Ökoparkban épülő új prémium ikerházfél neked szól!Ez a 70%-os készültségű, két szintes, közel 200 m²-es modern otthon 695 m²-es saját kerttel, két tágas, 40 m²-es terasszal, 20 m²-es erkéllyel és önálló garázzsal rendelkezik, minden adott egy kényelmes, nyugodt családi élethez.A garázs ára: 26 M Ft, az ikerházfél ára együtt: 225 M Ft.A ház elrendezése:A földszinten egy 79 m²-es, 3,2 méteres belmagasságú amerikai konyhás nappali, kamra, háztartási helyiség és vendég-WC található, közvetlen kijárattal a 40 m²-es fedett teraszra és kertbe.Az emeleten négy tágas hálószoba, két fürdőszoba, gardrób és egy 20 m²-es napfényes terasz kapott helyet.Főbb műszaki jellemzők:Falazat: 30 cm Porotherm + 15 cm hőszigetelésTető: Lindab lemezfedésNyílászárók: 3 rétegű üvegezés, elektromos alumínium redőnyFűtéshűtés: 16 kW-os levegővíz hőszivattyú, padlófűtés és mennyezethűtésSzellőzés: Wolf hővisszanyerős szellőztető rendszerExtrák: elektromos kertkapu, riasztó-előkészítés, üvegkorlátos terasz, prémium anyaghasználatBurkolatok és szaniterek még választhatók így teljesen a saját ízlésedre formálhatod új otthonodat.Miért különleges a Szőlőliget Ökopark?A Szőlőliget Ökopark prémium lakóövezet, ahol a fenntarthatóság és a közösségi szemlélet találkozik a modern építészeti megoldásokkal. Rendezett utcák, újépítésű házak, csendes és biztonságos környezet, valamint gyermekbarát közösség várja az ide költöző családokat.Ideális választás, ha...fiatal családként szeretnél nyugodt, biztonságos környezetben élni, fontos számodra a korszerű technológia és az alacsony rezsi, és olyan otthont keresel, ami értékálló befektetés is egyben.Ár: 225.000.000 Ft (garázzsal együtt)Készültség: 70% a belső kialakítás még személyre szabhatóA hirdetésben szereplő fotók között látványfotók is vannak.Ha szeretnéd megtapasztalni, milyen a modern családi élet a természet közelében,keress bizalommal, és mutatom a Szőlőliget Ökopark egyik legszebb otthonát!
Érdekődni:
Zsipi Alex Márk
+36302683047

Hirdetés feltöltve: 2025. 10. 30. Utoljára módosítva: 2026. 02. 19.

4 szobás ikerházak ára Budapesten

Ebből az összehasonlításból megtudhatod, hogyan viszonyul a lakás ára a környékbeli ikerházak átlagos árához. Ez nem azt jelenti, hogy ennyivel olcsóbb vagy drágább, mint amennyit a lakás ér, hanem hogy ennyivel tér el a környékbeli átlagtól.

Ennek a m² ára
XVII. kerület m² ár
Budapest m² ár
1105 e Ft
1113 e Ft 1%
1230 e Ft 10%
Ennek az ára
XVII. kerület átlagár
Budapest átlagár
210 M Ft m Ft
128.9 m Ft -63%
175.6 m Ft -20%

Az ingatlan elhelyezkedése

Cím: Budapest, XVII. kerület

Eladó ingatlanok a környékről

XI. kerület, Lágymányos, Móricz Zsigmond körtér
Eladó téglalakás

Budapest, XI. kerület

89.5 M Ft
2 szoba
52 m²
III. kerület, Óbuda, Szomolnok utca
Eladó téglalakás

Budapest, III. kerület

89.9 M Ft
2 + 2 szoba
96 m²
XVII. kerület, Rákoscsaba
Eladó ikerház

Budapest, XVII. kerület

144.9 M Ft
5 szoba
146 m²
XVII. kerület, Rákoscsaba, Szigetcsép utca
Eladó ikerház

Budapest, XVII. kerület

160 M Ft
5 szoba
196 m²
XIII. kerület, Angyalföld, Fiastyúk utca
Eladó téglalakás

Budapest, XIII. kerület

39.9 M Ft
1 + 1 szoba
34 m²
XVII. kerület
Eladó ikerház

Budapest, XVII. kerület

139 M Ft
6 szoba
260 m²
VIII. kerület, Palotanegyed, Rákóczi út
Eladó téglalakás

Budapest, VIII. kerület

185 M Ft
5 szoba
121 m²
XVII. kerület
Eladó ikerház

Budapest, XVII. kerület

249 M Ft
1 + 3 szoba
233 m²
XVII. kerület, Rákosliget
Eladó ikerház

Budapest, XVII. kerület

155 M Ft
4 szoba
134 m²
XVII. kerület
Eladó ikerház

Budapest, XVII. kerület

155 M Ft
4 szoba
134 m²
XVII. kerület
Eladó ikerház

Budapest, XVII. kerület

109 M Ft
4 szoba
156 m²
I. kerület, Krisztinaváros, Széna tér
Eladó téglalakás

Budapest, I. kerület

189 M Ft
4 szoba
90 m²
V. kerület, Belváros, Belgrád rakpart
Eladó téglalakás

Budapest, V. kerület

78 M Ft
1 + 1 szoba
42 m²
XVIII. kerület
Eladó ikerház

Budapest, XVIII. kerület

79.9 M Ft
4 szoba
88 m²
XVII. kerület, Rákoskeresztúr, Búbosbanka utca
Eladó ikerház

Budapest, XVII. kerület

139 M Ft
6 szoba
260 m²
XVII. kerület, Rákoskeresztúr, Kövirigó utca
Eladó ikerház

Budapest, XVII. kerület

115 M Ft
4 szoba
142 m²
XXII. kerület, Budafok, Baross utca
Eladó családi ház

Budapest, XXII. kerület

222 M Ft
6 + 1 szoba
200 m²
IV. kerület, Újpest, Kassai utca
Eladó téglalakás

Budapest, IV. kerület

81.9 M Ft
2 + 1 szoba
71 m²
XXII. kerület
Eladó ikerház

Budapest, XXII. kerület

80 M Ft
4 + 1 szoba
150 m²
I. kerület, Víziváros, Széna tér
Eladó iroda

Budapest, I. kerület

189 M Ft
4 szoba
90 m²
XVII. kerület
Eladó ikerház

Budapest, XVII. kerület

145 M Ft
4 szoba
116 m²
VI. kerület, Külső Terézváros, Szív utca
Eladó téglalakás

Budapest, VI. kerület

124.9 M Ft
3 szoba
94 m²
XVII. kerület, Rákoscsaba
Eladó ikerház

Budapest, XVII. kerület

145 M Ft
6 szoba
152 m²
VIII. kerület
Eladó téglalakás

Budapest, VIII. kerület

108.9 M Ft
3 szoba
99 m²

Falusi CSOK ingatlanok

Adásztevel
Eladó családi ház

Adásztevel

15.9 M Ft
2 szoba
91 m²
Vajszló
Eladó családi ház

Vajszló

21.49 M Ft
2 szoba
91 m²
Nagybánhegyes
Eladó családi ház

Nagybánhegyes

21.9 M Ft
4 szoba
150 m²
Nemesbőd
Eladó családi ház

Nemesbőd

87 M Ft
5 szoba
120 m²
Páka
Eladó családi ház

Páka

29.99 M Ft
3 szoba
121 m²
Ceglédbercel
Eladó családi ház

Ceglédbercel

67 M Ft
4 szoba
165 m²
Verseg
Eladó családi ház

Verseg

38 M Ft
3 szoba
83 m²
Somogyhárságy
Eladó családi ház

Somogyhárságy

22.9 M Ft
3 szoba
130 m²