Seven Pearl

Eladó ikerház
Budapest, XV. kerület

+ 9 kép 1/12
130 000 000 Ft130 M Ft 1 000 000 Ft/m2
5 szoba
130 m2
építés éve:2025

Részletes adatok

Telekméret: 720 m2
Fűtés: Gázkazán
Parkolás: Garázs
Energetikai besorolás: Nem adta meg a hirdető

Az OTP Bank lakáshitel ajánlataFizetett hirdetés

+36 20 310
Balogh Csaba
referens

Érdekel az OTP Bank kedvezményes lakáshitel ajánlata? *

* A kérdésre „Igen” válasz bejelölése esetén, az „Üzenet küldése” gombra kattintva kijelentem, hogy az OTP Bank Nyrt. Adatkezelési tájékoztatójának tartalmát megismertem és tudomásul vettem.

Eladó ikerház leírása

KIVÉTELES ADOTTSÁGÚ IKERHÁZ REFERENCIÁVAL RENDELKEZŐ BERUHÁZÓTÓL A KIÍRT ÁRON KULCSRAKÉSZEN!

XV. kerület hangulatos kertvárosában, tömegközlekedési eszközök, közintézmények és számos szolgáltatás gyűrűjében kínálok eladásra, egy kitűnő adottságú, 350 m2 -es telken elhelyezkedő, 2025-ös építésű, két szintes, dupla komfortos, magas műszaki tartalommal rendelkező ikerházat.

Pillanatnyilag a ház mindkét lakása elérhető, amik az utcáról, egymástól elszeparáltan megközelíthetőek.

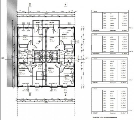
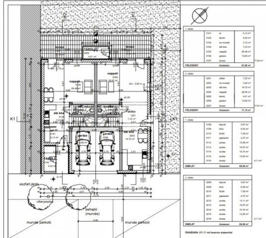
Az 1 lakás 130 m2 alapterülettel, a földszinten garázzsal,wc-vel ,amerikai konyhás-nappalival, az emeleten pedig 4 hálószobával + fürdőszobával került kialakításra.

A 2 lakás nagyobb kertkapcsolattal, 141 m2 alapterülettel, földszinten garázzsal,wc-vel ,amerikai konyhás-nappalival, az emeleten pedig 4 hálószobával + fürdőszobával került kialakításra.

A jelenlegi készültségi állapot lehető teszi, hogy a belső tartalom a vevő igényeihez legyen igazítva.
A tulajdonos a hideg és meleg burkolatokat 10 ezer, a szanitereket 400 ezer, a beltéri ajtókat 100 ezer forintos összeghatárig biztosítja, magasabb vevői igény a különbözet megfizetése után lehetséges.

Az ingatlan megtekinthető a hét bármely napján!
Várom a hívását, akár hétvégén is!

B.Cs. ...TOVÁBBI, TÖBBEZRES INGATLAN KÍNÁLAT: www.gdn-ingatlan.hu - GDN azonosító: 389333

Hirdetés feltöltve: 2025. 11. 07. Utoljára módosítva: 2025. 11. 07.

5 szobás ikerházak ára Budapesten

Ebből az összehasonlításból megtudhatod, hogyan viszonyul a lakás ára a környékbeli ikerházak átlagos árához. Ez nem azt jelenti, hogy ennyivel olcsóbb vagy drágább, mint amennyit a lakás ér, hanem hogy ennyivel tér el a környékbeli átlagtól.

Ennek a m² ára
XV. kerület m² ár
Budapest m² ár
1000 e Ft
577 e Ft -73%
1136 e Ft 12%
Ennek az ára
XV. kerület átlagár
Budapest átlagár
130 M Ft m Ft
107 m Ft -21%
200.2 m Ft 35%

Az ingatlan elhelyezkedése

Cím: Budapest, XV. kerület

Eladó ingatlanok a környékről

Eladó üzlethelyiség
Eladó üzlethelyiség

II. kerület, Országút, Margit körút

6.999 M Ft
5 m2
Eladó téglalakás
Eladó téglalakás

III. kerület, Rómaifürdő, Királyok útja

148 M Ft
3 szoba
65 m2
Eladó ikerház
Eladó ikerház

XV. kerület, Rákospalota

72.9 M Ft
3 szoba
72 m2
Eladó téglalakás
Eladó téglalakás

III. kerület, Óbuda, Szomolnok utca

89.9 M Ft
2 + 2 szoba
96 m2
Eladó panellakás
Eladó panellakás

XIII. kerület

86.9 M Ft
3 szoba
67 m2
Eladó családi ház
Eladó családi ház

XXII. kerület, Budafok, Baross utca

199 M Ft
6 + 1 szoba
200 m2
Eladó ikerház
Eladó ikerház

XV. kerület, Rákospalota, Beller Imre utca

132 M Ft
4 szoba
101 m2
Eladó téglalakás
Eladó téglalakás

VII. kerület

94 M Ft
3 szoba
83 m2
Eladó családi ház
Eladó családi ház

II. kerület

299 M Ft
7 szoba
386 m2
Eladó téglalakás
Eladó téglalakás

VII. kerület

135.9 M Ft
3 szoba
101 m2
Eladó téglalakás
Eladó téglalakás

VII. kerület, Belső Erzsébetváros, Erzsébet körút

89.9 M Ft
1 + 1 szoba
71 m2
Eladó ikerház
Eladó ikerház

XV. kerület, Pestújhely

109 M Ft
3 szoba
82 m2
Eladó ikerház
Eladó ikerház

XV. kerület, Pestújhely

285 M Ft
6 szoba
174 m2
Eladó ikerház
Eladó ikerház

XV. kerület, Pestújhely

109 M Ft
3 szoba
82 m2
Eladó ikerház
Eladó ikerház

XV. kerület, Pestújhely

189 M Ft
5 szoba
159 m2
Eladó téglalakás
Eladó téglalakás

VII. kerület, Belső Erzsébetváros, Rózsa utca

170 M Ft
5 szoba
124 m2
Eladó téglalakás
Eladó téglalakás

V. kerület, Belváros, Belgrád rakpart

78 M Ft
1 + 1 szoba
42 m2
Eladó téglalakás
Eladó téglalakás

VII. kerület, Belső Erzsébetváros, Erzsébet körút

160 M Ft
3 szoba
88 m2
Eladó családi ház
Eladó családi ház

XVIII. kerület

234.5 M Ft
10 szoba
420 m2
Eladó ikerház
Eladó ikerház

XV. kerület

69.5 M Ft
2 szoba
75 m2
Eladó téglalakás
Eladó téglalakás

VI. kerület, Külső Terézváros, Szív utca

119.5 M Ft
3 szoba
94 m2
Eladó ikerház
Eladó ikerház

XV. kerület

109 M Ft
3 szoba
82 m2
Eladó ikerház
Eladó ikerház

XV. kerület

109 M Ft
3 szoba
82 m2
Eladó iroda
Eladó iroda

IX. kerület

240 M Ft
158 m2

Falusi CSOK ingatlanok

Eladó családi ház
Eladó családi ház

Mezőkeresztes

23.9 M Ft
2 + 1 szoba
82 m2
Eladó családi ház
Eladó családi ház

Kapoly

27.9 M Ft
3 szoba
65 m2
Eladó családi ház
Eladó családi ház

Nagykarácsony

34.9 M Ft
3 szoba
112 m2
Eladó családi ház
Eladó családi ház

Törtel

14 M Ft
3 + 2 szoba
55 m2
Eladó családi ház
Eladó családi ház

Nyáregyháza

67 M Ft
3 szoba
74 m2
Eladó családi ház
Eladó családi ház

Tiszaalpár

19.9 M Ft
3 szoba
95 m2
Eladó ikerház
Eladó ikerház

Seregélyes

39.9 M Ft
4 szoba
150 m2
Eladó családi ház
Eladó családi ház

Tab

46.9 M Ft
4 szoba
173 m2