Oasis Residence

Eladó ikerház
Budapest, XIX. kerület, Kispest, Óváros

+ 7 kép 1/10
75 000 000 Ft75 M Ft 789 474 Ft/m2
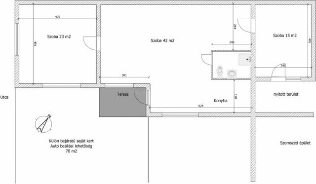
3 szoba
95 m²

Részletes adatok

Telekméret: 210 m2
Fűtés: Elektromos
Parkolás: Kocsibeálló
Közmű: Víz, Villany, Csatorna
Komfort: Komfortos
Energetikai besorolás: Nem adta meg a hirdető

Az OTP Bank lakáshitel ajánlataFizetett hirdetés

+36 70 931
Rencsevics Mária
Balla Ingatlan - XIX., XX. és XXIII. kerület

Érdekel az OTP Bank kedvezményes lakáshitel ajánlata? *

* A kérdésre „Igen” válasz bejelölése esetén, az „Üzenet küldése” gombra kattintva kijelentem, hogy az OTP Bank Nyrt. Adatkezelési tájékoztatójának tartalmát megismertem és tudomásul vettem.

Eladó ikerház leírása

SÜRGŐS! Készpénzes vevőknek ajánlom figyelmébe!

Szinte új házat vehet akár azonnali költözés és gépkocsi beállás lehetőségével Óvárosában, zöld környezetben kivételesen kedvező áron.
A tégla építésű ház falai kivételével minden új: a tető, a teljes gépészet, az összes nyílászáró és a burkolatok, a szigetelés és a kerítés is. A felújítás még folyik, az ár a kész állapotra vonatkozik.
Az amerikai konyhás, nagy étkezős nappali mellett két külön bejáratú hálószoba ideális lehetőség egy olyan családnak, akiknek sürgős a költözés vagy nem akarnak felújítással bajlódni.
Letisztult világos felületek, új műanyag nyílászárók redőnnyel, zuhanykabinos fürdőszoba - mind mind kényelmes és barátságos otthona lehet.
A telken két lakás található, külön bejárattal és kertrésszel. A másik lakás felújítása is folyamatban, a tulajdonosa egy barátságos fiatal hölgy, ideális szomszéd.
Ügyédi használati megosztás van.
Parkolás az utcán is kényelmesen megoldható, de a telken is elfér akár két autó is és garázs is építhető rá.
A közelben találhatók üzletek iskola, óvoda, játszótér, orvosi rendelő, de a soroksái nagy bevásárlóközpont is autóval 10 per alatt elérhető.
A 194-es busszal a M3 Metró 12 perc.
Az ingatlan tehermentes, 1 tulajdonosa van, fizetés után azonnal birtokba vehető.

Kispest ideális választás mindenkinek, aki egyszerre élvezi a zöld környezetet és a Belváros közelségét.

Érdeklődése esetén várom megtisztelő hívását a hét bármely napján.

Hirdetés feltöltve: 2026. 03. 06. Utoljára módosítva: 2026. 05. 26.

3 szobás ikerházak ára Budapesten

Ebből az összehasonlításból megtudhatod, hogyan viszonyul a lakás ára a környékbeli ikerházak átlagos árához. Ez nem azt jelenti, hogy ennyivel olcsóbb vagy drágább, mint amennyit a lakás ér, hanem hogy ennyivel tér el a környékbeli átlagtól.

Ennek a m² ára
XIX. kerület m² ár
Budapest m² ár
789 e Ft
639 e Ft -24%
1148 e Ft 31%
Ennek az ára
XIX. kerület átlagár
Budapest átlagár
75 M Ft m Ft
56.4 m Ft -33%
107.4 m Ft 30%

Az ingatlan elhelyezkedése

Cím: Budapest, XIX. kerület, Kispest, Óváros

Eladó ingatlanok a környékről

XIX. kerület
Eladó ikerház

Budapest, XIX. kerület

139.9 M Ft
5 szoba
130 m²
XIX. kerület
Eladó ikerház

Budapest, XIX. kerület

139.9 M Ft
5 szoba
125 m²
XIX. kerület
Eladó ikerház

Budapest, XIX. kerület

139.9 M Ft
5 szoba
130 m²
VII. kerület, Külső Erzsébetváros, Rottenbiller utca
Eladó téglalakás

Budapest, VII. kerület

33.96 M Ft
0 + 1 szoba
17 m²
II. kerület, Budaliget, Szépvölgyi út
Eladó téglalakás

Budapest, II. kerület

119 M Ft
3 szoba
65 m²
VII. kerület
Eladó téglalakás

Budapest, VII. kerület

109.9 M Ft
2 szoba
92 m²
XVI. kerület
Eladó családi ház

Budapest, XVI. kerület

330 M Ft
8 szoba
253 m²
XIX. kerület
Eladó ikerház

Budapest, XIX. kerület

139.9 M Ft
5 szoba
130 m²
IX. kerület
Eladó téglalakás

Budapest, IX. kerület

134.9 M Ft
3 szoba
69 m²
XXI. kerület
Eladó panellakás

Budapest, XXI. kerület

58 M Ft
2 szoba
45 m²
XIX. kerület
Eladó ikerház

Budapest, XIX. kerület

139.9 M Ft
2 + 3 szoba
130 m²
XIX. kerület
Eladó családi ház

Budapest, XIX. kerület

103 M Ft
3 szoba
230 m²
XIX. kerület
Eladó panellakás

Budapest, XIX. kerület

67 M Ft
1 + 2 szoba
59 m²
XIX. kerület
Eladó ikerház

Budapest, XIX. kerület

139.9 M Ft
5 szoba
130 m²
XIX. kerület
Eladó ikerház

Budapest, XIX. kerület

289 M Ft
7 szoba
260 m²
XIV. kerület
Eladó téglalakás

Budapest, XIV. kerület

64.9 M Ft
2 szoba
51 m²
XIX. kerület, Kispest, Pozsony utca
Eladó ikerház

Budapest, XIX. kerület

119.9 M Ft
4 szoba
98 m²
II. kerület, Budaliget, Fazekas utca
Eladó téglalakás

Budapest, II. kerület

135 M Ft
3 szoba
76 m²
X. kerület, Óhegy, Ónodi utca
Eladó téglalakás

Budapest, X. kerület

74.9 M Ft
2 szoba
48 m²
XIX. kerület, Kispest, Kelet utca 14
Eladó ikerház

Budapest, XIX. kerület

64 M Ft
3 szoba
75 m²
IV. kerület
Eladó panellakás

Budapest, IV. kerület

69 M Ft
2 szoba
56 m²
XI. kerület
Eladó családi ház

Budapest, XI. kerület

1100 M Ft
5 szoba
487 m²
XIX. kerület, Kispest, Templom tér közelében
Eladó ikerház

Budapest, XIX. kerület

289 M Ft
7 szoba
387 m²
IX. kerület
Eladó téglalakás

Budapest, IX. kerület

89.9 M Ft
3 szoba
84 m²

Falusi CSOK ingatlanok

Nagykarácsony
Eladó családi ház

Nagykarácsony

34.9 M Ft
3 szoba
112 m²
Békésszentandrás, Dinnyelaposi Üdülő-sor 1/1
Eladó családi ház

Békésszentandrás

550 M Ft
3 szoba
418 m²
Végegyháza
Eladó családi ház

Végegyháza

62.9 M Ft
4 + 1 szoba
150 m²
Balatonszemes
Eladó téglalakás

Balatonszemes

91.5 M Ft
2 szoba
0 m²
Törtel
Eladó családi ház

Törtel

39 M Ft
1 + 1 szoba
118 m²
Patak
Eladó családi ház

Patak

26.9 M Ft
4 szoba
160 m²
Rétság
Eladó téglalakás

Rétság

39.9 M Ft
2 szoba
55 m²
Bükkszék
Eladó családi ház

Bükkszék

78.9 M Ft
2 + 1 szoba
160 m²