River Life

Eladó ikerház
Albertirsa

85 000 000 Ft85 M Ft 787 037 Ft/m2
4 szoba
108 m²
építés éve:2026

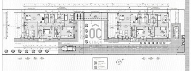
Részletes adatok

Telekméret: 620 m2
Fűtés: Egyéb
Energetikai besorolás: A

Az OTP Bank lakáshitel ajánlataFizetett hirdetés

+36 70 465
Szoboszlai Katalin
referens

Érdekel az OTP Bank kedvezményes lakáshitel ajánlata? *

* A kérdésre „Igen” válasz bejelölése esetén, az „Üzenet küldése” gombra kattintva kijelentem, hogy az OTP Bank Nyrt. Adatkezelési tájékoztatójának tartalmát megismertem és tudomásul vettem.

Eladó ikerház leírása

Albertirsán új építésű ikerház eladó!

Mi az, ami most meg inkább előtérbe kerül, ha ingatlan vásárlás előtt állunk?

Na nézzük...
Legyen korszerű
Nem szeretnénk már felújítással bajlódni, hiszen most minden teljesen kiszámíthatatlan
Árban elérhető és megfizethető legyen
És természetesen legyenek alacsony, akár nulla fenntartási költségei

Mutatom azt az ingatlant, SŐT 2 KÜLÖNBÖZŐ MÉRTETŰ LAKÁST is, ami minden elvárásunknak megfelelő még a változó piacon is!

Első lakás 141 nm hasznos alapterület,melyhez 340 nm-es telek tartozik.
Hátsó lakás 108 nm-es hasznos alapterület,melyhez 620 nm-es telek tartozik.

Alacsony fenntartási költségekkel rendelkező, új építésű ikerház melynél nincs közös fal.

Kiváló ár-érték arányban elérhető lakások, minőségi anyagokból, magas műszaki tartalommal, ne szalaszd el az lehetőséget, hogy megfizethető áron Tiéd legyen egy alacsony fenntartási költségekkel rendelkező új építésű lakás Albertirsán

Főbb műszaki tartalom:

-Teherhordó falazat Leier vagy Porotherm 30-as tégla.
-Szeglemezes tetőszerkezet,betoncserép héjazattal, vele színazonos esőcsatornával.
-Gipszkarton álmennyezet.
-Külső homlokzat 15 cm vastag EPS hőszigetelő rendszer, szemcseméretű kapart nemes díszítő vakolattal.
-Nyílászárók műanyag szerkezetű, 3 rétegű üvegezéssel, fehér színben. Kívül, belül műanyag párkánnyal.
-Árnyékolás beépített, rejtett alumínium redőnnyel fehér színben, szúnyoghálóval, motoros mozgatással történik.
-Fűtés lakásonként méretezett hőszivattyúval, amely a melegvíz ellátást és a padlófűtést biztosítja.
-Épített zuhanyzó.
-Beltéri ajtók alap cpl uht tokos teli ajtó biztosított.
-Burkolatok, laminált parketta és kerámia burkolat választható 6000 ft/nm áron.
-Külső állagmegóvó járda térkövezve 60 nm/lakás.
-Átadás 2027 májusa

Nézzük meg együtt és tervezd meg az új lakásodat itt Albertirán!
Várom megtiszesztelő hívását hétvégén is!

Referencia szám: U0049379

Hirdetés feltöltve: 2026. 04. 23. Utoljára módosítva: 2026. 05. 13.

4 szobás ikerházak ára Albertirsán

Ebből az összehasonlításból megtudhatod, hogyan viszonyul a lakás ára a környékbeli ikerházak átlagos árához. Ez nem azt jelenti, hogy ennyivel olcsóbb vagy drágább, mint amennyit a lakás ér, hanem hogy ennyivel tér el a környékbeli átlagtól.

Ennek a m² ára
Albertirsa m² ár
787 e Ft
597 e Ft -32%
Ennek az ára
Albertirsa átlagár
85 M Ft m Ft
55.1 m Ft -54%

Az ingatlan elhelyezkedése

Cím: Albertirsa

Eladó ikerházak a környékről

Herceghalom
Eladó ikerház

Herceghalom

148 M Ft
5 szoba
134 m²
Pécel
Eladó ikerház

Pécel

149.9 M Ft
5 szoba
306 m²
Szentendre
Eladó ikerház

Szentendre

718 M Ft
10 + 2 szoba
578 m²
Albertirsa
Eladó ikerház

Albertirsa

104.9 M Ft
6 szoba
275 m²
Albertirsa
Eladó ikerház

Albertirsa

64 M Ft
4 szoba
102 m²
Albertirsa
Eladó ikerház

Albertirsa

85 M Ft
4 szoba
108 m²
Vácrátót
Eladó ikerház

Vácrátót

94.9 M Ft
2 + 3 szoba
108 m²
Albertirsa
Eladó ikerház

Albertirsa

74 M Ft
5 szoba
94 m²
Pomáz
Eladó ikerház

Pomáz

129.5 M Ft
4 szoba
100 m²
Nagytarcsa
Eladó ikerház

Nagytarcsa

119.9 M Ft
4 szoba
103 m²
Vác
Eladó ikerház

Vác

96.7 M Ft
4 + 1 szoba
126 m²
Érd
Eladó ikerház

Érd

177.7 M Ft
7 szoba
181 m²
Mogyoród
Eladó ikerház

Mogyoród

129 M Ft
5 szoba
123 m²
Albertirsa
Eladó ikerház

Albertirsa

74 M Ft
5 szoba
94 m²
Albertirsa
Eladó ikerház

Albertirsa

85 M Ft
3 szoba
141 m²
Mogyoród
Eladó ikerház

Mogyoród

135 M Ft
5 szoba
137 m²
Albertirsa
Eladó ikerház

Albertirsa

65.427 M Ft
3 szoba
102 m²
Vác
Eladó ikerház

Vác

149.9 M Ft
5 szoba
202 m²
Albertirsa
Eladó ikerház

Albertirsa

97 M Ft
6 szoba
275 m²
Diósd
Eladó ikerház

Diósd

213.46 M Ft
5 szoba
186 m²
Albertirsa
Eladó ikerház

Albertirsa

118 M Ft
4 szoba
164 m²
Szentendre
Eladó ikerház

Szentendre

359 M Ft
5 + 1 szoba
289 m²
Albertirsa
Eladó ikerház

Albertirsa

98 M Ft
4 szoba
124 m²
Mogyoród
Eladó ikerház

Mogyoród

135 M Ft
5 szoba
137 m²

Falusi CSOK ingatlanok

Igal
Eladó családi ház

Igal

45.9 M Ft
5 szoba
280 m²
Sződ
Eladó családi ház

Sződ

102.9 M Ft
4 szoba
92 m²
Kutas
Eladó családi ház

Kutas

17.9 M Ft
2 + 1 szoba
83 m²
Tápiószőlős
Eladó családi ház

Tápiószőlős

9.9 M Ft
3 szoba
0 m²
Bakonyszentkirály
Eladó családi ház

Bakonyszentkirály

99.99 M Ft
5 szoba
126 m²
Szentmártonkáta
Eladó családi ház

Szentmártonkáta

59.99 M Ft
6 szoba
117 m²
Pécsvárad
Eladó családi ház

Pécsvárad

189 M Ft
7 szoba
618 m²
Marcalgergelyi
Eladó családi ház

Marcalgergelyi

31 M Ft
2 + 1 szoba
120 m²