Astora Márvány8

Eladó családi ház
Velence

+ 11 kép 1/14
69 000 000 Ft69 M Ft 690 000 Ft/m2
4 szoba
100 m²
építés éve:1976

Részletes adatok

Állapot: Átlagos
Telekméret: 473 m2
Fűtés: Gázkazán
Energetikai besorolás: Nem adta meg a hirdető

Az OTP Bank lakáshitel ajánlataFizetett hirdetés

+36 20 534
Gombos Zita
Szigetszentmiklós OTP Ip

Érdekel az OTP Bank kedvezményes lakáshitel ajánlata? *

* A kérdésre „Igen” válasz bejelölése esetén, az „Üzenet küldése” gombra kattintva kijelentem, hogy az OTP Bank Nyrt. Adatkezelési tájékoztatójának tartalmát megismertem és tudomásul vettem.

Eladó családi ház leírása

Velence csendes környékén, Újtelepen kínálunk eladásra egy felújítandó családiházat.
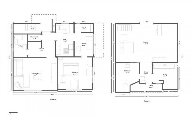
Az ingatlan 1976-ban épült, tégla szerkezetű családi ház, amely lakóövezeti besorolású területen található. A ház alapterülete 100 nm, a telek területe 473 nm, megközelítőleg 20 x 20 méteres mérettel. Az épület kétszintes, belmagassága 2,7 méter.
A fűtésről gáz-cirkó rendszer gondoskodik radiátoros hőleadással. A közművek: víz, villany, csatorna és gáz a telken belül rendelkezésre állnak. A nappali déli tájolású, így az ingatlan fényviszonyai kedvezőek. Parkolás garázsban biztosított.

A földszinten található egy 18 nm-es nappali, egy 14 nm-es szoba, egy 7,3 nm-es konyha, az ahhoz kapcsolódó 5,5 nm-es étkező, valamint egy 1,9 nm-es kamra. Ezen a szinten kapott helyet továbbá egy 4 nm-es fürdőszoba, egy különálló, 1,1 nm-es WC, valamint egy 6,9 nm-es közlekedő. A bejárati ajtónál tetővel rendelkező kétoldalról megközelíthető lépcső is megtalálható. Az oldal kert irányában pedig egy kényelmes terasz található, amelynél a ház saját fala és tetőszerkezete természetes védelmet nyújt az eső és a szél ellen.

Az emeleten egy tágas, 20 nm-es szoba, egy 6,3 nm-es szoba, egy 7,5 nm-es fürdőszoba, valamint egy 3 nm-es közlekedő található. A közlekedőből nyílik az erkély, ahol kényelmesen elfogyaszthatjuk a reggeli kávénkat.

Az ingatlan jogilag rendezett, a térképmásolaton minden feltüntetésre került.

Referenciaszám: M323766

Az OTP Bankcsoport teljeskörű ügyintézéssel áll az eladók és a vevők rendelkezésére! A kínálatunkból választott ingatlan finanszírozásához kedvezményes hitelkonstrukciókat kínálunk. Az adásvételi szerződés megkötéséhez igény szerint megbízható ügyvédi közreműködést biztosítunk és segítséget nyújtunk az adásvételhez kapcsolódó ügyek intézéséhez.

Hirdetés feltöltve: 2026. 04. 09.

4 szobás családi házak ára Velencén

Ebből az összehasonlításból megtudhatod, hogyan viszonyul a lakás ára a környékbeli családi házak átlagos árához. Ez nem azt jelenti, hogy ennyivel olcsóbb vagy drágább, mint amennyit a lakás ér, hanem hogy ennyivel tér el a környékbeli átlagtól.

Ennek a m² ára
Velence m² ár
690 e Ft
1110 e Ft 38%
Ennek az ára
Velence átlagár
69 M Ft m Ft
164 m Ft 58%

Az ingatlan elhelyezkedése

Cím: Velence

Eladó családi házak a környékről

Velence
Eladó családi ház

Velence

42.9 M Ft
1 szoba
40 m²
Velence
Eladó családi ház

Velence

80 M Ft
6 szoba
200 m²
Lepsény, Róka sétány
Eladó családi ház

Lepsény

64.9 M Ft
5 + 1 szoba
203 m²
Bakonycsernye
Eladó családi ház

Bakonycsernye

39 M Ft
3 szoba
350 m²
Pusztavám
Eladó családi ház

Pusztavám

22.9 M Ft
3 szoba
103 m²
Alcsútdoboz, Szabadság utca
Eladó családi ház

Alcsútdoboz

320 M Ft
12 szoba
620 m²
Gánt, Gánti út
Eladó családi ház

Gánt

29.9 M Ft
2 + 1 szoba
40 m²
Velence
Eladó családi ház

Velence

79 M Ft
10 + 1 szoba
189 m²
Velence
Eladó családi ház

Velence

205 M Ft
7 szoba
593 m²
Velence
Eladó családi ház

Velence

49.9 M Ft
2 szoba
57 m²
Velence
Eladó családi ház

Velence

450 M Ft
10 szoba
300 m²
Velence
Eladó családi ház

Velence

47 M Ft
3 szoba
93 m²
Velence
Eladó családi ház

Velence

144 M Ft
6 szoba
185 m²
Vértesacsa
Eladó családi ház

Vértesacsa

86 M Ft
3 + 1 szoba
123 m²
Székesfehérvár
Eladó családi ház

Székesfehérvár

69.9 M Ft
3 szoba
95 m²
Velence
Eladó családi ház

Velence

45.9 M Ft
2 szoba
51 m²
Pusztaszabolcs
Eladó családi ház

Pusztaszabolcs

143.9 M Ft
4 szoba
149 m²
Etyek
Eladó családi ház

Etyek

160 M Ft
6 szoba
228 m²
Gárdony, Gárdonyi Géza utca
Eladó családi ház

Gárdony

59 M Ft
3 szoba
100 m²
Velence
Eladó családi ház

Velence

169 M Ft
4 szoba
182 m²
Velence
Eladó családi ház

Velence

219 M Ft
7 szoba
345 m²
Velence
Eladó családi ház

Velence

450 M Ft
4 szoba
213 m²
Bicske, Baboshegy
Eladó családi ház

Bicske

26.9 M Ft
1 szoba
30 m²
Mány
Eladó családi ház

Mány

18.5 M Ft
3 szoba
70 m²

Falusi CSOK ingatlanok

Sződ
Eladó családi ház

Sződ

116.9 M Ft
4 + 1 szoba
102 m²
Iklad
Eladó családi ház

Iklad

60 M Ft
3 szoba
76 m²
Tápióbicske
Eladó ikerház

Tápióbicske

93.5 M Ft
7 szoba
136 m²
Kadarkút, Körmendi utca
Eladó családi ház

Kadarkút

21 M Ft
3 szoba
82 m²
Balatonszemes
Eladó téglalakás

Balatonszemes

125.2 M Ft
2 szoba
50 m²
Enese
Eladó családi ház

Enese

72.025 M Ft
4 szoba
75 m²
Tabdi
Eladó családi ház

Tabdi

95 M Ft
45 szoba
1490 m²
Tápiógyörgye
Eladó családi ház

Tápiógyörgye

34.9 M Ft
3 szoba
74 m²