Eladó családi ház
Újhartyán

Figyelem!

Ez az ingatlan a 2019.07.01-től induló falusi CSOK által támogatott településen található

+ 3 kép 1/6
89 900 000 Ft89.9 M Ft 936 458 Ft/m2
4 szoba
96 m2

Részletes adatok

Telekméret: 600 m2
Fűtés: Egyéb
Parkolás: Kocsibeálló
Közmű: Villany, Csatorna, Szélessáv, KábelTV
Energetikai besorolás: Nem adta meg a hirdető

Az OTP Bank lakáshitel ajánlataFizetett hirdetés

+36 70 224
Nagy Pál
Nagy Ingatlan

Érdekel az OTP Bank kedvezményes lakáshitel ajánlata? *

* A kérdésre „Igen” válasz bejelölése esetén, az „Üzenet küldése” gombra kattintva kijelentem, hogy az OTP Bank Nyrt. Adatkezelési tájékoztatójának tartalmát megismertem és tudomásul vettem.

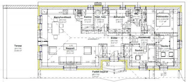
Eladó családi ház leírása

Újhartyánon nappali+3szobás új építésű,külön elkerített 600nm-es saját telekkel rendelkező 96nm-es ház eladó ! Az ingatlan a műszaki tartalmából kiderül,hogy magas műszaki tartalommal rendelkezik.

A-lakás: (99 m2-es + kb. 30 m2 terasz) ára: 89.900.000 Ft
Telekméret : kb.: 500 m2
B-lakás: (96 m2-es + kb.30 terasz) ára: 89.900.000 Ft
Telekméret: kb.:600 m2

Műszaki Leírás:
Alapozás : C20 24KK-betonnal, vasalattal, GV35 vízszigeteléssel, 10 cm lábazati hungarocellel, Revco lábazati vakolattal
Fal: Porotherm/ Leier 30 tégla + 15 cm hungarocell szigetelés, 1-es kódú színezés
Válaszfal: 10 NF válaszfaltégla, vakolva, simítva
Födém: Szeglemezes rendszerű tetőszerkezet, gipszkarton borítással, 30 cm Isocell befújt szigeteléssel
Tető : Terrán/ Bramac/Leier betoncserép színes alumínium csatornával
Villanyszerelés:
A lakótér: falba süllyesztett szerelés, gerincek 25 symolen betoncsőben, aljzatbetonban.
1 fázis 32A + H-tarifa 1 fázis 20A
Lakótér: 75 végpont összesen ( kapcsoló, konnektor, lámpa)
Választható szerelvények összértéke Nettó: 100.000 Ft: (kapcsoló és konnektor)
Minden plusz végpont kiépítése Nettó: 20.000 /db
Beltér: vakolás, 2x-i glettelés, 2 rétegfestés, választható pasztell színekkel
Szaniterek: Választható szaniterek ára (NETTÓ) keretösszeg (csapok, fürdőkád stb..): 300.000 Ft
Épületgépészet: Gree gud71ps/a-t- légcsatornás hűtő-fűtő egység , szobánkénti befújással, elszívással és szabályozható termosztáttal, hőszivattyús villanybojler (Ariston Lydos Hibrid 100)
Burkolatok:
Megrendelő által választható (szobákban laminált parketta, egyéb helyiségekben hidegburkolat) Keretösszeg Nettó: 600.000 Ft
Külső nyílászárók-belső ajtók:
Kívül színes, belül fehér színű, műanyag, 5 légkamrás ablakok, 3-as üvegezéssel.
Kő párkányok kívül, fehér színű műanyag párkányok belül
Műanyag bejárati ajtó
Szigetelt, színes alumínium redőnyök
Belső ajtók többféle választható színben nettó. 60.000 Ft / db áron- eredeti tervek szerinti mennyiségben.

Egyebek:
Minden házhoz tartozik 30 m2 térkövezés egyben.
Házak körben bekerítve, szomszédtól és a bevezető úttól telken belül, lemezkerítéssel elválasztva,hátsó szomszédtól drótkerítéssel elválasztva, utca fronton betonkerítés 3D közökkel, horganyzott úszó kapuval és kiskapuval szintén 3D kerítéselemmel szerelve
Tereprendezés: az udvarról sitt és hulladék elhordva, de a termőföld feltöltés, parkosítás és bármi egyéb (pl. drén gödör) a megrendelő feladata.

Hirdetés feltöltve: 2025. 01. 19. Utoljára módosítva: 2025. 10. 09.

Az ingatlan elhelyezkedése

Cím: Újhartyán

Eladó családi házak a környékről

Eladó családi ház
Eladó családi ház

Sződ, Rátóti utca

149.99 M Ft
11 szoba
270 m2
Eladó családi ház
Eladó családi ház

Újhartyán

95 M Ft
5 szoba
170 m2
Eladó családi ház
Eladó családi ház

Budakeszi, Budakeszi kertváros

229 M Ft
10 szoba
450 m2
Eladó családi ház
Eladó családi ház

Budakeszi

130 M Ft
5 szoba
30 m2
Eladó családi ház
Eladó családi ház

Újhartyán, József Attila utca

44.7 M Ft
3 szoba
78 m2
Eladó családi ház
Eladó családi ház

Tápiógyörgye

19.9 M Ft
3 szoba
65 m2
Eladó családi ház
Eladó családi ház

Újhartyán

89.9 M Ft
4 szoba
99 m2
Eladó családi ház
Eladó családi ház

Budaörs, Bányász utca

385 M Ft
6 szoba
300 m2
Eladó családi ház
Eladó családi ház

Budakeszi, Budakeszi kertváros

140 M Ft
2 szoba
55 m2
Eladó családi ház
Eladó családi ház

Újhartyán

94.9 M Ft
5 szoba
159 m2
Eladó családi ház
Eladó családi ház

Remeteszőlős

399.9 M Ft
5 + 2 szoba
260 m2
Eladó családi ház
Eladó családi ház

Újhartyán

49.9 M Ft
5 + 1 szoba
140 m2
Eladó családi ház
Eladó családi ház

Budaörs, Városközpont utca

119.5 M Ft
5 + 1 szoba
140 m2
Eladó családi ház
Eladó családi ház

Dunavarsány

46.9 M Ft
3 + 2 szoba
130 m2
Eladó családi ház
Eladó családi ház

Újhartyán

94.999 M Ft
5 szoba
190 m2
Eladó családi ház
Eladó családi ház

Újhartyán

49.9 M Ft
3 szoba
138 m2
Eladó családi ház
Eladó családi ház

Leányfalu

237 M Ft
9 szoba
800 m2
Eladó családi ház
Eladó családi ház

Újhartyán

94.99 M Ft
5 szoba
177 m2
Eladó családi ház
Eladó családi ház

Dunakeszi

250 M Ft
4 szoba
180 m2
Eladó családi ház
Eladó családi ház

Budakeszi, Makkosmária

100 M Ft
1 szoba
10 m2
Eladó családi ház
Eladó családi ház

Szigetszentmiklós, Tököli út közeli utca

120 M Ft
7 szoba
525 m2
Eladó családi ház
Eladó családi ház

Tápiószele

37.9 M Ft
4 szoba
141 m2
Eladó családi ház
Eladó családi ház

Újhartyán

94.999 M Ft
5 szoba
190 m2
Eladó családi ház
Eladó családi ház

Gyál, Gyál út

169.9 M Ft
2 szoba
90 m2

Falusi CSOK ingatlanok

Eladó téglalakás
Eladó téglalakás

Kőröshegy

64.9 M Ft
3 szoba
52 m2
Eladó családi ház
Eladó családi ház

Dióskál

22.9 M Ft
2 szoba
102 m2
Eladó családi ház
Eladó családi ház

Dunaegyháza, Rákóczi Ferenc utca

19.9 M Ft
3 szoba
120 m2
Eladó családi ház
Eladó családi ház

Tök

96.2 M Ft
4 szoba
104 m2
Eladó családi ház
Eladó családi ház

Balatonfenyves

430 M Ft
4 szoba
274 m2
Eladó családi ház
Eladó családi ház

Nagybaracska

35 M Ft
3 szoba
110 m2
Eladó ikerház
Eladó ikerház

Balatonakali

165 M Ft
4 szoba
138 m2
Eladó családi ház
Eladó családi ház

Somogymeggyes

14 M Ft
3 szoba
86 m2

Falusi CSOK ingatlanok

Eladó családi ház
Eladó családi ház

Galgagyörk

30 M Ft
3 szoba
123 m2
Eladó családi ház
Eladó családi ház

Pannonhalma

169.9 M Ft
5 szoba
200 m2
Eladó családi ház
Eladó családi ház

Dióskál

22.9 M Ft
2 szoba
102 m2
Eladó családi ház
Eladó családi ház

Rédics

49.9 M Ft
3 szoba
107 m2
Eladó családi ház
Eladó családi ház

Gyöngyöshalász

59 M Ft
4 + 3 szoba
214 m2
Eladó családi ház
Eladó családi ház

Kács

29.5 M Ft
4 szoba
150 m2
Eladó családi ház
Eladó családi ház

Tápióság

58 M Ft
4 szoba
92 m2
Eladó családi ház
Eladó családi ház

Balatonfenyves

430 M Ft
4 szoba
274 m2