Eladó családi ház
Tápiószőlős

Figyelem!

Ez az ingatlan a 2019.07.01-től induló falusi CSOK által támogatott településen található

+ 17 kép 1/20
12 990 000 Ft12.99 M Ft 240 556 Ft/m2
1 + 2 szoba
54 m2
építés éve:1999

Részletes adatok

Állapot: Felújítandó
Telekméret: 700 m2
Fűtés: Egyéb
Közmű: Víz, Gáz, Villany
Energetikai besorolás: Nem adta meg a hirdető

Az OTP Bank lakáshitel ajánlataFizetett hirdetés

+36 70 358
Jancsovics-Andó Bernadett
referens

Érdekel az OTP Bank kedvezményes lakáshitel ajánlata? *

* A kérdésre „Igen” válasz bejelölése esetén, az „Üzenet küldése” gombra kattintva kijelentem, hogy az OTP Bank Nyrt. Adatkezelési tájékoztatójának tartalmát megismertem és tudomásul vettem.

Eladó családi ház leírása

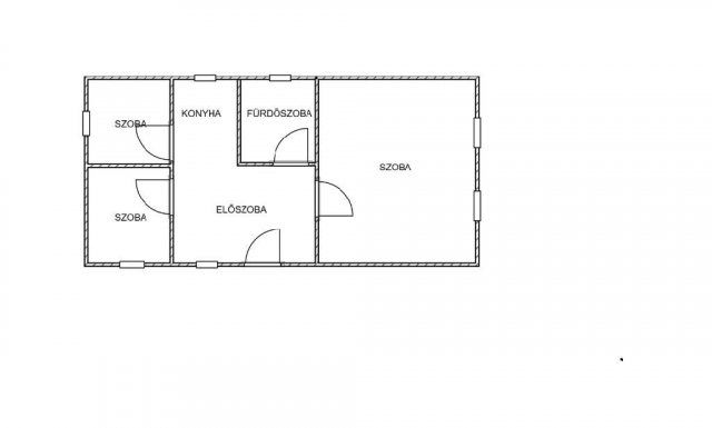
Budapesttől egy órára, 70 km-re, Pest vármegye, Tápiószőlős településen 54,7 nm-es, felújítandó családi ház eladó. A tégla falazatú ingatlan 1999-ben épült. A házban egy szoba, 2 félszoba, konyha, fürdő/WC található. Az otthon melegéről jelenleg kályha gondoskodik, de a gáz is bevezetésre került. A közelben iskola, óvoda, boltok és egészségház is van. Cegléd autóval, vagy közvetlen buszjárattal 15 percre távolságra. A vásárlás finanszírozásában az OTP kedvező hitelkonstrukcióival tud segíteni, kedvezőbb kamatozású OTP Bank hitelhez juthat, ha az OTP Ingatlanpont kínálatából vásárol. Az adás-vétel lebonyolításához korrekt ügyvédi közreműködést tudunk ajánlani.

Hirdetés feltöltve: 2025. 10. 23. Utoljára módosítva: 2025. 10. 23.

3 szobás családi házak ára Tápiószőlősön

Ebből az összehasonlításból megtudhatod, hogyan viszonyul a lakás ára a környékbeli családi házak átlagos árához. Ez nem azt jelenti, hogy ennyivel olcsóbb vagy drágább, mint amennyit a lakás ér, hanem hogy ennyivel tér el a környékbeli átlagtól.

Ennek a m² ára
Tápiószőlős m² ár
241 e Ft
348 e Ft 31%
Ennek az ára
Tápiószőlős átlagár
12.99 M Ft m Ft
26.5 m Ft 51%

Az ingatlan elhelyezkedése

Cím: Tápiószőlős

Eladó családi házak a környékről

Eladó családi ház
Eladó családi ház

Tápiószőlős

37.5 M Ft
3 szoba
90 m2
Eladó családi ház
Eladó családi ház

Tápiószőlős

7.9 M Ft
2 szoba
60 m2
Eladó családi ház
Eladó családi ház

Tápiószőlős

36.5 M Ft
3 szoba
72 m2
Eladó családi ház
Eladó családi ház

Tápiószőlős, Petőfi Sándor utca

9 M Ft
1 szoba
50 m2
Eladó családi ház
Eladó családi ház

Remeteszőlős

399.9 M Ft
5 + 2 szoba
260 m2
Eladó családi ház
Eladó családi ház

Tápiószőlős

12.99 M Ft
1 + 2 szoba
54 m2
Eladó családi ház
Eladó családi ház

Tápiógyörgye

19.9 M Ft
3 szoba
65 m2
Eladó családi ház
Eladó családi ház

Tápiószőlős

36.9 M Ft
3 szoba
90 m2
Eladó családi ház
Eladó családi ház

Tápiószőlős

14.9 M Ft
3 szoba
74 m2
Eladó családi ház
Eladó családi ház

Budaörs, Bányász utca

385 M Ft
6 szoba
300 m2
Eladó családi ház
Eladó családi ház

Tápiószőlős

18.5 M Ft
3 szoba
62 m2
Eladó családi ház
Eladó családi ház

Tápiószőlős

13 M Ft
3 szoba
49 m2
Eladó családi ház
Eladó családi ház

Kerepes

199 M Ft
6 szoba
360 m2
Eladó családi ház
Eladó családi ház

Budaörs, Városközpont utca

119.5 M Ft
5 + 1 szoba
140 m2
Eladó családi ház
Eladó családi ház

Tápiószőlős

21.9 M Ft
1 szoba
55 m2
Eladó családi ház
Eladó családi ház

Tápiószőlős

36.5 M Ft
3 szoba
72 m2
Eladó családi ház
Eladó családi ház

Tápiószőlős

14.9 M Ft
3 szoba
74 m2
Eladó családi ház
Eladó családi ház

Tápiószőlős, TUlipán

6.99 M Ft
3 szoba
35 m2
Eladó családi ház
Eladó családi ház

Tápiószőlős

69 M Ft
3 szoba
77 m2
Eladó családi ház
Eladó családi ház

Tápiószőlős

12.99 M Ft
1 + 2 szoba
54 m2
Eladó családi ház
Eladó családi ház

Tápiószőlős

18 M Ft
3 szoba
77 m2
Eladó családi ház
Eladó családi ház

Dunakeszi

250 M Ft
4 szoba
180 m2
Eladó családi ház
Eladó családi ház

Budaörs, Odvshegy utca

268.9 M Ft
5 szoba
235 m2
Eladó családi ház
Eladó családi ház

Dunavarsány

46.9 M Ft
3 + 2 szoba
130 m2

Falusi CSOK ingatlanok

Eladó családi ház
Eladó családi ház

Kisnána

27.9 M Ft
4 szoba
180 m2
Eladó családi ház
Eladó családi ház

Vasmegyer

14 M Ft
2 + 1 szoba
70 m2
Eladó családi ház
Eladó családi ház

Perkáta

62.4 M Ft
5 szoba
120 m2
Eladó családi ház
Eladó családi ház

Németkér

149.9 M Ft
2 szoba
540 m2
Eladó családi ház
Eladó családi ház

Bag

39.5 M Ft
3 szoba
80 m2
Eladó családi ház
Eladó családi ház

Balatonfenyves

199 M Ft
5 szoba
210 m2
Eladó családi ház
Eladó családi ház

Zsámbok

45 M Ft
2 szoba
60 m2
Eladó családi ház
Eladó családi ház

Nyírmada

12.5 M Ft
2 szoba
88 m2

Falusi CSOK ingatlanok

Eladó családi ház
Eladó családi ház

Kenderes

9.5 M Ft
2 + 1 szoba
70 m2
Eladó családi ház
Eladó családi ház

Szeremle

25 M Ft
4 szoba
185 m2
Eladó családi ház
Eladó családi ház

Kuncsorba, Kölcsey

14.5 M Ft
3 + 1 szoba
108 m2
Eladó családi ház
Eladó családi ház

Németkér

149.9 M Ft
2 szoba
540 m2
Eladó családi ház
Eladó családi ház

Szigetbecse

35.9 M Ft
3 + 2 szoba
107 m2
Eladó családi ház
Eladó családi ház

Dunaegyháza

13.5 M Ft
2 szoba
120 m2
Eladó téglalakás
Eladó téglalakás

Nyáregyháza

61.5 M Ft
4 szoba
91 m2
Eladó családi ház
Eladó családi ház

Bezenye

84.9 M Ft
4 + 1 szoba
145 m2