Eladó családi ház
Szigetbecse

Figyelem!

Ez az ingatlan a 2019.07.01-től induló falusi CSOK által támogatott településen található

+ 17 kép 1/20
35 900 000 Ft35.9 M Ft 335 514 Ft/m2
3 + 2 szoba
107 m2
építés éve:1947

Részletes adatok

Állapot: Átlagos
Telekméret: 1732 m2
Fűtés: Gázkazán
Közmű: Víz, Gáz, Villany, Csatorna
Energetikai besorolás: Nem adta meg a hirdető
Zenga Premier

Friss hirdetések, amiket nem találsz meg más ingatlankereső portálon.

Fedezd fel elsőként a Zenga Premier címkés eladó ingatlanokat!

További részletek a zenga.hu-n

Az OTP Bank lakáshitel ajánlataFizetett hirdetés

+36 20 391
Better Barbara Alma
referens

Érdekel az OTP Bank kedvezményes lakáshitel ajánlata? *

* A kérdésre „Igen” válasz bejelölése esetén, az „Üzenet küldése” gombra kattintva kijelentem, hogy az OTP Bank Nyrt. Adatkezelési tájékoztatójának tartalmát megismertem és tudomásul vettem.

Eladó családi ház leírása

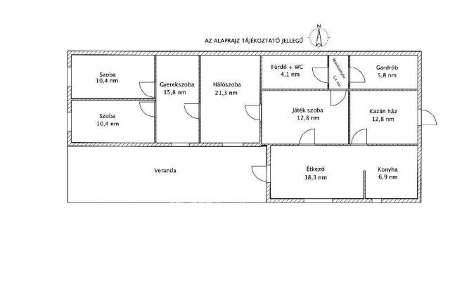
Csepel-sziget déli részén található Szigetbecsén csendes, nyugodt környezet ölelte, nettó 107 m2, bruttó 120 m2 alapterületű családi ház eladó. Az ingatlan 1980-as évek előtt épült, 1732m2 művelési területen, tégla alapon vályog(60cm) falazattal, pala tető fedéssel. A födémen 10cm-s kőzetgyapot szigetelés lett leterítve, a falak víz szigetelése megtörtént. a ház fűtéséről kondenzációs gázkazán gondoskodik, radiátoros hőleadókkal. A melegvizet egy 1éves villany-bojler biztosítja. A lakótérben helyet kapott 1 konyha-étkező, 1 fürdőszoba wc-vel, 1 gardrób szoba, 1 nagyszoba, 2 közepes szoba, 2 félszoba és 1 nagy kamra/kazánház. A hatalmas telek 2 részre van osztva melyből a hátsó részt most is, más műveli, de ha szeretne valaki gazdálkodni gond nélkül megteheti a termő területen, hiszen saját tulajdonú a kert. A parkolás az udvaron megoldható több autó számára is. Nagy családosok számára kiváló lehetőséget biztosít, mivel 5 perc sétára található orvos, óvoda, iskola, bölcsőde, gyógyszertár, két kisbolt, játszótér. Barátságos környék és szomszédok. Szomszéd városban Ráckevén számos bevásárlási lehetőség biztosított: Lidl, Penny, Pepco, Dm, Rossmann, Piac, Étterem, Bankok, kormányablak. Buszmegálló is található a közelben. A ház teljes mértékben megfelel a FALUSI CSOK elvárásainak. Gond nélkül hitelezhető. Pénzügyi tanácsadással kapcsolatban is állunk rendelkezésére! Amennyiben hirdetésem felkeltette érdeklődését, keressen bizalommal! Referenciaszám: M315851

Hirdetés feltöltve: 2025. 10. 22. Utoljára módosítva: 2025. 10. 22.

5 szobás családi házak ára Szigetbecsén

Ebből az összehasonlításból megtudhatod, hogyan viszonyul a lakás ára a környékbeli családi házak átlagos árához. Ez nem azt jelenti, hogy ennyivel olcsóbb vagy drágább, mint amennyit a lakás ér, hanem hogy ennyivel tér el a környékbeli átlagtól.

Ennek a m² ára
Szigetbecse m² ár
336 e Ft
682 e Ft 51%
Ennek az ára
Szigetbecse átlagár
35.9 M Ft m Ft
71.4 m Ft 50%

Az ingatlan elhelyezkedése

Cím: Szigetbecse

Eladó családi házak a környékről

Eladó családi ház
Eladó családi ház

Kerepes

199 M Ft
6 szoba
360 m2
Eladó családi ház
Eladó családi ház

Szigetbecse

33.8 M Ft
2 szoba
72 m2
Eladó családi ház
Eladó családi ház

Gyál, Gyál út

169.9 M Ft
2 szoba
90 m2
Eladó családi ház
Eladó családi ház

Kerepes

81.99 M Ft
5 szoba
102 m2
Eladó családi ház
Eladó családi ház

Szigetbecse

79 M Ft
4 szoba
150 m2
Eladó családi ház
Eladó családi ház

Sződ, Rátóti utca

149.99 M Ft
11 szoba
270 m2
Eladó családi ház
Eladó családi ház

Szigetbecse

79.9 M Ft
5 szoba
100 m2
Eladó családi ház
Eladó családi ház

Szigetbecse

199.9 M Ft
4 szoba
104 m2
Eladó családi ház
Eladó családi ház

Tápiószele

37.9 M Ft
4 szoba
141 m2
Eladó családi ház
Eladó családi ház

Budakeszi, Budakeszi kertváros

229 M Ft
10 szoba
450 m2
Eladó családi ház
Eladó családi ház

Budaörs, Városközpont utca

119.5 M Ft
5 + 1 szoba
140 m2
Eladó családi ház
Eladó családi ház

Szigetbecse

22.9 M Ft
2 szoba
76 m2
Eladó családi ház
Eladó családi ház

Szigetbecse

99 M Ft
3 szoba
86 m2
Eladó családi ház
Eladó családi ház

Pécel, Reményik Sándor utca

296 M Ft
6 szoba
396 m2
Eladó családi ház
Eladó családi ház

Dunavarsány

69.9 M Ft
3 + 1 szoba
140 m2
Eladó családi ház
Eladó családi ház

Leányfalu

237 M Ft
9 szoba
800 m2
Eladó családi ház
Eladó családi ház

Dunakeszi

250 M Ft
4 szoba
180 m2
Eladó családi ház
Eladó családi ház

Szigetbecse

79.9 M Ft
5 szoba
96 m2
Eladó családi ház
Eladó családi ház

Szigetbecse

199.9 M Ft
4 szoba
104 m2
Eladó családi ház
Eladó családi ház

Budakeszi

130 M Ft
5 szoba
30 m2
Eladó családi ház
Eladó családi ház

Remeteszőlős

399.9 M Ft
5 + 2 szoba
260 m2
Eladó családi ház
Eladó családi ház

Szigetbecse

33.8 M Ft
2 szoba
72 m2
Eladó családi ház
Eladó családi ház

Szigetbecse

89.9 M Ft
5 szoba
108 m2
Eladó családi ház
Eladó családi ház

Szigetbecse

89.5 M Ft
5 szoba
110 m2

Falusi CSOK ingatlanok

Eladó családi ház
Eladó családi ház

Alattyán

45 M Ft
4 + 1 szoba
186 m2
Eladó családi ház
Eladó családi ház

Jászkarajenő

25 M Ft
4 szoba
136 m2
Eladó családi ház
Eladó családi ház

Ságvár

59.9 M Ft
3 szoba
87 m2
Eladó családi ház
Eladó családi ház

Geresdlak

24.8 M Ft
1 szoba
50 m2
Eladó családi ház
Eladó családi ház

Rédics

49.9 M Ft
3 szoba
107 m2
Eladó családi ház
Eladó családi ház

Tök

125.4 M Ft
4 szoba
135 m2
Eladó családi ház
Eladó családi ház

Jánoshida

9.5 M Ft
2 + 1 szoba
81 m2
Eladó családi ház
Eladó családi ház

Szil

25 M Ft
2 szoba
90 m2

Falusi CSOK ingatlanok

Eladó családi ház
Eladó családi ház

Szilvágy

49.99 M Ft
3 szoba
90 m2
Eladó családi ház
Eladó családi ház

Galgagyörk

46.9 M Ft
4 szoba
105 m2
Eladó családi ház
Eladó családi ház

Rém

10.5 M Ft
3 szoba
105 m2
Eladó családi ház
Eladó családi ház

Somogyszil

27.9 M Ft
3 szoba
140 m2
Eladó családi ház
Eladó családi ház

Ceglédbercel

45 M Ft
2 + 1 szoba
127 m2
Eladó családi ház
Eladó családi ház

Pórszombat

20.5 M Ft
3 szoba
88 m2
Eladó családi ház
Eladó családi ház

Bag

86 M Ft
3 szoba
86 m2
Eladó családi ház
Eladó családi ház

Lengyeltóti

37.9 M Ft
3 szoba
90 m2