Eladó családi ház
Szuhogy

Figyelem!

Ez az ingatlan a 2019.07.01-től induló falusi CSOK által támogatott településen található

+ 17 kép 1/20
26 990 000 Ft26.99 M Ft 107 960 Ft/m2
3 szoba
250 m2
építés éve:1985

Részletes adatok

Állapot: Átlagos
Telekméret: 3844 m2
Fűtés: Gázkazán
Energetikai besorolás: Nem adta meg a hirdető

Az OTP Bank lakáshitel ajánlataFizetett hirdetés

+36 70 907
Klubert Gergő
OTP Ingatlanpont Miskolc Szemere

Érdekel az OTP Bank kedvezményes lakáshitel ajánlata? *

* A kérdésre „Igen” válasz bejelölése esetén, az „Üzenet küldése” gombra kattintva kijelentem, hogy az OTP Bank Nyrt. Adatkezelési tájékoztatójának tartalmát megismertem és tudomásul vettem.

Eladó családi ház leírása

Eladó 2 szintes, nagy telkes családi ház Szuhogyon!
Szuhogy csendes, barátságos részén kínálok megvételre egy 1985-ben, szilikátból épült, tehermentes családi házat, mely 4 bejárattal rendelkezik.
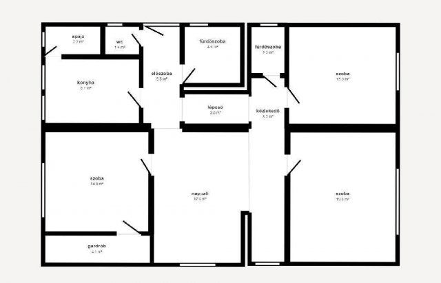
Az ingatlan két szintes, összesen 3 szoba + nappali, illetve a felső szinten további 3 szoba kialakítására is lehetőség van, mely az új tulajdonosra vár, így igény szerint saját ízlésre szabható!

Főbb jellemzők:
Telek mérete: 3844 m2 ideális gazdálkodáshoz, kertészkedéshez, állattartáshoz vagy akár bővítéshez is.

Lakótér: tágas nappali, három kényelmes szoba, melyből egyikhez gardrób is tartozik, két fürdőszoba (zuhanyzóval és káddal).

Garázs a házban, így közvetlen, száraz bejárás biztosított akár esős időben is.

Nyílt kocsibeálló további autók számára az udvaron.

Műszaki adatok:
Fűtés: Vegyes tüzelésű kazán (fa, szén) + Kombi gázkazán ? gazdaságos fűtési lehetőségek!

Melegvíz: Villanybojler biztosítja a folyamatos melegvíz-ellátást.

Burkolatok: Szobákban modern laminált padló, többi helyiségben járólap.

Nyílászárók: Hagyományos, jó állapotú fa ablakok és ajtók.

Vízforrás: A közműves vízellátás mellett az udvaron gyűrűs kút is található, ideális locsoláshoz vagy akár gazdálkodáshoz.

Környezet:
Szuhogy egy csendes, nyugodt település, kiváló szomszédsággal és barátságos közösséggel.

A falu tiszta levegőjű, természetközeli környezetet biztosít, ideális a nyugodt vidéki életmódot keresők számára.

A településen alapvető szolgáltatások elérhetők, nagyobb városok (pl. Kazincbarcika, Miskolc) könnyen elérhetők autóval.

Előnyök:
Tehermentes ingatlan

Óriási telek ritkaság ilyen nagy méretű birtokot találni, a hátsó részről is van bejárat a telekre.

Kétféle fűtési mód gazdaságos üzemeltetés télen is.

Bővíthető, saját igényre alakítható felső szint.

Banki háttérrel, teljes körű ügyintézéssel segítjük a vásárlást! CSOK Plusz falusi csok és lakáshitel ügyintézésben is támogatást nyújtunk díjmentesen! Érdeklődés esetén hivatkozzon M302494 azonosítási számra.

Hirdetés feltöltve: 2025. 10. 15. Utoljára módosítva: 2025. 10. 15.

3 szobás családi házak ára Szuhogyon

Ebből az összehasonlításból megtudhatod, hogyan viszonyul a lakás ára a környékbeli családi házak átlagos árához. Ez nem azt jelenti, hogy ennyivel olcsóbb vagy drágább, mint amennyit a lakás ér, hanem hogy ennyivel tér el a környékbeli átlagtól.

Ennek a m² ára
Szuhogy m² ár
108 e Ft
110 e Ft 2%
Ennek az ára
Szuhogy átlagár
26.99 M Ft m Ft
9.3 m Ft -192%

Az ingatlan elhelyezkedése

Cím: Szuhogy

Eladó ingatlanok a környékről

Eladó családi ház
Eladó családi ház

Szuhogy

8.9 M Ft
2 szoba
79 m2
Eladó családi ház
Eladó családi ház

Szuhogy

12.9 M Ft
2 + 1 szoba
76 m2
Eladó családi ház
Eladó családi ház

Miskolc

95 M Ft
6 szoba
130 m2
Eladó családi ház
Eladó családi ház

Szuhogy

11.9 M Ft
3 szoba
100 m2
Eladó családi ház
Eladó családi ház

Szuhogy

9.9 M Ft
2 szoba
79 m2
Eladó családi ház
Eladó családi ház

Miskolc

58 M Ft
4 szoba
145 m2
Eladó családi ház
Eladó családi ház

Gönc, Kossuth Lajos utca

26 M Ft
2 + 1 szoba
130 m2
Eladó családi ház
Eladó családi ház

Szuhogy

12.9 M Ft
2 + 1 szoba
76 m2
Eladó családi ház
Eladó családi ház

Ózd

14.7 M Ft
3 szoba
95 m2
Eladó családi ház
Eladó családi ház

Onga

55 M Ft
4 szoba
120 m2
Eladó családi ház
Eladó családi ház

Szuhogy

26.99 M Ft
3 szoba
250 m2
Eladó családi ház
Eladó családi ház

Ózd

8.6 M Ft
5 szoba
160 m2
Eladó családi ház
Eladó családi ház

Miskolc

149 M Ft
4 szoba
463 m2
Eladó téglalakás
Eladó téglalakás

Miskolc

30.9 M Ft
2 + 1 szoba
55 m2
Eladó családi ház
Eladó családi ház

Szuhogy

26.99 M Ft
3 szoba
250 m2
Eladó családi ház
Eladó családi ház

Szendrő, Váralja utca

15.9 M Ft
2 szoba
65 m2
Eladó családi ház
Eladó családi ház

Szuhogy

26.99 M Ft
3 szoba
250 m2
Eladó téglalakás
Eladó téglalakás

Miskolc, Belváros, Munkácsy Mihály utca

69 M Ft
4 szoba
110 m2
Eladó családi ház
Eladó családi ház

Ózd, Ózd falu, 48-as út

39.9 M Ft
3 + 1 szoba
300 m2
Eladó családi ház
Eladó családi ház

Szuhogy

12.9 M Ft
2 + 1 szoba
76 m2
Eladó ikerház
Eladó ikerház

Miskolc

19.8 M Ft
4 szoba
100 m2
Eladó családi ház
Eladó családi ház

Felsőzsolca

85 M Ft
4 szoba
210 m2
Eladó családi ház
Eladó családi ház

Taktaharkány, Magtár utca

9.9 M Ft
3 szoba
100 m2
Eladó családi ház
Eladó családi ház

Kisgyőr, Rákóczi

59.9 M Ft
3 szoba
100 m2

Falusi CSOK ingatlanok

Eladó családi ház
Eladó családi ház

Pálfa

34.99 M Ft
3 szoba
90 m2
Eladó családi ház
Eladó családi ház

Simontornya

23 M Ft
3 szoba
60 m2
Eladó családi ház
Eladó családi ház

Szigetújfalu

36 M Ft
2 szoba
58 m2
Eladó családi ház
Eladó családi ház

Mernye

24 M Ft
3 szoba
105 m2
Eladó családi ház
Eladó családi ház

Lengyeltóti

37.9 M Ft
3 szoba
90 m2
Eladó családi ház
Eladó családi ház

Sárosd

22.5 M Ft
3 szoba
61 m2
Eladó családi ház
Eladó családi ház

Galgagyörk

46.9 M Ft
4 szoba
105 m2
Eladó családi ház
Eladó családi ház

Őr, Dózsa György utca 17

1.6 M Ft
1 + 1 szoba
87 m2

Falusi CSOK ingatlanok

Eladó családi ház
Eladó családi ház

Zsámbok, Szent László utca

38 M Ft
2 szoba
75 m2
Eladó családi ház
Eladó családi ház

Balatonkeresztúr

117 M Ft
3 + 2 szoba
154 m2
Eladó családi ház
Eladó családi ház

Tüskevár

19.9 M Ft
4 szoba
95 m2
Eladó családi ház
Eladó családi ház

Galgahévíz

49 M Ft
3 + 1 szoba
108 m2
Eladó családi ház
Eladó családi ház

Szalánta, Hunyadi

41.9 M Ft
3 + 1 szoba
120 m2
Eladó családi ház
Eladó családi ház

Balatonkenese

99.8 M Ft
5 szoba
138 m2
Eladó családi ház
Eladó családi ház

Bezenye

84.9 M Ft
4 + 1 szoba
145 m2
Eladó családi ház
Eladó családi ház

Jászkarajenő

25 M Ft
4 szoba
136 m2