BAM Living

Eladó családi ház
Szuhogy

Figyelem!

Ez az ingatlan a 2019.07.01-től induló falusi CSOK által támogatott településen található

+ 17 kép 1/20
24 990 000 Ft24.99 M Ft 99 960 Ft/m2
3 szoba
250 m2
építés éve:1985

Részletes adatok

Állapot: Átlagos
Telekméret: 3844 m2
Fűtés: Gázkazán
Energetikai besorolás: Nem adta meg a hirdető

Az OTP Bank lakáshitel ajánlataFizetett hirdetés

+36 20 449
Nagy István György
OTP Ingatlanpont Miskolc Szemere

Érdekel az OTP Bank kedvezményes lakáshitel ajánlata? *

* A kérdésre „Igen” válasz bejelölése esetén, az „Üzenet küldése” gombra kattintva kijelentem, hogy az OTP Bank Nyrt. Adatkezelési tájékoztatójának tartalmát megismertem és tudomásul vettem.

Eladó családi ház leírása

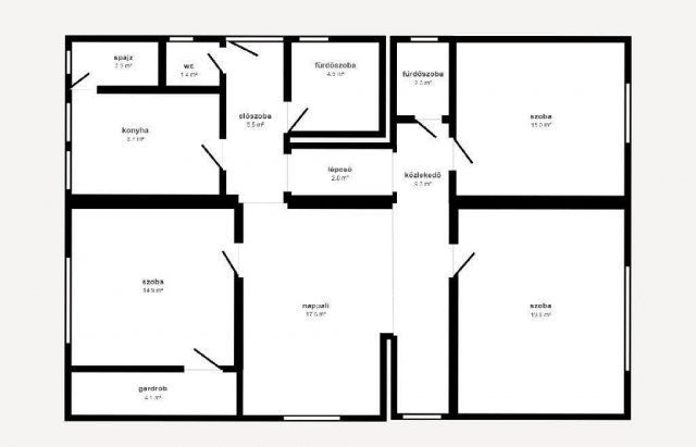
Eladó 2 szintes, nagy telkes családi ház Szuhogyon!
Szuhogy csendes, barátságos részén kínálok megvételre egy 1985-ben, szilikátból épült, tehermentes családi házat, mely 4 bejárattal rendelkezik.
Az ingatlan két szintes, összesen 3 szoba + nappali, illetve a felső szinten további 3 szoba kialakítására is lehetőség van, mely az új tulajdonosra vár, így igény szerint saját ízlésre szabható!

Főbb jellemzők:
Telek mérete: 3844 m2 ideális gazdálkodáshoz, kertészkedéshez, állattartáshoz vagy akár bővítéshez is.

Lakótér: tágas nappali, három kényelmes szoba, melyből egyikhez gardrób is tartozik, két fürdőszoba (zuhanyzóval és káddal).

Garázs a házban, így közvetlen, száraz bejárás biztosított akár esős időben is.

Nyílt kocsibeálló további autók számára az udvaron.

Műszaki adatok:
Fűtés: Vegyes tüzelésű kazán (fa, szén) + Kombi gázkazán ? gazdaságos fűtési lehetőségek!

Melegvíz: Villanybojler biztosítja a folyamatos melegvíz-ellátást.

Burkolatok: Szobákban modern laminált padló, többi helyiségben járólap.

Nyílászárók: Hagyományos, jó állapotú fa ablakok és ajtók.

Vízforrás: A közműves vízellátás mellett az udvaron gyűrűs kút is található, ideális locsoláshoz vagy akár gazdálkodáshoz.

Környezet:
Szuhogy egy csendes, nyugodt település, kiváló szomszédsággal és barátságos közösséggel.

A falu tiszta levegőjű, természetközeli környezetet biztosít, ideális a nyugodt vidéki életmódot keresők számára.

A településen alapvető szolgáltatások elérhetők, nagyobb városok (pl. Kazincbarcika, Miskolc) könnyen elérhetők autóval.

Előnyök:
Tehermentes ingatlan

Óriási telek ritkaság ilyen nagy méretű birtokot találni, a hátsó részről is van bejárat a telekre.

Kétféle fűtési mód gazdaságos üzemeltetés télen is.

Bővíthető, saját igényre alakítható felső szint.

Banki háttérrel, teljes körű ügyintézéssel segítjük a vásárlást! CSOK Plusz falusi csok és lakáshitel ügyintézésben is támogatást nyújtunk díjmentesen! Érdeklődés esetén hivatkozzon M302494 azonosítási számra.

Hirdetés feltöltve: 2025. 09. 10. Utoljára módosítva: 2026. 01. 09.

3 szobás családi házak ára Szuhogyon

Ebből az összehasonlításból megtudhatod, hogyan viszonyul a lakás ára a környékbeli családi házak átlagos árához. Ez nem azt jelenti, hogy ennyivel olcsóbb vagy drágább, mint amennyit a lakás ér, hanem hogy ennyivel tér el a környékbeli átlagtól.

Ennek a m² ára
Szuhogy m² ár
100 e Ft
110 e Ft 9%
Ennek az ára
Szuhogy átlagár
24.99 M Ft m Ft
9.3 m Ft -170%

Az ingatlan elhelyezkedése

Cím: Szuhogy

Eladó ingatlanok a környékről

Eladó családi ház
Eladó családi ház

Rudabánya

19.9 M Ft
5 szoba
140 m2
Eladó téglalakás
Eladó téglalakás

Miskolc

44.9 M Ft
3 szoba
72 m2
Eladó családi ház
Eladó családi ház

Putnok

11 M Ft
3 szoba
79 m2
Eladó panellakás
Eladó panellakás

Miskolc

33 M Ft
1 + 1 szoba
35 m2
Eladó családi ház
Eladó családi ház

Komlóska

55.9 M Ft
7 szoba
247 m2
Eladó családi ház
Eladó családi ház

Gönc, Kossuth Lajos utca

26 M Ft
2 + 1 szoba
130 m2
Eladó családi ház
Eladó családi ház

Miskolc

25.9 M Ft
4 szoba
148 m2
Eladó családi ház
Eladó családi ház

Felsőzsolca

58.9 M Ft
3 + 3 szoba
108 m2
Eladó családi ház
Eladó családi ház

Múcsony

22 M Ft
3 szoba
85 m2
Eladó családi ház
Eladó családi ház

Tiszalúc, Alkotmány utca

16.9 M Ft
4 szoba
137 m2
Eladó családi ház
Eladó családi ház

Tarcal

19.9 M Ft
3 szoba
110 m2
Eladó panellakás
Eladó panellakás

Miskolc

41.5 M Ft
3 szoba
58 m2
Eladó telek
Eladó telek

Miskolc

2.8 M Ft
2335 m²
Eladó családi ház
Eladó családi ház

Szuhogy

24.99 M Ft
3 szoba
250 m2
Eladó családi ház
Eladó családi ház

Ózd

26.5 M Ft
3 szoba
100 m2
Eladó családi ház
Eladó családi ház

Szikszó

89.9 M Ft
3 szoba
100 m2
Eladó családi ház
Eladó családi ház

Taktaszada, Thököly utca

37 M Ft
4 + 1 szoba
190 m2
Eladó családi ház
Eladó családi ház

Ózd

15 M Ft
7 szoba
225 m2
Eladó téglalakás
Eladó téglalakás

Kazincbarcika, Építők útja

28.5 M Ft
2 szoba
54 m2
Eladó családi ház
Eladó családi ház

Ózd, 48-as út

39.9 M Ft
3 + 1 szoba
300 m2
Eladó családi ház
Eladó családi ház

Sály

23.9 M Ft
2 + 1 szoba
90 m2
Eladó családi ház
Eladó családi ház

Nemesbikk, Kossuth utca 3

4.5 M Ft
2 szoba
80 m2
Eladó családi ház
Eladó családi ház

Miskolc

149 M Ft
4 szoba
463 m2
Eladó családi ház
Eladó családi ház

Hangács

14.99 M Ft
3 szoba
80 m2

Falusi CSOK ingatlanok

Eladó családi ház
Eladó családi ház

Nagyberény

24.9 M Ft
3 szoba
62 m2
Eladó családi ház
Eladó családi ház

Csemő

110 M Ft
5 szoba
171 m2
Eladó családi ház
Eladó családi ház

Palkonya

137 M Ft
6 szoba
160 m2
Eladó családi ház
Eladó családi ház

Szulok, Béke utca

31.9 M Ft
3 szoba
125 m2
Eladó családi ház
Eladó családi ház

Tápiógyörgye

44.9 M Ft
3 + 1 szoba
120 m2
Eladó családi ház
Eladó családi ház

Ságvár

46.9 M Ft
2 szoba
70 m2
Eladó családi ház
Eladó családi ház

Tésenfa, Kossuth utca 23/a

5.55 M Ft
1 + 1 szoba
109 m2
Eladó családi ház
Eladó családi ház

Badacsonytomaj, Kodály Zoltán utca

185 M Ft
6 + 1 szoba
210 m2

Falusi CSOK ingatlanok

Eladó családi ház
Eladó családi ház

Devecser

42.9 M Ft
3 szoba
100 m2
Eladó családi ház
Eladó családi ház

Poroszló, Dobosok útja 8

18.94 M Ft
1 + 1 szoba
116 m2
Eladó családi ház
Eladó családi ház

Szabadbattyán

67.5 M Ft
5 szoba
180 m2
Eladó családi ház
Eladó családi ház

Hosszúpereszteg

27.9 M Ft
4 szoba
121 m2
Eladó családi ház
Eladó családi ház

Somogygeszti

10.9 M Ft
2 szoba
115 m2
Eladó családi ház
Eladó családi ház

Zengővárkony

30.999 M Ft
3 szoba
87 m2
Eladó családi ház
Eladó családi ház

Somogymeggyes

14 M Ft
3 szoba
86 m2
Eladó családi ház
Eladó családi ház

Herend

119.6 M Ft
5 szoba
108 m2