River Life

Eladó családi ház
Szikszó

+ 15 kép 1/18
37 000 000 Ft37 M Ft 406 593 Ft/m2
2 szoba
91 m²
építés éve:1962

Részletes adatok

Telekméret: 1095 m2
Fűtés: Gázkonvektor
Energetikai besorolás: Nem adta meg a hirdető

Az OTP Bank lakáshitel ajánlataFizetett hirdetés

+36 30 700
Fodor Zsuzsanna
OTP Ingatlanpont Miskolc Szemere

Érdekel az OTP Bank kedvezményes lakáshitel ajánlata? *

* A kérdésre „Igen” válasz bejelölése esetén, az „Üzenet küldése” gombra kattintva kijelentem, hogy az OTP Bank Nyrt. Adatkezelési tájékoztatójának tartalmát megismertem és tudomásul vettem.

Eladó családi ház leírása

Eladó családi ház Szikszó csendes utcájában, tágas telekkel!
Eladásra kínálok Szikszón, nyugodt, rendezett környezetben, egy 91 m2-es, családi házat, amely egy 1095 m2-es, gondozott telken helyezkedik el. Az ingatlan 1960-ban épült, főfalai vályogból, a mellékfalak téglából készültek.
Ideális választás családoknak vagy pároknak, akik csendes, biztonságos lakókörnyezetben keresnek otthont.
Az évek során a ház folyamatos karbantartást kapott, több fontos felújítás is megtörtént: műanyag, hőszigetelt nyílászárók, vízvezeték cseréje, villanyvezetékek részben felújítva, tetőszerkezet részben felújítva,30 cm vastag üveggyapot födémszigetelés, ami jó hőmegtartást biztosít.
A fűtést gázkonvektorok, a melegvizet villanybojler biztosítja, így a fenntartási költségek kedvezőek.
Helyiségek és burkolatok:
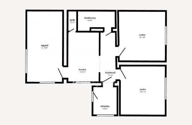
A ház elrendezése praktikus és tágas: nappali + étkező ,konyha, két hálószoba, fürdőszoba és WC egyben, előszoba. A szobákban laminált padló, a többi helyiségben járólap található.
A nappali folytatásában terasz kialakítása is lehetséges, és a filagória alapja már elkészült, így a kert további kényelmi funkciókkal könnyen bővíthető.
Telek és környezet:
A 1095 m2-es telek rendezett, jól kihasználható, többféle lehetőséget kínál: kertészkedésre, pihenésre, akár kisállattartásra is kiváló. Udvaron garázs is megtalálható.
A környék csendes, jó szomszédsággal és biztonságos lakókörnyezettel.
A vételár tartalmazza:
A ház részben bútorozott, a következő bútorok a vételár részét képezik: konyhabútor, nappali bútor, hálószobabútor.
Ez az ingatlan remek lehetőség mindazoknak, akik egy nyugodt, biztonságos környéken, felújított, azonnal költözhető házat keresnek Szikszón.

OTP Banki hátterünknek köszönhetően finanszírozási igényekben (pl. Otthon Start Hitelprogram, Babaváró, Falusi CSOK, CSOK Plusz, Lakáshitel, Személyi kölcsön stb.), illetve biztosítások tekintetében is díjmentesen, soron kívüli ügyintézéssel segítem ügyfeleim!
Érdeklődés esetén hivatkozzon M314937 azonosítási számra.

Hirdetés feltöltve: 2025. 12. 06. Utoljára módosítva: 2026. 01. 15.

2 szobás családi házak ára Szikszón

Ebből az összehasonlításból megtudhatod, hogyan viszonyul a lakás ára a környékbeli családi házak átlagos árához. Ez nem azt jelenti, hogy ennyivel olcsóbb vagy drágább, mint amennyit a lakás ér, hanem hogy ennyivel tér el a környékbeli átlagtól.

Ennek a m² ára
Szikszó m² ár
407 e Ft
387 e Ft -5%
Ennek az ára
Szikszó átlagár
37 M Ft m Ft
30.5 m Ft -21%

Az ingatlan elhelyezkedése

Cím: Szikszó

Eladó családi házak a környékről

Gönc
Eladó családi ház

Gönc

20.5 M Ft
2 szoba
80 m²
Gönc
Eladó családi ház

Gönc

26 M Ft
3 szoba
130 m²
Miskolc
Eladó családi ház

Miskolc

25.9 M Ft
4 szoba
148 m²
Ózd
Eladó családi ház

Ózd

13 M Ft
5 szoba
150 m²
Szikszó
Eladó családi ház

Szikszó

19.9 M Ft
2 szoba
75 m²
Léh
Eladó családi ház

Léh

23.99 M Ft
2 + 1 szoba
100 m²
Szikszó
Eladó családi ház

Szikszó

42.5 M Ft
5 + 1 szoba
240 m²
Szikszó
Eladó családi ház

Szikszó

89.9 M Ft
3 szoba
100 m²
Szikszó
Eladó családi ház

Szikszó

10.9 M Ft
2 + 1 szoba
76 m²
Szikszó
Eladó családi ház

Szikszó

42.5 M Ft
5 + 1 szoba
240 m²
Szikszó
Eladó családi ház

Szikszó

58.6 M Ft
5 szoba
137 m²
Miskolc
Eladó családi ház

Miskolc

25.9 M Ft
4 szoba
148 m²
Tiszalúc
Eladó családi ház

Tiszalúc

19.9 M Ft
4 szoba
180 m²
Szikszó
Eladó családi ház

Szikszó

47 M Ft
6 szoba
180 m²
Rudabánya
Eladó családi ház

Rudabánya

19.9 M Ft
5 szoba
140 m²
Szikszó, Dolhai utca 2
Eladó családi ház

Szikszó

1.2 M Ft
1 szoba
58 m²
Szikszó, Dolhai utca 2
Eladó családi ház

Szikszó

0.65 M Ft
1 + 1 szoba
58 m²
Szikszó
Eladó családi ház

Szikszó

25.5 M Ft
5 szoba
180 m²
Taktaszada, Thököly utca
Eladó családi ház

Taktaszada

37 M Ft
4 + 1 szoba
190 m²
Szikszó
Eladó családi ház

Szikszó

42.5 M Ft
5 + 1 szoba
240 m²
Miskolc
Eladó családi ház

Miskolc

110 M Ft
6 szoba
199 m²
Szikszó
Eladó családi ház

Szikszó

46 M Ft
4 szoba
140 m²
Putnok
Eladó családi ház

Putnok

11 M Ft
3 szoba
79 m²
Szikszó
Eladó családi ház

Szikszó

17 M Ft
2 + 1 szoba
60 m²

Falusi CSOK ingatlanok

Törtel
Eladó családi ház

Törtel

5.9 M Ft
2 szoba
45 m²
Ceglédbercel, Aranyhegy utca
Eladó családi ház

Ceglédbercel

114.99 M Ft
5 szoba
133 m²
Úri
Eladó családi ház

Úri

149 M Ft
5 szoba
279 m²
Galgahévíz
Eladó családi ház

Galgahévíz

38 M Ft
3 szoba
101 m²
Újszilvás
Eladó családi ház

Újszilvás

49.9 M Ft
8 szoba
310 m²
Kocsér
Eladó családi ház

Kocsér

17.9 M Ft
1 + 2 szoba
73 m²
Bag
Eladó családi ház

Bag

110 M Ft
5 szoba
320 m²
Balatonszepezd
Eladó családi ház

Balatonszepezd

299 M Ft
5 szoba
220 m²