Oasis Residence

Eladó családi ház
Szeged, földszint

+ 17 kép 1/20
125 000 000 Ft125 M Ft 968 992 Ft/m2
4 szoba
129 m²
földszint
építés éve:2025

Részletes adatok

Telekméret: 381 m2
Fűtés: Egyéb
Emelet: földszint
Energetikai besorolás: Nem adta meg a hirdető

Az OTP Bank lakáshitel ajánlataFizetett hirdetés

+36 30 821
Dajka Szilvia
Homing Szeged Ingatlaniroda

Érdekel az OTP Bank kedvezményes lakáshitel ajánlata? *

* A kérdésre „Igen” válasz bejelölése esetén, az „Üzenet küldése” gombra kattintva kijelentem, hogy az OTP Bank Nyrt. Adatkezelési tájékoztatójának tartalmát megismertem és tudomásul vettem.

Eladó családi ház leírása

Újszegeden most épülő nappali + 3 hálószobás családi ház emelt szerkezetkész állapotban megvásárolható. (Az egyik épület már elkelt!).

Igény esetén a kulcsrakész befejezés is kérhető. A képek az épülő házról és a kivitelező nemrég átadott épületében található lakásokról készültek.

A családi házak 765 nm-s, két utcára nyíló telken helyezkedik el, és mind a két ház saját bejárattal rendelkezik, csak a tárolók érintkeznek egymással. A telek egyenlő arányban oszlik meg a két ingatlan között.

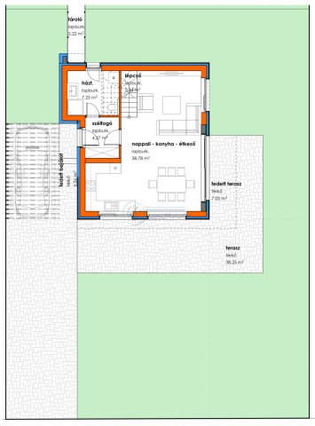
A 101,4 nm-s lakótér mellett 45,3 nm-s teraszt, 12,27 nm-s erkélyt és fedett autóbeállót alakítanak ki. Az épülethez csatlakozik egy 5,22 nm-s tároló helyiség.

A kétszintes épület tervezésénél fontos szempont volt a kényelmes és praktikusan berendezhető életterek kialakítása. A földszinten a tágas és napfényes amerikai-konyhás nappali mellett beépített szekrényekkel kialakítható előszoba, és egy tusolóval felszerelt fürdőszoba WC-el, valamint egy lépcső alatti tároló helyiség található.

Az emeleten teljes értékű lakórészeket alakítottak ki, itt 3 szoba, nagyméretű fürdőszoba és külön WC kapott helyet.

Színezett, prémium minőségű homlokzati nyílászárók kerülnek beépítésre. Az elektromos hálózat védőcsövezéssel és vezetékeléssel kerül átadásra. A falak vakolva és glettelve lesznek.

Az ingatlanok fűtését és hűtését hőszivattyúval oldják meg, padlófűtéssel, illetve mennyezethűtéssel. Ennek, valamint a korszerű építőanyagoknak köszönhetően a ház rezsije rendkívül kedvezően alakul.

CSOK Plusz, kedvező hitel és illetékkedvezmény igénybe vehető!

Várható kulcsrakész átadás 2026. évvége.

A családi házas övezet jó infrastruktúrával rendelkezik, a közelben buszmegálló, posta, boltok, és óvoda is található. A belváros autóval kb. 8-10 perc alatt elérhető.

A házról videó is megtekinthető:

Bővebb információ miatt keressen bizalommal.

Amennyiben a vásárláshoz hitelre van szüksége, egyedi igényekre szabott lakáshitelekkel állunk rendelkezésére. Bank független hiteltanácsadónk az országban elérhető összes bank és hitelintézet ajánlatát versenyezteti az Ön számára díjmentesen.

Hirdetés feltöltve: 2026. 04. 25. Utoljára módosítva: 2026. 04. 25.

4 szobás családi házak ára Szegeden

Ebből az összehasonlításból megtudhatod, hogyan viszonyul a lakás ára a környékbeli családi házak átlagos árához. Ez nem azt jelenti, hogy ennyivel olcsóbb vagy drágább, mint amennyit a lakás ér, hanem hogy ennyivel tér el a környékbeli átlagtól.

Ennek a m² ára
Szeged m² ár
969 e Ft
905 e Ft -7%
Ennek az ára
Szeged átlagár
125 M Ft m Ft
111.1 m Ft -13%

Az ingatlan elhelyezkedése

Cím: Szeged, földszint

Eladó családi házak a környékről

Szeged
Eladó családi ház

Szeged

115 M Ft
7 szoba
196 m²
Szeged
Eladó családi ház

Szeged

125 M Ft
4 szoba
106 m²
Szeged, Alsóváros, Szabadság tér
Eladó családi ház

Szeged

89.9 M Ft
3 + 1 szoba
100 m²
Szeged
Eladó családi ház

Szeged

37.425 M Ft
3 szoba
75 m²
Szeged
Eladó családi ház

Szeged

19.9 M Ft
2 szoba
35 m²
Tiszasziget
Eladó családi ház

Tiszasziget

49.9 M Ft
4 szoba
160 m²
Hódmezővásárhely, Kishomok, Új-Kishomok
Eladó családi ház

Hódmezővásárhely

69 M Ft
3 szoba
100 m²
Szeged
Eladó családi ház

Szeged

225 M Ft
5 szoba
203 m²
Szeged
Eladó családi ház

Szeged

214 M Ft
5 szoba
203 m²
Szeged
Eladó családi ház

Szeged

15.4 M Ft
31 m²
Szeged
Eladó családi ház

Szeged

109 M Ft
2 szoba
980 m²
Szeged
Eladó családi ház

Szeged

37.425 M Ft
3 szoba
75 m²
Szeged
Eladó családi ház

Szeged

12.32 M Ft
17 m²
Szeged
Eladó családi ház

Szeged

220 M Ft
12 + 2 szoba
760 m²
Röszke
Eladó családi ház

Röszke

75 M Ft
4 szoba
95 m²
Szeged
Eladó családi ház

Szeged

54.89 M Ft
3 szoba
110 m²
Szeged
Eladó családi ház

Szeged

15.4 M Ft
31 m²
Szeged
Eladó családi ház

Szeged

225 M Ft
5 szoba
203 m²
Szeged
Eladó családi ház

Szeged

199.8 M Ft
5 szoba
140 m²
Szeged
Eladó családi ház

Szeged

49 M Ft
4 szoba
98 m²
Szeged
Eladó családi ház

Szeged

220 M Ft
12 + 2 szoba
760 m²
Szeged
Eladó családi ház

Szeged

198.9 M Ft
4 + 2 szoba
175 m²
Szeged
Eladó családi ház

Szeged

12.32 M Ft
17 m²
Szeged
Eladó családi ház

Szeged

160 M Ft
5 szoba
187 m²

Falusi CSOK ingatlanok

Kálmánháza
Eladó családi ház

Kálmánháza

65 M Ft
3 + 1 szoba
151 m²
Bácsbokod
Eladó családi ház

Bácsbokod

55 M Ft
6 szoba
250 m²
Ónod
Eladó családi ház

Ónod

25.9 M Ft
3 + 1 szoba
180 m²
Szőlősgyörök
Eladó családi ház

Szőlősgyörök

29.9 M Ft
3 szoba
85 m²
Verseg
Eladó családi ház

Verseg

38 M Ft
3 szoba
83 m²
Tabdi
Eladó családi ház

Tabdi

95 M Ft
45 szoba
1490 m²
Berzence
Eladó családi ház

Berzence

25 M Ft
2 szoba
200 m²
Fülöpszállás
Eladó családi ház

Fülöpszállás

19.9 M Ft
3 szoba
115 m²