Avico Greentop

Eladó családi ház
Szeged

+ 14 kép 1/17
178 000 000 Ft178 M Ft 941 799 Ft/m2
4 szoba
189 m²
építés éve:2026

Részletes adatok

Telekméret: 413 m2
Fűtés: Egyéb
Parkolás: Garázs
Komfort: Összkomfortos
Energetikai besorolás: Nem adta meg a hirdető

Az OTP Bank lakáshitel ajánlataFizetett hirdetés

+36 30 628
Kádár Zoltán László
referens

Érdekel az OTP Bank kedvezményes lakáshitel ajánlata? *

* A kérdésre „Igen” válasz bejelölése esetén, az „Üzenet küldése” gombra kattintva kijelentem, hogy az OTP Bank Nyrt. Adatkezelési tájékoztatójának tartalmát megismertem és tudomásul vettem.

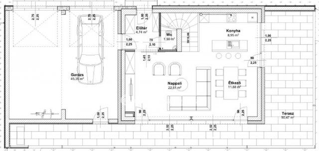
Eladó családi ház leírása

Szeged, Újszeged egyik legjobb utcájának legcsendesebb részén - a Fűvészkert és a Tisza szomszédságában - eladó egy 189 m2 alapterületű, 4 szobás, Török Csongor által tervezett, kulcsrakész családi ház, 2026-os átadással. Az épületben amerikai konyhás nappali + 3 szoba + 2 fürdőszoba + garázs + terasz is található. A rendkívűl kedvező hőszigetelési paraméterekkel rendelkező házban az otthon melegét hőszivattyús fűtés biztosítja. Ajánlom a könnyen megközelíthető területet olyan családok részére, akik Újszegeden, természetközeli miliőben érzik jól magukat és a centrumhoz közel, de a város zajától mentesen szeretnék élvezni a mindennapokat. További információért hívjon bizalommal akár hétvégén is! Megtekintésre telefonos egyeztetés alapján van lehetőség. CSOK és kedvezményes kamatozású lakásvásárlási és felújítási hitelek elérhetőek az OTP hátterével, irodánkban.

Hirdetés feltöltve: 2026. 03. 18. Utoljára módosítva: 2026. 05. 12.

4 szobás családi házak ára Szegeden

Ebből az összehasonlításból megtudhatod, hogyan viszonyul a lakás ára a környékbeli családi házak átlagos árához. Ez nem azt jelenti, hogy ennyivel olcsóbb vagy drágább, mint amennyit a lakás ér, hanem hogy ennyivel tér el a környékbeli átlagtól.

Ennek a m² ára
Szeged m² ár
942 e Ft
914 e Ft -3%
Ennek az ára
Szeged átlagár
178 M Ft m Ft
111.1 m Ft -60%

Az ingatlan elhelyezkedése

Cím: Szeged

Eladó családi házak a környékről

Szeged
Eladó családi ház

Szeged

160 M Ft
5 szoba
187 m²
Szeged
Eladó családi ház

Szeged

259 M Ft
6 szoba
314 m²
Szeged
Eladó családi ház

Szeged

233.88 M Ft
5 szoba
184 m²
Szeged, Újszeged, Radnóti utca
Eladó családi ház

Szeged

329.9 M Ft
12 + 2 szoba
619 m²
Szeged
Eladó családi ház

Szeged

37.425 M Ft
3 szoba
75 m²
Szeged
Eladó családi ház

Szeged

159 M Ft
3 + 2 szoba
110 m²
Szeged
Eladó családi ház

Szeged

14.64 M Ft
31 m²
Szeged, Alsóváros, Szabadság tér
Eladó családi ház

Szeged

89.9 M Ft
3 + 1 szoba
100 m²
Hódmezővásárhely, Kishomok, Új-Kishomok
Eladó családi ház

Hódmezővásárhely

69 M Ft
3 szoba
100 m²
Szeged
Eladó családi ház

Szeged

60 M Ft
4 szoba
120 m²
Szeged
Eladó családi ház

Szeged

370 M Ft
6 + 2 szoba
312 m²
Szeged, Alsóváros, Szabadság tér
Eladó családi ház

Szeged

89.9 M Ft
3 + 1 szoba
100 m²
Makó, Ráday 9/b
Eladó családi ház

Makó

49.9 M Ft
1 szoba
150 m²
Szeged
Eladó családi ház

Szeged

49 M Ft
4 szoba
98 m²
Szeged
Eladó családi ház

Szeged

49 M Ft
4 szoba
98 m²
Szeged
Eladó családi ház

Szeged

198.9 M Ft
4 + 2 szoba
175 m²
Szeged
Eladó családi ház

Szeged

160 M Ft
5 szoba
187 m²
Tiszasziget
Eladó családi ház

Tiszasziget

47 M Ft
4 szoba
160 m²
Szeged
Eladó családi ház

Szeged

129.5 M Ft
1 + 3 szoba
122 m²
Szeged
Eladó családi ház

Szeged

11.712 M Ft
17 m²
Szeged
Eladó családi ház

Szeged

214 M Ft
5 szoba
203 m²
Szeged
Eladó családi ház

Szeged

115 M Ft
7 szoba
196 m²
Mórahalom
Eladó családi ház

Mórahalom

63 M Ft
3 szoba
94 m²
Szeged
Eladó családi ház

Szeged

231.874 M Ft
5 szoba
182 m²

Falusi CSOK ingatlanok

Hegyeshalom, Margaréta utca 12
Eladó téglalakás

Hegyeshalom

46.91 M Ft
2 szoba
43 m²
Arló, Mátyás Király utca
Eladó családi ház

Arló

14.99 M Ft
2 szoba
66 m²
Porva
Eladó családi ház

Porva

74.6 M Ft
3 szoba
115 m²
Tápióság
Eladó családi ház

Tápióság

71.5 M Ft
4 szoba
72 m²
Lajoskomárom
Eladó családi ház

Lajoskomárom

22.9 M Ft
2 szoba
66 m²
Tóalmás
Eladó családi ház

Tóalmás

38.9 M Ft
3 szoba
62 m²
Tápiógyörgye
Eladó családi ház

Tápiógyörgye

22.5 M Ft
3 + 1 szoba
83 m²
Fertőszentmiklós
Eladó családi ház

Fertőszentmiklós

249 M Ft
3 szoba
1200 m²