City Pearl

Eladó családi ház
Siófok

+ 12 kép 1/15
103 900 000 Ft103.9 M Ft 1 141 758 Ft/m2
4 szoba
91 m2
építés éve:2025

Részletes adatok

Telekméret: 367 m2
Fűtés: Egyéb
Energetikai besorolás: Nem adta meg a hirdető

Az OTP Bank lakáshitel ajánlataFizetett hirdetés

3629769713
Kulcsár Imola
Duna House - Villa Gyömrő

Érdekel az OTP Bank kedvezményes lakáshitel ajánlata? *

* A kérdésre „Igen” válasz bejelölése esetén, az „Üzenet küldése” gombra kattintva kijelentem, hogy az OTP Bank Nyrt. Adatkezelési tájékoztatójának tartalmát megismertem és tudomásul vettem.

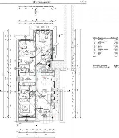
Eladó családi ház leírása

Siófokon a Bogáncs utca közelében kínálok megvételre egy ÚJÉPíTÉSŰ, Nappali + 3 szobás, 2 Fürdőszobás, HŐSZIVATTYÚS, utcafronthoz képest hátsó Önálló Családi házat, 800 méterre a Balatontól

Az ingatlan főbb jellemzői:

-    Építés éve: 2025

-    Hasznos alapterület: 91 nm + 11 nm terasz

-    Telek mérete: 367 nm

-    A Telek első felében is egy önálló Családi ház található

Elrendezése:

-    Nappali+Étkező

-    Konyha

-    Kamra

-    3 db Szoba

-    2 db Fürdőszoba Wc-vel

-    Előtér

-    Közlekedő

-    Gépház

-    Terasz

Műszaki tartalom:

-    Szerkezete: Porotherm K-30 tégla

-    Homlokzat 15 cm-es grafit szigeteléssel, lábazat 5 cm-es szigeteléssel készül

-    Belső válaszfalak Porotherm 10 cm-es tégla

-    Födémszerkezet: Fafödém, 25 cm vastag üveggyapot szigeteléssel

-    Antracit színű cserépfedés

-    Az épülethez tartozik padlásfeljáró és tetőkibúvó

-    Fehér színű nyílászárók, háromrétegű üvegezéssel szerelt 5 légkamrás

-    Fűtése hőszivattyú, padlófűtéses hőleadással, a padlón 10 cm-es lépésálló hőszigetelés készül

-    Melegvíz ellátása villanybojlerrel történik

-    Napelemhez, riasztó-és kamerarendszerhez a szükséges vezetékezés előkészítésre kerül ( a berendezéseket a vételár nem tartalmazza)

Belső burkolatok és szaniterek:

-    Melegburkolat 4500 Ft/nm

-    Hidegburkolat 5000 Ft/nm-ig válaszhatók

A telek minden irányból körbekerített, a hátsó telekhatáron 2 m magas betonelemes kerítés, az oldalsó részeken drótfonatos kerítés lesz kialakítva kerti szegéllyel, az utcafronti zsalukő kerítés 1,5 m magas oszlopokkal készül.

Az épület körül 50 cm szélességben szegélykő készül, a kocsibeálló és a szorgalmi utak is fehér dolomittal lesznek feltöltve.

A járdák viacolor térkő burkolattal épülnek 6000 Ft/nm értékhatárig.

A tereprendezés része a kivitelezésnek, termőréteg kialakításával és füvesítésre előkészített állapotban ( a fűmag vetése a Vevő feladata lesz)

A falak állnak, a tetőszerkezet készítése következik, az értékesítés elkezdődött, ha nem szeretne lemaradni és szeretne Ön lenni a Tulajdonosa, keressen bizalommal a hét bármely napján!

Hirdetés feltöltve: 2025. 11. 12. Utoljára módosítva: 2025. 11. 12.

4 szobás családi házak ára Siófokon

Ebből az összehasonlításból megtudhatod, hogyan viszonyul a lakás ára a környékbeli családi házak átlagos árához. Ez nem azt jelenti, hogy ennyivel olcsóbb vagy drágább, mint amennyit a lakás ér, hanem hogy ennyivel tér el a környékbeli átlagtól.

Ennek a m² ára
Siófok m² ár
1142 e Ft
1130 e Ft -1%
Ennek az ára
Siófok átlagár
103.9 M Ft m Ft
139.6 m Ft 26%

Az ingatlan elhelyezkedése

Cím: Siófok

Eladó családi házak a környékről

Eladó családi ház
Eladó családi ház

Siófok, Petőfi Sándor utca

39.5 M Ft
3 szoba
90 m2
Eladó családi ház
Eladó családi ház

Bábonymegyer

19.9 M Ft
4 szoba
100 m2
Eladó családi ház
Eladó családi ház

Balatonlelle

250 M Ft
12 szoba
260 m2
Eladó családi ház
Eladó családi ház

Balatonföldvár

78.821 M Ft
4 szoba
93 m2
Eladó családi ház
Eladó családi ház

Siófok

330 M Ft
12 szoba
Eladó családi ház
Eladó családi ház

Marcali

149 M Ft
7 + 4 szoba
400 m2
Eladó családi ház
Eladó családi ház

Siófok

72 M Ft
3 szoba
60 m2
Eladó családi ház
Eladó családi ház

Siófok

400 M Ft
15 szoba
500 m2
Eladó családi ház
Eladó családi ház

Balatonlelle

620 M Ft
12 szoba
1300 m2
Eladó családi ház
Eladó családi ház

Siófok

400.13 M Ft
7 szoba
444 m2
Eladó családi ház
Eladó családi ház

Siófok

135 M Ft
7 + 2 szoba
250 m2
Eladó családi ház
Eladó családi ház

Siófok

68 M Ft
3 szoba
64 m2
Eladó családi ház
Eladó családi ház

Siófok

71.8 M Ft
3 szoba
66 m2
Eladó családi ház
Eladó családi ház

Balatonfenyves

77 M Ft
7 szoba
120 m2
Eladó családi ház
Eladó családi ház

Siófok

369.99 M Ft
12 szoba
495 m2
Eladó családi ház
Eladó családi ház

Fonyód

112.9 M Ft
4 + 1 szoba
150 m2
Eladó családi ház
Eladó családi ház

Siófok

498 M Ft
10 szoba
975 m2
Eladó családi ház
Eladó családi ház

Siófok

92.99 M Ft
3 szoba
90 m2
Eladó családi ház
Eladó családi ház

Siófok

549 M Ft
9 szoba
310 m2
Eladó családi ház
Eladó családi ház

Siójut

32 M Ft
4 szoba
108 m2
Eladó családi ház
Eladó családi ház

Siófok

498 M Ft
10 szoba
975 m2
Eladó családi ház
Eladó családi ház

Balatonszentgyörgy

140.97 M Ft
4 szoba
170 m2
Eladó családi ház
Eladó családi ház

Csákány

59.9 M Ft
6 szoba
365 m2
Eladó családi ház
Eladó családi ház

Balatonfenyves

219 M Ft
5 szoba
210 m2

Falusi CSOK ingatlanok

Eladó családi ház
Eladó családi ház

Vaskút

64 M Ft
5 szoba
180 m2
Eladó családi ház
Eladó családi ház

Hövej

119.9 M Ft
3 szoba
75 m2
Eladó téglalakás
Eladó téglalakás

Balatonszemes

546 M Ft
4 szoba
136 m2
Eladó téglalakás
Eladó téglalakás

Vasvár

40.52 M Ft
2 szoba
59 m2
Eladó családi ház
Eladó családi ház

Kenyeri

21.8 M Ft
2 szoba
75 m2
Eladó családi ház
Eladó családi ház

Iváncsa

73.9 M Ft
1 + 3 szoba
97 m2
Eladó családi ház
Eladó családi ház

Orci

119.9 M Ft
6 szoba
200 m2
Eladó családi ház
Eladó családi ház

Ceglédbercel, Iskola utca

109 M Ft
5 szoba
133 m2