Astora Art House

Eladó családi ház
Siófok

+ 12 kép 1/15
103 900 000 Ft103.9 M Ft 1 141 758 Ft/m2
4 szoba
91 m2
építés éve:2025

Részletes adatok

Telekméret: 367 m2
Fűtés: Egyéb
Energetikai besorolás: Nem adta meg a hirdető

Az OTP Bank lakáshitel ajánlataFizetett hirdetés

3629769713
Tivadarné Kulcsár Imola
referens

Érdekel az OTP Bank kedvezményes lakáshitel ajánlata? *

* A kérdésre „Igen” válasz bejelölése esetén, az „Üzenet küldése” gombra kattintva kijelentem, hogy az OTP Bank Nyrt. Adatkezelési tájékoztatójának tartalmát megismertem és tudomásul vettem.

Eladó családi ház leírása

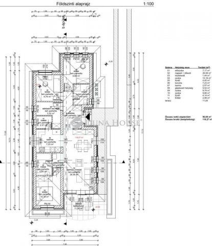
Siófokon a Bogáncs utca közelében kínálok megvételre egy ÚJÉPíTÉSŰ, Nappali + 3 szobás, 2 Fürdőszobás, HŐSZIVATTYÚS, utcafronti Önálló Családi házat, 800 méterre a Balatontól

Az ingatlan főbb jellemzői:
- Építés éve: 2025
- Hasznos alapterület: 91 nm + 11 nm terasz
- Telek mérete: 367 nm
- A Telek hátsó felében is egy önálló Családi ház található

Elrendezése:
- Nappali+Étkező
- Konyha
- Kamra
- 3 db Szoba
- 2 db Fürdőszoba Wc-vel
- Előtér
- Közlekedő
- Gépház
- Terasz

Műszaki tartalom:
- Szerkezete: Porotherm K-30 tégla
- Homlokzat 15 cm-es grafit szigeteléssel, lábazat 5 cm-es szigeteléssel készül
- Belső válaszfalak Porotherm 10 cm-es tégla
- Födémszerkezet: Fafödém, 25 cm vastag üveggyapot szigeteléssel
- Antracit színű cserépfedés
- Az épülethez tartozik padlásfeljáró és tetőkibúvó
- Fehér színű nyílászárók, háromrétegű üvegezéssel szerelt 5 légkamrás
- Fűtése hőszivattyú, padlófűtéses hőleadással, a padlón 10 cm-es lépésálló hőszigetelés készül
- Melegvíz ellátása villanybojlerrel történik
- Napelemhez, riasztó-és kamerarendszerhez a szükséges vezetékezés előkészítésre kerül ( a berendezéseket a vételár nem tartalmazza)

Belső burkolatok és szaniterek:
- Melegburkolat 4500 Ft/nm
- Hidegburkolat 5000 Ft/nm-ig válaszhatók

A telek minden irányból körbekerített, a hátsó telekhatáron 2 m magas betonelemes kerítés, az oldalsó részeken drótfonatos kerítés lesz kialakítva kerti szegéllyel, az utcafronti zsalukő kerítés 1,5 m magas oszlopokkal készül.

Az épület körül 50 cm szélességben szegélykő készül, a kocsibeálló és a szorgalmi utak is fehér dolomittal lesznek feltöltve.

A járdák viacolor térkő burkolattal épülnek 6000 Ft/nm értékhatárig.

A tereprendezés része a kivitelezésnek, termőréteg kialakításával és füvesítésre előkészített állapotban ( a fűmag vetése a Vevő feladata lesz)

A falak állnak, a tetőszerkezet készítése következik, az értékesítés elkezdődött, ha nem szeretne lemaradni és szeretne Ön lenni a Tulajdonosa, keressen bizalommal a hét bármely napján!
Amennyiben az ingatlan felkeltette az érdeklődését, keressen bizalommal a hét bármely napján!
Jöjjön el, nézze meg, szeressen bele, legyen Ön a a következő lakója!

Érd: Kulcsár Imola, tel: +36/20/240 4146, e-mail: kulcsar.imola@dh.hu

Az ajánlatom megfelelne az elvárásainak, de nem rendelkezik a kiválasztott ingatlan teljes vételárával!?
Hitelre történő vásárlás esetén Bankfüggetlen Credipass Pénzügyi Szakértőnk kötelezettség nélkül megtalálja az Ön számára legkedvezőbb megoldást! A tanácsadás ingyenes!

Referencia szám: HZ030633

Hirdetés feltöltve: 2025. 11. 09. Utoljára módosítva: 2026. 01. 23.

4 szobás családi házak ára Siófokon

Ebből az összehasonlításból megtudhatod, hogyan viszonyul a lakás ára a környékbeli családi házak átlagos árához. Ez nem azt jelenti, hogy ennyivel olcsóbb vagy drágább, mint amennyit a lakás ér, hanem hogy ennyivel tér el a környékbeli átlagtól.

Ennek a m² ára
Siófok m² ár
1142 e Ft
1133 e Ft -1%
Ennek az ára
Siófok átlagár
103.9 M Ft m Ft
140.7 m Ft 26%

Az ingatlan elhelyezkedése

Cím: Siófok

Eladó családi házak a környékről

Eladó családi ház
Eladó családi ház

Siófok

330 M Ft
12 szoba
Eladó családi ház
Eladó családi ház

Zamárdi

126 M Ft
6 szoba
120 m2
Eladó családi ház
Eladó családi ház

Siófok

159 M Ft
3 szoba
119 m2
Eladó családi ház
Eladó családi ház

Siófok

498 M Ft
10 szoba
975 m2
Eladó családi ház
Eladó családi ház

Siófok

120.5 M Ft
4 szoba
138 m2
Eladó családi ház
Eladó családi ház

Siófok

139.9 M Ft
10 szoba
385 m2
Eladó családi ház
Eladó családi ház

Siófok

549 M Ft
9 szoba
310 m2
Eladó családi ház
Eladó családi ház

Siófok

71.8 M Ft
3 szoba
66 m2
Eladó családi ház
Eladó családi ház

Balatonlelle

250 M Ft
12 szoba
260 m2
Eladó családi ház
Eladó családi ház

Balatonkeresztúr

147.9 M Ft
4 szoba
160 m2
Eladó családi ház
Eladó családi ház

Siófok

150 M Ft
6 szoba
168 m2
Eladó családi ház
Eladó családi ház

Siófok, Petőfi Sándor utca

39.5 M Ft
3 szoba
90 m2
Eladó családi ház
Eladó családi ház

Siófok

549 M Ft
9 szoba
310 m2
Eladó családi ház
Eladó családi ház

Siófok

498 M Ft
10 szoba
975 m2
Eladó családi ház
Eladó családi ház

Siójut

32 M Ft
4 szoba
108 m2
Eladó családi ház
Eladó családi ház

Siófok

549 M Ft
9 szoba
310 m2
Eladó családi ház
Eladó családi ház

Balatonberény

128 M Ft
3 + 1 szoba
121 m2
Eladó családi ház
Eladó családi ház

Siófok

178.999 M Ft
4 szoba
150 m2
Eladó családi ház
Eladó családi ház

Siófok

330 M Ft
12 szoba
Eladó családi ház
Eladó családi ház

Bábonymegyer

19.9 M Ft
4 szoba
100 m2
Eladó családi ház
Eladó családi ház

Csákány

59.9 M Ft
6 szoba
365 m2
Eladó családi ház
Eladó családi ház

Balatonföldvár

78.821 M Ft
4 szoba
93 m2
Eladó családi ház
Eladó családi ház

Siófok

178.999 M Ft
4 szoba
150 m2
Eladó családi ház
Eladó családi ház

Siófok

125 M Ft
5 szoba
90 m2

Falusi CSOK ingatlanok

Eladó családi ház
Eladó családi ház

Jakabszállás

69.99 M Ft
1 + 4 szoba
91 m2
Eladó családi ház
Eladó családi ház

Újlengyel

108 M Ft
3 szoba
80 m2
Eladó családi ház
Eladó családi ház

Belvárdgyula

27.9 M Ft
4 szoba
120 m2
Eladó családi ház
Eladó családi ház

Úrkút

94.9 M Ft
4 szoba
186 m2
Eladó családi ház
Eladó családi ház

Kóny

144.9 M Ft
4 szoba
203 m2
Eladó ikerház
Eladó ikerház

Balatonakali

370 M Ft
4 szoba
140 m2
Eladó családi ház
Eladó családi ház

Újlengyel

110 M Ft
4 szoba
121 m2
Eladó családi ház
Eladó családi ház

Nyáregyháza

19.99 M Ft
4 szoba
98 m2