Kedves Felhasználónk! Rendszerfrissítés miatt az oldalunk 2026. február 10-én 0 órától várhatóan 11 óráig nem lesz elérhető. Köszönjük megértésed!
Metrodom

Eladó családi ház
Rudabánya

Figyelem!

Ez az ingatlan a 2019.07.01-től induló falusi CSOK által támogatott településen található

+ 17 kép 1/20
11 500 000 Ft11.5 M Ft 153 333 Ft/m2
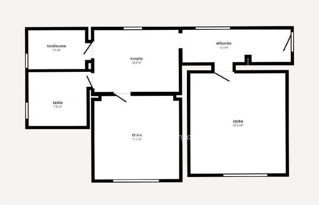
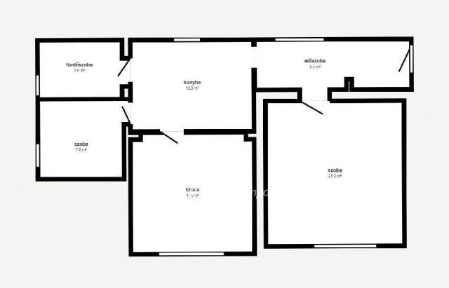
3 szoba
75 m2
építés éve:1970

Részletes adatok

Telekméret: 1472 m2
Fűtés: Gázkazán
Energetikai besorolás: Nem adta meg a hirdető

Az OTP Bank lakáshitel ajánlataFizetett hirdetés

+36 70 397
Vég-Dudás Dominika
OTP Ingatlanpont Miskolc

Érdekel az OTP Bank kedvezményes lakáshitel ajánlata? *

* A kérdésre „Igen” válasz bejelölése esetén, az „Üzenet küldése” gombra kattintva kijelentem, hogy az OTP Bank Nyrt. Adatkezelési tájékoztatójának tartalmát megismertem és tudomásul vettem.

Eladó családi ház leírása

Rudabánya városában 3 szobás, földszintes, 75m2 alapterületű, napfényes, belül részlegesen felújított, összkomfortos, összközműves családiház eladó 1405m2 telken. A ház akadálymentesített, 1970-ben épült szilikát falazattal, és cserép tetővel fedett. A otthon melegéről még garanciális ARISTON kondenzációs gázkazán gondoskodik. A kazáncserével egyidőben 2024-ben a teljes fűtési rendszer megújult, és a radiátorokat is lecserélték. A felújítás magában foglalta a villamos, víz és szennyvíz hálózat cseréjét. A bejárati ajtó és 2 ablak már hőszigetelt, műanyag, 4 ablak pedig hagyományos fa, jó állapotú. A falak gletteltek, festettek. A fürdőszoba teljesen felújított, épített zuhanyzóval, új szaniterekkel. A nagy telek gazdálkodásra alkalmas, kiválló termőfölddel, veteményessel, gyümülcsössel, fúrt kúttal és pincével. A szomszédok rendesek, segítőkészek. Ingatlanirodánk ügyvédi háttérrel, babaváró hitel, falusi CSOK, CSOK Plusz, valamint kamatkedvezményes hitel ügyintézésével támogatja ügyfelei ingatlanvásárlását! Érdeklődés esetén hivatkozzon az M304960 referenciaszámra!

Hirdetés feltöltve: 2025. 07. 24. Utoljára módosítva: 2026. 02. 09.

Az ingatlan elhelyezkedése

Cím: Rudabánya

Eladó ingatlanok a környékről

Eladó családi ház
Eladó családi ház

Gönc

20.5 M Ft
2 szoba
80 m2
Eladó családi ház
Eladó családi ház

Rudabánya

11.5 M Ft
3 szoba
75 m2
Eladó családi ház
Eladó családi ház

Rudabánya

11.5 M Ft
3 szoba
75 m2
Eladó családi ház
Eladó családi ház

Taktaszada, Thököly utca

37 M Ft
4 + 1 szoba
190 m2
Eladó családi ház
Eladó családi ház

Tarcal

19.9 M Ft
3 szoba
110 m2
Eladó családi ház
Eladó családi ház

Nyékládháza

37.99 M Ft
4 szoba
100 m2
Eladó családi ház
Eladó családi ház

Miskolc

25.9 M Ft
4 szoba
148 m2
Eladó családi ház
Eladó családi ház

Edelény

31.5 M Ft
2 szoba
75 m2
Eladó családi ház
Eladó családi ház

Rudabánya

14.99 M Ft
3 szoba
86 m2
Eladó családi ház
Eladó családi ház

Ózd

25.99 M Ft
4 szoba
198 m2
Eladó családi ház
Eladó családi ház

Rudabánya

19.9 M Ft
5 szoba
140 m2
Eladó sorház
Eladó sorház

Felsőzsolca

74.99 M Ft
4 szoba
128 m2
Eladó családi ház
Eladó családi ház

Gönc, Kossuth Lajos utca

26 M Ft
2 + 1 szoba
130 m2
Eladó családi ház
Eladó családi ház

Tiszalúc

19.9 M Ft
4 szoba
180 m2
Eladó családi ház
Eladó családi ház

Ózd

15 M Ft
7 szoba
225 m2
Eladó családi ház
Eladó családi ház

Rudabánya

11.5 M Ft
3 szoba
75 m2
Eladó családi ház
Eladó családi ház

Rudabánya

14.99 M Ft
3 szoba
86 m2
Eladó családi ház
Eladó családi ház

Tiszalúc, Alkotmány utca

16.9 M Ft
4 szoba
137 m2
Eladó családi ház
Eladó családi ház

Rudabánya

5.7 M Ft
3 szoba
75 m2
Eladó családi ház
Eladó családi ház

Miskolc

54.99 M Ft
4 szoba
103 m2
Eladó családi ház
Eladó családi ház

Rudabánya

14.99 M Ft
3 szoba
82 m2
Eladó családi ház
Eladó családi ház

Léh

23.99 M Ft
2 + 1 szoba
100 m2
Eladó családi ház
Eladó családi ház

Ózd

26.5 M Ft
3 szoba
100 m2
Eladó családi ház
Eladó családi ház

Hernádkércs

29.5 M Ft
6 + 2 szoba
300 m2

Falusi CSOK ingatlanok

Eladó családi ház
Eladó családi ház

Bag

16.9 M Ft
6 szoba
160 m2
Eladó családi ház
Eladó családi ház

Szabadbattyán

163.99 M Ft
5 szoba
255 m2
Eladó családi ház
Eladó családi ház

Vaskút

69 M Ft
3 szoba
120 m2
Eladó családi ház
Eladó családi ház

Tarján

29.9 M Ft
3 szoba
120 m2
Eladó családi ház
Eladó családi ház

Újlengyel

110 M Ft
4 szoba
121 m2
Eladó családi ház
Eladó családi ház

Nagykörű, Jókai Mór utca 20

8.97 M Ft
1 + 1 szoba
101 m2
Eladó családi ház
Eladó családi ház

Ivánc

13.5 M Ft
2 szoba
64 m2
Eladó családi ház
Eladó családi ház

Nagyhegyes

80 M Ft
2 szoba
94 m2

Falusi CSOK ingatlanok

Eladó családi ház
Eladó családi ház

Pusztamonostor

22 M Ft
3 szoba
86 m2
Eladó családi ház
Eladó családi ház

Bajna, Kossuth L. u. 28

58.5 M Ft
7 szoba
192 m2
Eladó családi ház
Eladó családi ház

Gyöngyöshalász

59 M Ft
4 + 3 szoba
214 m2
Eladó családi ház
Eladó családi ház

Bag

16.9 M Ft
6 szoba
160 m2
Eladó téglalakás
Eladó téglalakás

Balatonszemes

91.5 M Ft
2 szoba
60 m2
Eladó családi ház
Eladó családi ház

Bugac

15 M Ft
3 szoba
52 m2
Eladó családi ház
Eladó családi ház

Szakmár

12.9 M Ft
3 + 1 szoba
90 m2
Eladó ikerház
Eladó ikerház

Balatonakali

370 M Ft
4 szoba
140 m2