BAM Living

Eladó családi ház
Pusztaszabolcs

+ 15 kép 1/18
61 900 000 Ft61.9 M Ft 547 788 Ft/m2
3 szoba
113 m²
építés éve:1980

Részletes adatok

Telekméret: 550 m2
Fűtés: Gázkazán
Komfort: Összkomfortos
Energetikai besorolás: Nem adta meg a hirdető

Az OTP Bank lakáshitel ajánlataFizetett hirdetés

+36 70 681
Pap Éva Zsuzsanna
OTPip - Érd Bajcsy-Zsilinszky út 160 - OTP Ingatlanpont Iroda

Érdekel az OTP Bank kedvezményes lakáshitel ajánlata? *

* A kérdésre „Igen” válasz bejelölése esetén, az „Üzenet küldése” gombra kattintva kijelentem, hogy az OTP Bank Nyrt. Adatkezelési tájékoztatójának tartalmát megismertem és tudomásul vettem.

Eladó családi ház leírása

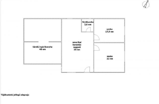
Fejér megye, Pusztaszabolcs 113 nm-es családi ház eladó. A felújított, tégla falazatú lakóingatlan a település központjához közel egy 550 nm-es telken helyezkedik el. A tehermentes családi házban amerikai konyhás nappali, két tágas hálószoba és fürdőszoba található, valamint az ingatlanhoz tartozik egy hozzáépített 40 nm-es tároló(fele beszámítva a hasznos alapterületbe), mely több szoba kialakítására alkalmas, alatta pedig egy 30 nm-es pince található. A belső felújítás során cserélték a víz-és villanyvezetékeket, az összes nyílászárót műanyagra, az összes burkolatot, teljes aljzatcsere és aljzatszigetelés, mennyezetszigetelés, új gépesített konyhabútor. A meghirdetett ár tartalmazza a külső szigetelést is. A fűtésről új kombi gázkazán és új hűtő fűtő klíma gondoskodik. Séta távolságra a vasútállomás, boltok, gyógyszertár, orvosi rendelő, óvoda, iskola, játszótér, polgármesteri hivatal. Teljes körű ügyintézésben segítjük ügyfeleinket díjtalanul: CSOK igénylése, kedvezményes hitel mobil bankári szolgáltatással, adásvétel teljes lebonyolításával.

Az energetikai tanúsítvány készítése folyamatban van, amint rendelkezésre áll, úgy azzal a hirdetés frissítésre kerül.

Hirdetés feltöltve: 2026. 02. 12. Utoljára módosítva: 2026. 05. 12.

3 szobás családi házak ára Pusztaszabolcson

Ebből az összehasonlításból megtudhatod, hogyan viszonyul a lakás ára a környékbeli családi házak átlagos árához. Ez nem azt jelenti, hogy ennyivel olcsóbb vagy drágább, mint amennyit a lakás ér, hanem hogy ennyivel tér el a környékbeli átlagtól.

Ennek a m² ára
Pusztaszabolcs m² ár
548 e Ft
734 e Ft 25%
Ennek az ára
Pusztaszabolcs átlagár
61.9 M Ft m Ft
76.6 m Ft 19%

Az ingatlan elhelyezkedése

Cím: Pusztaszabolcs

Eladó családi házak a környékről

Gánt, Gánti út
Eladó családi ház

Gánt

29.9 M Ft
2 + 1 szoba
40 m²
Pusztaszabolcs
Eladó családi ház

Pusztaszabolcs

86.9 M Ft
4 szoba
105 m²
Alcsútdoboz, Szabadság utca
Eladó családi ház

Alcsútdoboz

320 M Ft
12 szoba
620 m²
Bicske, Baboshegy
Eladó családi ház

Bicske

26.9 M Ft
1 szoba
30 m²
Etyek
Eladó családi ház

Etyek

160 M Ft
6 szoba
228 m²
Adony
Eladó családi ház

Adony

8 M Ft
2 szoba
30 m²
Pusztaszabolcs
Eladó családi ház

Pusztaszabolcs

87 M Ft
1 + 3 szoba
123 m²
Pusztaszabolcs
Eladó családi ház

Pusztaszabolcs

32 M Ft
2 szoba
63 m²
Pusztaszabolcs
Eladó családi ház

Pusztaszabolcs

74.9 M Ft
11 szoba
312 m²
Kulcs
Eladó családi ház

Kulcs

180 M Ft
8 szoba
167 m²
Pusztaszabolcs
Eladó családi ház

Pusztaszabolcs

89.9 M Ft
4 szoba
95 m²
Pusztaszabolcs
Eladó családi ház

Pusztaszabolcs

84.9 M Ft
4 szoba
106 m²
Pusztaszabolcs
Eladó családi ház

Pusztaszabolcs

69 M Ft
3 szoba
98 m²
Iváncsa, Táncsics Mihály utca
Eladó családi ház

Iváncsa

86 M Ft
4 szoba
120 m²
Pusztaszabolcs
Eladó családi ház

Pusztaszabolcs

64.9 M Ft
3 szoba
89 m²
Pusztaszabolcs
Eladó családi ház

Pusztaszabolcs

75 M Ft
4 szoba
95 m²
Mór
Eladó családi ház

Mór

110 M Ft
12 szoba
340 m²
Tabajd
Eladó családi ház

Tabajd

22 M Ft
3 szoba
75 m²
Velence, Liget utca
Eladó családi ház

Velence

149 M Ft
2 + 2 szoba
150 m²
Pusztaszabolcs
Eladó családi ház

Pusztaszabolcs

79.9 M Ft
4 szoba
92 m²
Velence
Eladó családi ház

Velence

80 M Ft
6 szoba
200 m²
Pusztaszabolcs
Eladó családi ház

Pusztaszabolcs

93 M Ft
4 szoba
100 m²
Pusztaszabolcs
Eladó családi ház

Pusztaszabolcs

79.9 M Ft
4 szoba
92 m²
Szabadbattyán
Eladó családi ház

Szabadbattyán

357.518 M Ft
9 + 2 szoba
1053 m²

Falusi CSOK ingatlanok

Berzence
Eladó családi ház

Berzence

40 M Ft
3 szoba
233 m²
Bakonycsernye
Eladó családi ház

Bakonycsernye

39 M Ft
3 szoba
350 m²
Levelek
Eladó családi ház

Levelek

74 M Ft
6 + 1 szoba
190 m²
Sződ
Eladó családi ház

Sződ

102.9 M Ft
4 szoba
92 m²
Pilisszentkereszt
Eladó családi ház

Pilisszentkereszt

68.9 M Ft
2 szoba
50 m²
Szentmártonkáta
Eladó családi ház

Szentmártonkáta

59.99 M Ft
6 szoba
117 m²
Vid
Eladó családi ház

Vid

27 M Ft
4 szoba
100 m²
Kánya
Eladó családi ház

Kánya

5.5 M Ft
3 szoba
70 m²