Eladó családi ház
Pomáz

+ 5 kép 1/8
242 800 000 Ft242.8 M Ft 1 074 336 Ft/m2
10 szoba
226 m2
építés éve:2025

Részletes adatok

Telekméret: 803 m2
Fűtés: Egyéb
Parkolás: Kocsibeálló
Közmű: Víz, Villany, Csatorna
Energetikai besorolás: Nem adta meg a hirdető

Az OTP Bank lakáshitel ajánlataFizetett hirdetés

+36 70 882
Kiss Krisztina
Körültekintő Ingatlan

Érdekel az OTP Bank kedvezményes lakáshitel ajánlata? *

* A kérdésre „Igen” válasz bejelölése esetén, az „Üzenet küldése” gombra kattintva kijelentem, hogy az OTP Bank Nyrt. Adatkezelési tájékoztatójának tartalmát megismertem és tudomásul vettem.

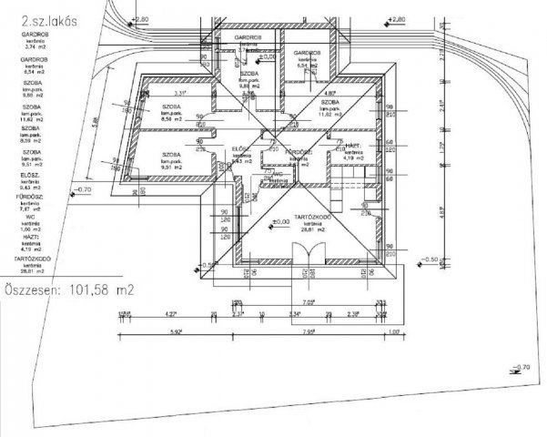
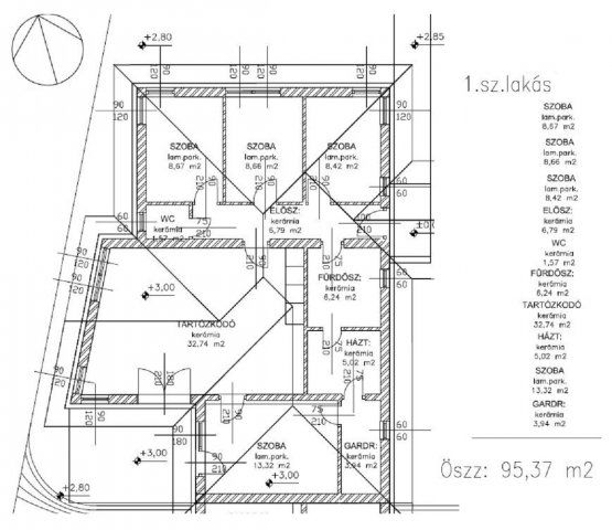
Eladó családi ház leírása

Pomázon a Meselia déli oldalában, csendes környezetben egy szintes, két önálló lakással rendelkező családi ház eladó.

Az építéssel kapcsolatos paraméterek:
- Tervezett átadás: a szerződést követő egy éven belül
- hőszivattyús fűtés, padlófűtéssel, radiátorokkal
- magas minőségű hőszigetelés, ZÖLD hitelnek megfelelő energetikai besorolás
- több rétegű, műanyag nyílászárók
- választható belső burkolatok, szaniterek
- riasztó rendszer előkészítés
- 30 nm-es, az amerikai konyhás nappalihoz kapcsolódó terasz
- durva tereprendezés
- kulcsrakész átadás
Finanszírozási lehetőség:
- Zöld hitel kompatibilitás
- CSOK, hitel, illeték mentesség, Áfa visszatérítés igényelhető.
- Az alaprajz igény szerint még módosítható.

A beruházó a környék elismert építési vállalkozója, rengeteg referenciamunkával rendelkezik.

Hirdetés feltöltve: 2025. 10. 29.

Az ingatlan elhelyezkedése

Cím: Pomáz

Eladó családi házak a környékről

Eladó családi ház
Eladó családi ház

Budakeszi, Budakeszi kertváros

229 M Ft
10 szoba
450 m2
Eladó családi ház
Eladó családi ház

Pomáz

98 M Ft
4 szoba
100 m2
Eladó családi ház
Eladó családi ház

Dunakeszi

250 M Ft
4 szoba
180 m2
Eladó családi ház
Eladó családi ház

Leányfalu

237 M Ft
9 szoba
800 m2
Eladó családi ház
Eladó családi ház

Budakeszi, Makkosmária

100 M Ft
1 szoba
10 m2
Eladó családi ház
Eladó családi ház

Pomáz, Kandó Kálmán utca

88.7 M Ft
4 szoba
170 m2
Eladó családi ház
Eladó családi ház

Pomáz

1380 M Ft
16 szoba
802 m2
Eladó családi ház
Eladó családi ház

Pomáz, Szüret utca

78 M Ft
3 szoba
54 m2
Eladó családi ház
Eladó családi ház

Pomáz, Orlovácz u

183.5 M Ft
5 + 1 szoba
200 m2
Eladó családi ház
Eladó családi ház

Pomáz

132 M Ft
4 szoba
180 m2
Eladó családi ház
Eladó családi ház

Budaörs, Odvshegy utca

268.9 M Ft
5 szoba
235 m2
Eladó családi ház
Eladó családi ház

Pomáz

218.5 M Ft
3 szoba
100 m2
Eladó családi ház
Eladó családi ház

Budaörs, Városközpont utca

119.5 M Ft
5 + 1 szoba
140 m2
Eladó családi ház
Eladó családi ház

Pomáz

1500 M Ft
16 szoba
Eladó családi ház
Eladó családi ház

Tápiószele

37.9 M Ft
4 szoba
141 m2
Eladó családi ház
Eladó családi ház

Pécel, Reményik Sándor utca

296 M Ft
6 szoba
396 m2
Eladó családi ház
Eladó családi ház

Pomáz

1380 M Ft
21 szoba
801 m2
Eladó családi ház
Eladó családi ház

Remeteszőlős

399.9 M Ft
5 + 2 szoba
260 m2
Eladó családi ház
Eladó családi ház

Pomáz

42.9 M Ft
3 szoba
62 m2
Eladó családi ház
Eladó családi ház

Pomáz

94.8 M Ft
5 szoba
150 m2
Eladó családi ház
Eladó családi ház

Pomáz

119.5 M Ft
7 szoba
240 m2
Eladó családi ház
Eladó családi ház

Tápiószentmárton

7.9 M Ft
2 + 1 szoba
86 m2
Eladó családi ház
Eladó családi ház

Dunavarsány

69.9 M Ft
3 + 1 szoba
140 m2
Eladó családi ház
Eladó családi ház

Pomáz, Orlovácz utca

183.5 M Ft
5 + 1 szoba
208 m2

Falusi CSOK ingatlanok

Eladó családi ház
Eladó családi ház

Villány

65 M Ft
3 szoba
95 m2
Eladó családi ház
Eladó családi ház

Emőd

31.99 M Ft
2 szoba
75 m2
Eladó családi ház
Eladó családi ház

Aszaló

16.49 M Ft
3 szoba
112 m2
Eladó családi ház
Eladó családi ház

Balatonfenyves

430 M Ft
4 szoba
274 m2
Eladó családi ház
Eladó családi ház

Szigetbecse

35.9 M Ft
3 + 2 szoba
107 m2
Eladó családi ház
Eladó családi ház

Tóalmás

39 M Ft
6 szoba
220 m2
Eladó családi ház
Eladó családi ház

Tápiógyörgye

34.9 M Ft
3 szoba
85 m2
Eladó családi ház
Eladó családi ház

Nick

64 M Ft
4 szoba
140 m2